








Book your tour. Save an average of $18,473. We'll handle the rest.
We collect exclusive builder offers, book your tours, and support you from start to housewarming.
- Confirmed tours
- Get matched & compare top deals
- Expert help, no pressure
- No added fees
Estimated value based on Jome data, T&C apply
























- 4 bd
- 3 ba
- 3,157 sqft
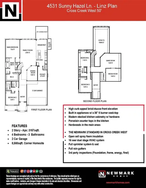
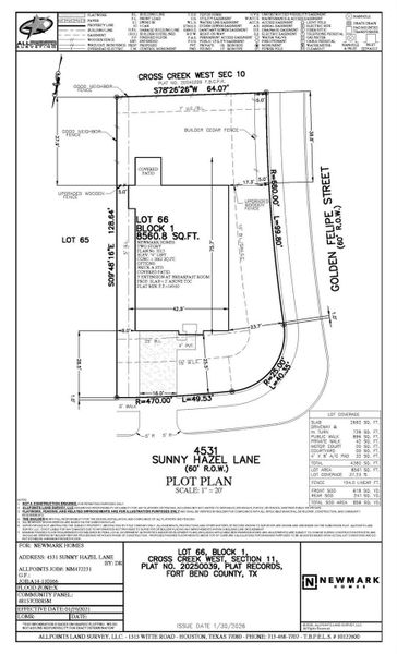
4531 Sunny Hazel Ln, Fulshear, TX 77441
Why tour with Jome?
- No pressure toursTour at your own pace with no sales pressure
- Expert guidanceGet insights from our home buying experts
- Exclusive accessSee homes and deals not available elsewhere
Jome is featured in
- Single-Family
- Quick move-in
- $177.09/sqft
- $1,550/annual HOA
Home description
This new construction NEWMARK HOME in Cross Creek West is the perfect home for you located on a corner homesite! The 50' LINZ plan has 4 bedrooms w/ 2 down, 3 baths, & a 2 car garage. High curb appeal brick & stucco elevation! Step inside this high ceiling modern masterpiece with hand selected designer finishes. The open dining overlooks the wall of window in the expansive family room. Luxury hardwoods in the main areas. High ceilings in the entry through the family room. The dream kitchen has built in appliances, 42" cabinets & sleek porcelain counter tops. The cozy pocket study is nestled right off the kitchen. The private main suite is filled with architectural charm. Head up the rounded staircase to the gameroom & media entertainment hotspot perfect for family game & move nights. The opportunites are endless with the private backyard oasis. Spray foam insulation, tankless hot water heater, full sprinkers & full gutters are just a few of the included standard features!
Newmark Homes, MLS 25148799
May also be listed on the Newmark Homes website
Information last verified by Jome: Today at 2:50 AM (April 26, 2026)
Book your tour. Save an average of $18,473. We'll handle the rest.
We collect exclusive builder offers, book your tours, and support you from start to housewarming.
- Confirmed tours
- Get matched & compare top deals
- Expert help, no pressure
- No added fees
Estimated value based on Jome data, T&C apply
Home details
- Property status:
- Move-in ready
- Lot size (acres):
- 0.20
- Size:
- 3,157 sqft
- Stories:
- 2
- Beds:
- 4
- Baths:
- 3
- Garage spaces:
- 2
- Facing direction:
- Southeast
Construction details
- Builder Name:
- Newmark Homes
- Year Built:
- 2026
- Roof:
- Composition Roofing
Home features & finishes
- Appliances:
- Sprinkler System
- Construction Materials:
- StuccoCementBrick
- Flooring:
- Wood FlooringCarpet FlooringTile Flooring
- Foundation Details:
- Slab
- Garage/Parking:
- GarageAttached Garage
- Home amenities:
- ENERGY STAR CertifiedGreen Construction
- Interior Features:
- Ceiling-HighWalk-In ClosetPantryBreakfast BarWalk-In Pantry
- Kitchen:
- DishwasherMicrowave OvenOvenDisposalGas CooktopConvection OvenKitchen IslandElectric Oven
- Laundry facilities:
- DryerWasher
- Lighting:
- Lighting
- Property amenities:
- BarBackyardPots & Pans DrawersCabinetsYard
- Rooms:
- Kitchen

Get a consultation with our New Homes Expert
- See how your home builds wealth
- Plan your home-buying roadmap
- Discover hidden gems
Utility information
- Heating:
- Water Heater, Gas Heating
- Sewer:
- Public Sewer
- Utilities:
- HVAC
- Water source:
- Public
About the builder - Newmark Homes
Neighborhood
Home address
Schools in Lamar Consolidated Independent School District
- Grades M-MPublicviola gilmore randle elementary1.7 mi5902 sycamore ranch lnna
- Grades M-MPublicwillie melton sr elementary1.9 mi2880 jordan ranch blvdna
GreatSchools’ Summary Rating calculation is based on 4 of the school’s themed ratings, including test scores, student/academic progress, college readiness, and equity. This information should only be used as a reference. Jome is not affiliated with GreatSchools and does not endorse or guarantee this information. Please reach out to schools directly to verify all information and enrollment eligibility. Data provided by GreatSchools.org © 2025
Places of interest
Getting around
Air quality
Natural hazards risk
Provided by FEMA

Considering this home?
Our expert will guide your tour, in-person or virtual
Need more information?
Text or call (888) 545-5198
Financials
Estimated monthly payment
Let us help you find your dream home
How many bedrooms are you looking for?
Similar homes nearby
Recently added communities in this area
Nearby communities in Fulshear
New homes in nearby cities
More New Homes in Fulshear, TX
Newmark Homes, MLS 25148799
Copyright © 2025, Houston Realtors Information Service, Inc. The information provided is exclusively for consumers’ personal, non-commercial use, and may not be used for any purpose other than to identify prospective properties consumers may be interested in purchasing. Information is deemed reliable but not guaranteed. All information provided should be independently verified.
Read moreLast checked Apr 26, 2:50 am
- Jome
- New homes search
- Texas
- Greater Houston Area
- Fort Bend County
- Fulshear
- 4531 Sunny Hazel Ln, Fulshear, TX 77441


























