








Book your tour. Save an average of $18,473. We'll handle the rest.
We collect exclusive builder offers, book your tours, and support you from start to housewarming.
- Confirmed tours
- Get matched & compare top deals
- Expert help, no pressure
- No added fees
Estimated value based on Jome data, T&C apply





























Why tour with Jome?
- No pressure toursTour at your own pace with no sales pressure
- Expert guidanceGet insights from our home buying experts
- Exclusive accessSee homes and deals not available elsewhere
Jome is featured in
- Single-Family
- Quick move-in
- $204.51/sqft
- $215/quarterly HOA
Home description
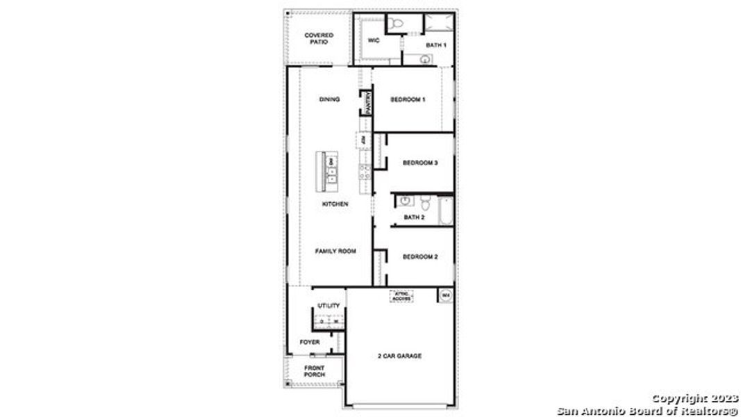
Step into The Brooke floor plan at Stonehill in San Antonio, TX, a one-story home featuring 3 bedrooms and two bathrooms. The Brooke also offers 2 classic front exteriors, a 2-car garage and 1396 square feet of comfortable living. The Brooke features an open concept layout that blends seamlessly to create the perfect everyday space. The gourmet kitchen separates the living area and dining room and includes quartz or granite counter tops, stainless steel appliances, and shaker-style cabinets. The main bedroom features an attractive ensuite bathroom complete with a quartz or granite vanity counter top, shaker style cabinets, separate water closet and a large walk-in shower. You'll have all the space you need to get ready in the morning with a large walk-in closet. You'll find quality carpet and closets in all of your secondary bedrooms, which can also be used as offices, play rooms or other bonus rooms. Head out the back door located off the dining room to find the rear covered patio (per plan) and full yard landscaping & irrigation. Additional features include sheet vinyl flooring in entry, living room, and all wet areas, quartz or granite counter tops in all bathrooms and our HOME IS CONNECTED base package. Using one central hub that talks to all the devices in your home, you can control the lights, thermostat and locks, all from your cellular device.
Keller Williams Heritage, MLS 1960166
May also be listed on the D.R. Horton website
Information last verified by Jome: Today at 7:04 PM (April 22, 2026)
Book your tour. Save an average of $18,473. We'll handle the rest.
We collect exclusive builder offers, book your tours, and support you from start to housewarming.
- Confirmed tours
- Get matched & compare top deals
- Expert help, no pressure
- No added fees
Estimated value based on Jome data, T&C apply
Home details
- Property status:
- Move-in ready
- Lot size (acres):
- 0.12
- Size:
- 1,396 sqft
- Stories:
- 1
- Beds:
- 3
- Baths:
- 2
- Garage spaces:
- 2
- Fence:
- Privacy Fence
Construction details
- Builder Name:
- D.R. Horton
- Year Built:
- 2026
- Roof:
- Composition Roofing
Home features & finishes
- Appliances:
- Sprinkler System
- Cooling:
- Central Air
- Flooring:
- Vinyl FlooringCarpet Flooring
- Foundation Details:
- Slab
- Garage/Parking:
- Garage
- Property amenities:
- Patio
- Rooms:
- Primary Bedroom On MainPrimary Bedroom Downstairs
Room details
Master Bedroom
Kitchen
Dining Room

Get a consultation with our New Homes Expert
- See how your home builds wealth
- Plan your home-buying roadmap
- Discover hidden gems
Utility information
- Heating:
- Central Heating, Gas Heating

Community details
Stonehill
by D.R. Horton, San Antonio, TX
- 105 homes
- 25 plans
- 1,156 - 2,677 sqft
View Stonehill details
More homes in Stonehill
- Home at address 14743 Armstrong Fld, San Antonio, TX 78245

Home
$246,110
- 3 bd
- 2 ba
- 1,156 sqft
14743 Armstrong Fld, San Antonio, TX 78245
- Home at address 14710 Briscoe Downs, San Antonio, TX 78245

The Caprock
$255,000
- 3 bd
- 2 ba
- 1,434 sqft
14710 Briscoe Downs, San Antonio, TX 78245
- Home at address 14733 Briscoe Downs, San Antonio, TX 78245

The Caprock
$255,000
- 3 bd
- 2 ba
- 1,434 sqft
14733 Briscoe Downs, San Antonio, TX 78245
- Home at address 14745 Briscoe Downs, San Antonio, TX 78245

The Caprock
$257,110
- 3 bd
- 2 ba
- 1,434 sqft
14745 Briscoe Downs, San Antonio, TX 78245
- Home at address 14727 Armstrong Fld, San Antonio, TX 78245

The Davis
Savings$260,950
- 3 bd
- 2.5 ba
- 1,470 sqft
14727 Armstrong Fld, San Antonio, TX 78245
- Home at address 14814 Hemphill King, San Antonio, TX 78245

Home
$262,170
- 3 bd
- 2.5 ba
- 1,470 sqft
14814 Hemphill King, San Antonio, TX 78245
Floor plans in Stonehill
About the builder - D.R. Horton

- 1,153communities on Jome
- 10,805homes on Jome
Neighborhood
Home address
- City:
- San Antonio
- County:
- Bexar
- Zip Code:
- 78253
Schools in Northside Independent School District
- Grades PK-06Privatelittle lions learning academy1.7 mi1127 mindie lnna
GreatSchools’ Summary Rating calculation is based on 4 of the school’s themed ratings, including test scores, student/academic progress, college readiness, and equity. This information should only be used as a reference. Jome is not affiliated with GreatSchools and does not endorse or guarantee this information. Please reach out to schools directly to verify all information and enrollment eligibility. Data provided by GreatSchools.org © 2025
Places of interest
Getting around
Air quality

Considering this home?
Our expert will guide your tour, in-person or virtual
Need more information?
Text or call (888) 545-5198
Financials
Estimated monthly payment
Let us help you find your dream home
How many bedrooms are you looking for?
Similar homes nearby
Recently added communities in this area
Nearby communities in San Antonio
New homes in nearby cities
More New Homes in San Antonio, TX
Keller Williams Heritage, MLS 1960166
IDX information is provided exclusively for personal, non-commercial use, and may not be used for any purpose other than to identify prospective properties consumers may be interested in purchasing. Information is deemed reliable but not guaranteed.
Read moreLast checked Apr 22, 7:00 pm
- Jome
- New homes search
- Texas
- Greater San Antonio
- Bexar County
- San Antonio
- Stonehill
- 5245 Fannin Crane, San Antonio, TX 78253





























