



Book your tour. Save an average of $18,473. We'll handle the rest.
We collect exclusive builder offers, book your tours, and support you from start to housewarming.
- Confirmed tours
- Get matched & compare top deals
- Expert help, no pressure
- No added fees
Estimated value based on Jome data, T&C apply
Why tour with Jome?
- No pressure toursTour at your own pace with no sales pressure
- Expert guidanceGet insights from our home buying experts
- Exclusive accessSee homes and deals not available elsewhere
Jome is featured in
- Single-Family
- Ready by September 2026
- $206.72/sqft
- $1,200/annual HOA
Home description
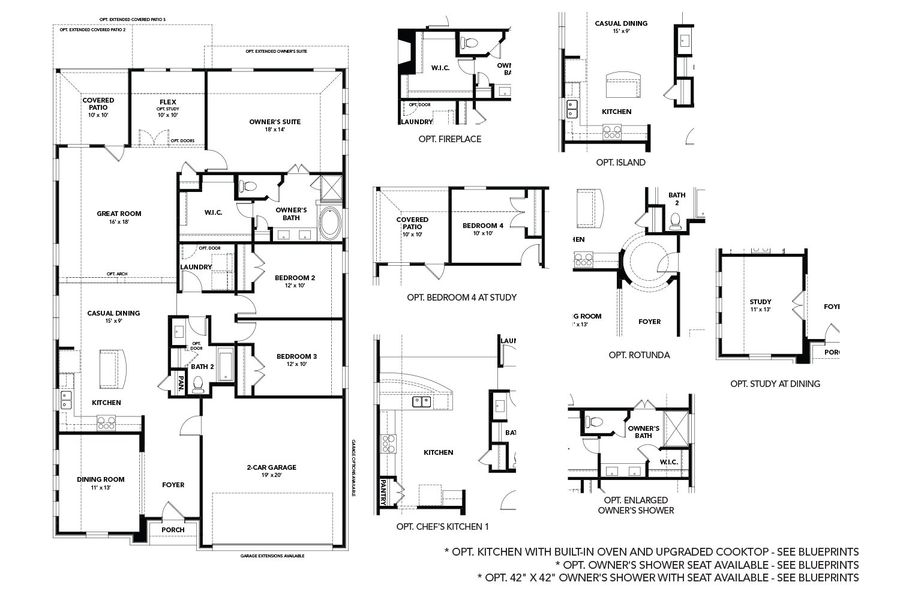
The Laurel brings style, comfort, and everyday ease together in a beautifully livable design. A bright and open main living area welcomes you in, with a large island kitchen at the heart of the home. Whether you’re entertaining or enjoying a quiet evening, the connection between the kitchen, dining, and family room creates a space that feels both vibrant and relaxing. A formal dining room is the perfect place to gather and a private study offers a quiet home office space. The primary owner’s suite is tucked away at the rear of the home, and the choice to add laundry room access through the primary suite closet is the ultimate convenience. With every inch designed for comfort and function and many ways to personalize, the Laurel makes it easy to love where you live.
May also be listed on the DRB Homes website
Information last verified by Jome: Today at 7:25 AM (April 22, 2026)
Book your tour. Save an average of $18,473. We'll handle the rest.
We collect exclusive builder offers, book your tours, and support you from start to housewarming.
- Confirmed tours
- Get matched & compare top deals
- Expert help, no pressure
- No added fees
Estimated value based on Jome data, T&C apply
Home details
- Property status:
- Under construction
- Size:
- 2,018 sqft
- Stories:
- 1
- Beds:
- 3
- Baths:
- 2
- Garage spaces:
- 2
Construction details
- Builder Name:
- DRB Homes
- Completion Date:
- September, 2026
Home features & finishes
- Garage/Parking:
- Garage
- Rooms:
- Primary Bedroom On MainPrimary Bedroom Downstairs

Get a consultation with our New Homes Expert
- See how your home builds wealth
- Plan your home-buying roadmap
- Discover hidden gems

Community details
Westside Preserve Premier
by DRB Homes, Midlothian, TX
- 3 homes
- 7 plans
- 1,970 - 3,050 sqft
View Westside Preserve Premier details
More homes in Westside Preserve Premier
- Home at address 4352 Biddle St, Midlothian, TX 76065

Oleander
Savings$439,690
- 4 bd
- 3 ba
- 2,211 sqft
4352 Biddle St, Midlothian, TX 76065
- Home at address 4516 Michigan Ave, Midlothian, TX 76065

Juniper
Savings$450,024
- 4 bd
- 3 ba
- 2,168 sqft
4516 Michigan Ave, Midlothian, TX 76065
Floor plans in Westside Preserve Premier
About the builder - DRB Homes
Neighborhood
Home address
- City:
- Midlothian
- County:
- Ellis
- Zip Code:
- 76065
Schools in Midlothian Independent School District
GreatSchools’ Summary Rating calculation is based on 4 of the school’s themed ratings, including test scores, student/academic progress, college readiness, and equity. This information should only be used as a reference. Jome is not affiliated with GreatSchools and does not endorse or guarantee this information. Please reach out to schools directly to verify all information and enrollment eligibility. Data provided by GreatSchools.org © 2025
Places of interest
Getting around
Air quality

Considering this home?
Our expert will guide your tour, in-person or virtual
Need more information?
Text or call (888) 545-5198
Financials
Estimated monthly payment
Let us help you find your dream home
How many bedrooms are you looking for?
Similar homes nearby
Recently added communities in this area
Nearby communities in Midlothian
New homes in nearby cities
More New Homes in Midlothian, TX
- Jome
- New homes search
- Texas
- Dallas-Fort Worth Area
- Ellis County
- Midlothian
- Westside Preserve Premier
- 4372 Biddle St, Midlothian, TX 76065

































