



Book your tour. Save an average of $18,473. We'll handle the rest.
We collect exclusive builder offers, book your tours, and support you from start to housewarming.
- Confirmed tours
- Get matched & compare top deals
- Expert help, no pressure
- No added fees
Estimated value based on Jome data, T&C apply
Why tour with Jome?
- No pressure toursTour at your own pace with no sales pressure
- Expert guidanceGet insights from our home buying experts
- Exclusive accessSee homes and deals not available elsewhere
Jome is featured in
- Single-Family
- Under construction
- $273.99/sqft
- $1,100/annual HOA
Home description
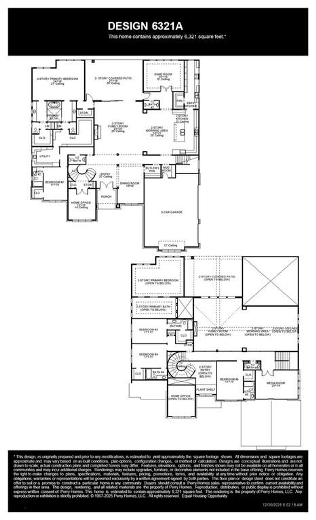
Featured on a 1 acre homesite. This floorplan begins at the front porch and an extended entry, opening to a home office with French doors and formal dining room. Continuing into the kitchen, the home features a prep kitchen, butler's pantry, and morning area. The two-story family room offers a fireplace and sliding glass doors providing access to the two-story backyard patio. A game room with French doors at the rear of the home. The floor plan places the primary suite on the first floor with a private primary bath with a freestanding tub, a glass enclosed shower, and two walk-in closets. Upstairs, the home plan features a theatre room, three secondary bedrooms, and three secondary full bathrooms, creating flexible living and entertainment space. This home plan includes a utility room, mud room, and a three-car garage.
Perry Homes Realty LLC, MLS 21242430
May also be listed on the Perry Homes website
Information last verified by Jome: Today at 4:16 AM (April 17, 2026)
Home highlights
Peaceful Dallas lake with trails, birdwatching, and historic neighborhoods just minutes from the city center.
Book your tour. Save an average of $18,473. We'll handle the rest.
We collect exclusive builder offers, book your tours, and support you from start to housewarming.
- Confirmed tours
- Get matched & compare top deals
- Expert help, no pressure
- No added fees
Estimated value based on Jome data, T&C apply
Home details
- Property status:
- Under construction
- Collection:
- Bristol Valley 1 Acre
- Lot size (acres):
- 0.15
- Size:
- 6,321 sqft
- Stories:
- 1
- Beds:
- 5
- Baths:
- 5
- Half baths:
- 1
- Garage spaces:
- 3
- Fence:
- Wood Fence, Wrought Iron Fence
Construction details
- Builder Name:
- Perry Homes
- Year Built:
- 2026
- Roof:
- Roof Gutter, Composition Roofing
Home features & finishes
- Appliances:
- Exhaust Fan VentedSprinkler System
- Construction Materials:
- BrickRockStone
- Cooling:
- Ceiling Fan(s)Central Air
- Flooring:
- Ceramic FlooringWood FlooringCarpet FlooringTile Flooring
- Foundation Details:
- Slab
- Garage/Parking:
- Door OpenerGarageFront Entry Garage/ParkingMulti-Door GarageAttached Garage
- Home amenities:
- Green Construction
- Interior Features:
- Sound System Wiring
- Kitchen:
- DishwasherMicrowave OvenDisposalGas CooktopGas OvenKitchen Range
- Lighting:
- Decorative/Designer Lighting
- Property amenities:
- SidewalkBackyardPatioFireplaceYardSmart Home SystemPorch
- Rooms:
- Primary Bedroom On MainFamily RoomOpen Concept FloorplanPrimary Bedroom Downstairs
- Security system:
- Fire Alarm SystemSmoke DetectorCarbon Monoxide Detector

Get a consultation with our New Homes Expert
- See how your home builds wealth
- Plan your home-buying roadmap
- Discover hidden gems
Utility information
- Heating:
- Water Heater, Central Heating, Gas Heating, Tankless water heater
- Utilities:
- Underground Utilities, HVAC, Individual Gas Meter, Cable TV, Curbs

Community details
Bristol Valley
by Perry Homes, Rockwall, TX
- 12 homes
- 36 plans
- 3,068 - 6,321 sqft
View Bristol Valley details
More homes in Bristol Valley
- Home at address 121 Arbor Glen Dr, Heath, TX 75032

4594A
Bristol Valley 1 Acre
$1,585,900
- 5 bd
- 5.5 ba
- 4,594 sqft
121 Arbor Glen Dr, Heath, TX 75032
- Home at address 121 Abor Glen Dr, Heath, TX 75032

Home
Bristol Valley 1 Acre
$1,585,900
- 5 bd
- 5.5 ba
- 4,594 sqft
121 Abor Glen Dr, Heath, TX 75032
- Home at address 218 Chesterfield Ln, Heath, TX 75032

4594A
Bristol Valley 1 Acre
$1,590,900
- 5 bd
- 5.5 ba
- 4,594 sqft
218 Chesterfield Ln, Heath, TX 75032
- Home at address 118 Arbor Glen Dr, Heath, TX 75032

6321A
Bristol Valley 1 Acre
$1,731,900
- 5 bd
- 5.5 ba
- 6,321 sqft
118 Arbor Glen Dr, Heath, TX 75032
Floor plans in Bristol Valley
About the builder - Perry Homes

- 391communities on Jome
- 1,600homes on Jome
Neighborhood
Home address
Schools in Rockwall Independent School District
GreatSchools’ Summary Rating calculation is based on 4 of the school’s themed ratings, including test scores, student/academic progress, college readiness, and equity. This information should only be used as a reference. Jome is not affiliated with GreatSchools and does not endorse or guarantee this information. Please reach out to schools directly to verify all information and enrollment eligibility. Data provided by GreatSchools.org © 2025
Places of interest
Getting around
Air quality
Noise level
A Soundscore™ rating is a number between 50 (very loud) and 100 (very quiet) that tells you how loud a location is due to environmental noise.

Considering this home?
Our expert will guide your tour, in-person or virtual
Need more information?
Text or call (888) 545-5198
Financials
Estimated monthly payment
Let us help you find your dream home
How many bedrooms are you looking for?
Similar homes nearby
Recently added communities in this area
Nearby communities in Heath
New homes in nearby cities
More New Homes in Heath, TX
Perry Homes Realty LLC, MLS 21242430
IDX information is provided exclusively for personal, non-commercial use, and may not be used for any purpose other than to identify prospective properties consumers may be interested in purchasing. You may not reproduce or redistribute this data, it is for viewing purposes only. This data is deemed reliable, but is not guaranteed accurate by the MLS or NTREIS.
Read moreLast checked Apr 17, 4:00 am
- Jome
- New homes search
- Texas
- Dallas-Fort Worth Area
- Rockwall County
- Heath
- Bristol Valley
- Bristol Valley 1 Acre
- 118 Abor Glen Dr, Heath, TX 75032

























