






Book your tour. Save an average of $18,473. We'll handle the rest.
We collect exclusive builder offers, book your tours, and support you from start to housewarming.
- Confirmed tours
- Get matched & compare top deals
- Expert help, no pressure
- No added fees
Estimated value based on Jome data, T&C apply



Why tour with Jome?
- No pressure toursTour at your own pace with no sales pressure
- Expert guidanceGet insights from our home buying experts
- Exclusive accessSee homes and deals not available elsewhere
Jome is featured in
- Single-Family
- Quick move-in
- $158.97/sqft
- $900/annual HOA
Home description
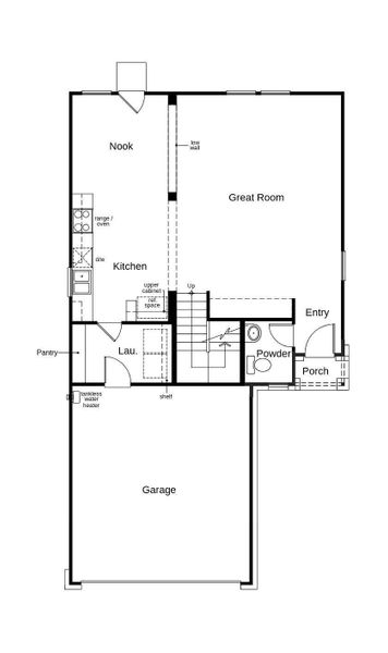
KB HOME UNDER CONSTRUCTION – Welcome to 22858 Fulton Landing Drive in the charming Bauer Meadows community, zoned to Waller ISD! This thoughtfully designed two-story home offers 3 bedrooms, 2 full baths, 1 half bath, and an attached 2-car garage. The open-concept Great Room flows effortlessly into the kitchen, creating an ideal space for everyday living and entertaining. The kitchen is beautifully appointed with granite countertops, stainless steel appliances, and generous cabinetry for ample storage. The private primary suite features a dual-sink vanity and an oversized tub/shower combination, while the secondary bath includes an extended vanity with convenient knee space. Additional highlights include front gutters and a rear patio slab—perfect for outdoor grilling and gatherings. Don’t miss this incredible opportunity to own a beautiful new home—schedule your showing today!
KB Home Houston, MLS 72707114
May also be listed on the KB Home website
Information last verified by Jome: Today at 2:35 AM (April 19, 2026)
Book your tour. Save an average of $18,473. We'll handle the rest.
We collect exclusive builder offers, book your tours, and support you from start to housewarming.
- Confirmed tours
- Get matched & compare top deals
- Expert help, no pressure
- No added fees
Estimated value based on Jome data, T&C apply
Home details
- Property status:
- Move-in ready
- Size:
- 1,609 sqft
- Stories:
- 2
- Beds:
- 3
- Baths:
- 2
- Half baths:
- 1
- Garage spaces:
- 2
Construction details
- Builder Name:
- KB Home
- Year Built:
- 2026
- Roof:
- Composition Roofing
Home features & finishes
- Construction Materials:
- CementBrick
- Flooring:
- Vinyl FlooringCarpet FlooringTile Flooring
- Foundation Details:
- Slab
- Garage/Parking:
- GarageAttached Garage
- Home amenities:
- ENERGY STAR CertifiedGreen Construction
- Interior Features:
- Walk-In ClosetPantryWindow Coverings
- Kitchen:
- Range-Free StandingDishwasherMicrowave OvenOvenDisposalGas CooktopGas OvenKitchen Range
- Laundry facilities:
- DryerWasher
- Lighting:
- Lighting
- Property amenities:
- DeckBackyardPatio
- Rooms:
- Kitchen

Get a consultation with our New Homes Expert
- See how your home builds wealth
- Plan your home-buying roadmap
- Discover hidden gems
Utility information
- Heating:
- Water Heater, Gas Heating
- Utilities:
- HVAC
- Water source:
- Public

Community details
Bauer Meadows
by KB Home, Hockley, TX
- 9 homes
- 10 plans
- 1,042 - 2,070 sqft
View Bauer Meadows details
More homes in Bauer Meadows
- Home at address 22846 Mahogany Hills Ln, Hockley, TX 77447

Home
$219,995
- 3 bd
- 2 ba
- 1,360 sqft
22846 Mahogany Hills Ln, Hockley, TX 77447
- Home at address 22839 Magnolia Haven Dr, Hockley, TX 77447

Home
$254,995
- 4 bd
- 2 ba
- 1,604 sqft
22839 Magnolia Haven Dr, Hockley, TX 77447
- Home at address 22854 Fulton Landing Dr, Hockley, TX 77447

Home
$255,580
- 3 bd
- 2 ba
- 1,548 sqft
22854 Fulton Landing Dr, Hockley, TX 77447
- Home at address 19814 Corberry Park Ln, Hockley, TX 77447

Home
$259,995
- 4 bd
- 2 ba
- 1,604 sqft
19814 Corberry Park Ln, Hockley, TX 77447
- Home at address 22859 Wolfshire Wy, Hockley, TX 77447

Home
$269,995
- 3 bd
- 2.5 ba
- 1,609 sqft
22859 Wolfshire Wy, Hockley, TX 77447
- Home at address 19827 Corberry Park Ln, Hockley, TX 77447

Home
$275,256
- 3 bd
- 2.5 ba
- 1,908 sqft
19827 Corberry Park Ln, Hockley, TX 77447
Floor plans in Bauer Meadows
About the builder - KB Home
Neighborhood
Home address
Schools in Waller Independent School District
- Grades M-MPublicbryan lowe elementary3.2 mi31502 conifer farm drna
GreatSchools’ Summary Rating calculation is based on 4 of the school’s themed ratings, including test scores, student/academic progress, college readiness, and equity. This information should only be used as a reference. Jome is not affiliated with GreatSchools and does not endorse or guarantee this information. Please reach out to schools directly to verify all information and enrollment eligibility. Data provided by GreatSchools.org © 2025
Places of interest
Getting around
Air quality

Considering this home?
Our expert will guide your tour, in-person or virtual
Need more information?
Text or call (888) 545-5198
Financials
Estimated monthly payment
Let us help you find your dream home
How many bedrooms are you looking for?
Similar homes nearby
Recently added communities in this area
Nearby communities in Hockley
New homes in nearby cities
More New Homes in Hockley, TX
KB Home Houston, MLS 72707114
Copyright © 2025, Houston Realtors Information Service, Inc. The information provided is exclusively for consumers’ personal, non-commercial use, and may not be used for any purpose other than to identify prospective properties consumers may be interested in purchasing. Information is deemed reliable but not guaranteed. All information provided should be independently verified.
Read moreLast checked Apr 19, 8:50 am
- Jome
- New homes search
- Texas
- Greater Houston Area
- Harris County
- Hockley
- Bauer Meadows
- 22858 Fulton Landing Dr, Hockley, TX 77447
































