









Book your tour. Save an average of $18,473. We'll handle the rest.
We collect exclusive builder offers, book your tours, and support you from start to housewarming.
- Confirmed tours
- Get matched & compare top deals
- Expert help, no pressure
- No added fees
Estimated value based on Jome data, T&C apply


















- 3 bd
- 2 ba
- 1,209 sqft
122 Pine Branch Ct, Lufkin, TX 75904
Why tour with Jome?
- No pressure toursTour at your own pace with no sales pressure
- Expert guidanceGet insights from our home buying experts
- Exclusive accessSee homes and deals not available elsewhere
Jome is featured in
- Single-Family
- Quick move-in
- $145.57/sqft
- $100/annual HOA
Home description
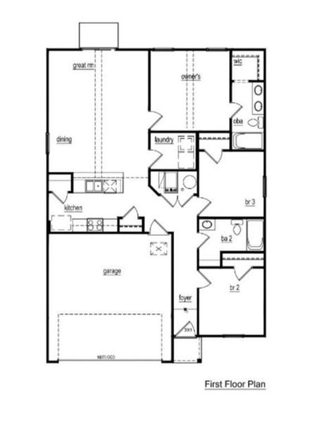
Welcome to Shirey Forest, a growing community in Lufkin offering new homes designed for modern living. The Washington floor plan is a thoughtfully designed one-story home featuring 3 bedrooms, 2 bathrooms, and an open-concept layout that creates a seamless flow between the living, dining, and kitchen areas—ideal for both everyday living and entertaining. Conveniently located with easy access to major roadways, shopping, dining, and everyday essentials. Taxes are currently based on lot value only.
Gann Medford Real Estate, MLS 8310297
May also be listed on the National HomeCorp website
Information last verified by Jome: Yesterday at 8:50 PM (April 16, 2026)
Book your tour. Save an average of $18,473. We'll handle the rest.
We collect exclusive builder offers, book your tours, and support you from start to housewarming.
- Confirmed tours
- Get matched & compare top deals
- Expert help, no pressure
- No added fees
Estimated value based on Jome data, T&C apply
Home details
- Property status:
- Move-in ready
- Lot size (acres):
- 0.21
- Size:
- 1,209 sqft
- Stories:
- 1
- Beds:
- 3
- Baths:
- 2
- Garage spaces:
- 2
Construction details
- Builder Name:
- National HomeCorp
- Year Built:
- 2025
- Roof:
- Composition Roofing
Home features & finishes
- Construction Materials:
- Cement
- Flooring:
- Vinyl Flooring
- Foundation Details:
- Slab
- Garage/Parking:
- GarageAttached Garage
- Interior Features:
- Breakfast Bar
- Kitchen:
- DishwasherMicrowave OvenKitchen Range
- Property amenities:
- BarBackyard
- Rooms:
- Primary Bedroom On MainKitchenPrimary Bedroom Downstairs

Get a consultation with our New Homes Expert
- See how your home builds wealth
- Plan your home-buying roadmap
- Discover hidden gems
Utility information
- Heating:
- Electric Heating
- Sewer:
- Public Sewer
- Water source:
- Public
About the builder - National HomeCorp
Neighborhood
Home address
Schools in Lufkin Independent School District
GreatSchools’ Summary Rating calculation is based on 4 of the school’s themed ratings, including test scores, student/academic progress, college readiness, and equity. This information should only be used as a reference. Jome is not affiliated with GreatSchools and does not endorse or guarantee this information. Please reach out to schools directly to verify all information and enrollment eligibility. Data provided by GreatSchools.org © 2025
Getting around
Noise level
A Soundscore™ rating is a number between 50 (very loud) and 100 (very quiet) that tells you how loud a location is due to environmental noise.
Natural hazards risk
Provided by FEMA

Considering this home?
Our expert will guide your tour, in-person or virtual
Need more information?
Text or call (888) 545-5198
Financials
Estimated monthly payment
Let us help you find your dream home
How many bedrooms are you looking for?
Similar homes nearby
Recently added communities in this area
Nearby communities in Lufkin
New homes in nearby cities
More New Homes in Lufkin, TX
Gann Medford Real Estate, MLS 8310297
Copyright © 2025, Houston Realtors Information Service, Inc. The information provided is exclusively for consumers’ personal, non-commercial use, and may not be used for any purpose other than to identify prospective properties consumers may be interested in purchasing. Information is deemed reliable but not guaranteed. All information provided should be independently verified.
Read moreLast checked Apr 16, 8:50 pm
- Jome
- New homes search
- Texas
- Angelina County
- Lufkin
- 122 Pine Branch Ct, Lufkin, TX 75904






