








Book your tour. Save an average of $18,473. We'll handle the rest.
We collect exclusive builder offers, book your tours, and support you from start to housewarming.
- Confirmed tours
- Get matched & compare top deals
- Expert help, no pressure
- No added fees
Estimated value based on Jome data, T&C apply























Why tour with Jome?
- No pressure toursTour at your own pace with no sales pressure
- Expert guidanceGet insights from our home buying experts
- Exclusive accessSee homes and deals not available elsewhere
Jome is featured in
- Single-Family
- Ready by August 2026
- $185.4/sqft
- $1,100/annual HOA
Home description
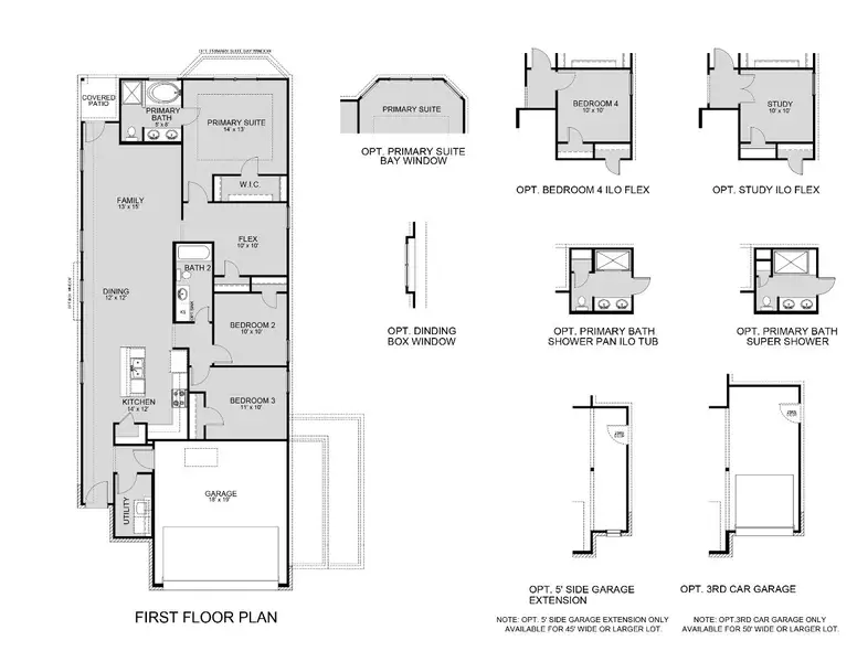
The Wildflower plan is a 1-story home with 3 bedrooms, 2 baths, and includes a covered patio, study, and kitchen island.
May also be listed on the Legend Homes website
Information last verified by Jome: Today at 6:54 AM (April 14, 2026)
Book your tour. Save an average of $18,473. We'll handle the rest.
We collect exclusive builder offers, book your tours, and support you from start to housewarming.
- Confirmed tours
- Get matched & compare top deals
- Expert help, no pressure
- No added fees
Estimated value based on Jome data, T&C apply
Home details
- Property status:
- Under construction
- Size:
- 1,556 sqft
- Stories:
- 1
- Beds:
- 3
- Baths:
- 2
- Garage spaces:
- 2
Construction details
- Builder Name:
- Legend Homes
- Completion Date:
- August, 2026
Home features & finishes
- Garage/Parking:
- Garage
- Kitchen:
- Stainless Steel AppliancesQuartz countertop
- Property amenities:
- Patio
- Rooms:
- Primary Bedroom On MainKitchenOffice/StudyPrimary Bedroom Downstairs

Get a consultation with our New Homes Expert
- See how your home builds wealth
- Plan your home-buying roadmap
- Discover hidden gems

Community details
Bammel Oaks
by Legend Homes, Houston, TX
- 17 homes
- 9 plans
- 1,382 - 2,622 sqft
View Bammel Oaks details
More homes in Bammel Oaks
- Home at address 15630 Coneflower Hills Dr, Houston, TX 77090

The Wildflower
$269,990
- 3 bd
- 2 ba
- 1,556 sqft
15630 Coneflower Hills Dr, Houston, TX 77090
- Home at address 15626 Coneflower Hills Dr, Houston, TX 77090

The Woodland
$284,990
- 4 bd
- 2.5 ba
- 1,745 sqft
15626 Coneflower Hills Dr, Houston, TX 77090
- Home at address 15639 Coneflower Hills Dr, Houston, TX 77090

The Woodland
$287,990
- 4 bd
- 2.5 ba
- 1,745 sqft
15639 Coneflower Hills Dr, Houston, TX 77090
- Home at address 2206 Thorpe Grove Ct, Houston, TX 77090

The Lowry
$289,890
- 4 bd
- 2.5 ba
- 1,940 sqft
2206 Thorpe Grove Ct, Houston, TX 77090
- Home at address 15631 Coneflower Hills Dr, Houston, TX 77090

The Lowry
$289,990
- 4 bd
- 2.5 ba
- 1,940 sqft
15631 Coneflower Hills Dr, Houston, TX 77090
- Home at address 15618 Buffalo Meadow Ct, Houston, TX 77090

The Auburn
$294,990
- 3 bd
- 2.5 ba
- 2,094 sqft
15618 Buffalo Meadow Ct, Houston, TX 77090
Floor plans in Bammel Oaks
About the builder - Legend Homes
Neighborhood
Home address
Schools in Spring Independent School District
GreatSchools’ Summary Rating calculation is based on 4 of the school’s themed ratings, including test scores, student/academic progress, college readiness, and equity. This information should only be used as a reference. Jome is not affiliated with GreatSchools and does not endorse or guarantee this information. Please reach out to schools directly to verify all information and enrollment eligibility. Data provided by GreatSchools.org © 2025
Places of interest
Getting around
2 nearby routes: 2 bus, 0 rail, 0 otherAir quality
Noise level
A Soundscore™ rating is a number between 50 (very loud) and 100 (very quiet) that tells you how loud a location is due to environmental noise.

Considering this home?
Our expert will guide your tour, in-person or virtual
Need more information?
Text or call (888) 545-5198
Financials
Estimated monthly payment
Let us help you find your dream home
How many bedrooms are you looking for?
Similar homes nearby
Recently added communities in this area
Nearby communities in Houston
New homes in nearby cities
More New Homes in Houston, TX
- Jome
- New homes search
- Texas
- Greater Houston Area
- Harris County
- Houston
- Bammel Oaks
- 15635 Coneflower Hills Dr, Houston, TX 77090

































