







Book your tour. Save an average of $18,473. We'll handle the rest.
We collect exclusive builder offers, book your tours, and support you from start to housewarming.
- Confirmed tours
- Get matched & compare top deals
- Expert help, no pressure
- No added fees
Estimated value based on Jome data, T&C apply









Why tour with Jome?
- No pressure toursTour at your own pace with no sales pressure
- Expert guidanceGet insights from our home buying experts
- Exclusive accessSee homes and deals not available elsewhere
Jome is featured in
- Single-Family
- Quick move-in
- $126.61/sqft
- $2,300/annual HOA
Builder deals available
- TOP-TIER DEAL
FHA 30 Year Fixed
$22,670 est. value- Rate buydown from 3.5% (1–5 year) with 6.778% APR, 3.5% down payment, and 680 credit score
- $10,000 closing costs help
Any loan type
$4,050 est. value- $4,047 free upgrades
Deals may change and are not guaranteed. Some deals apply to specific homes or plans. Not a financing offer. Eligibility varies by lender. Please verify details.
Home description
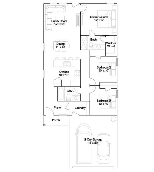
NEW! Lennar Core Cottage "Oakridge" Plan with Brick Elevation J3 in Synova! This single-level home showcases a spacious open floorplan shared between the kitchen, dining area and family room for easy entertaining during gatherings. An owner’s suite enjoys a private location in a rear corner of the home, complemented by an en-suite bathroom and walk-in closet. There are two secondary bedrooms along the side of the home, which are comfortable spaces for household members and overnight guests.
Lennar Homes Village Builders, LLC, MLS 17226057
May also be listed on the Lennar website
Information last verified by Jome: Yesterday at 8:50 PM (April 10, 2026)
Book your tour. Save an average of $18,473. We'll handle the rest.
We collect exclusive builder offers, book your tours, and support you from start to housewarming.
- Confirmed tours
- Get matched & compare top deals
- Expert help, no pressure
- No added fees
Estimated value based on Jome data, T&C apply
Home details
- Property status:
- Move-in ready
- Collection:
- Synova: Cottage
- Size:
- 1,311 sqft
- Stories:
- 1
- Beds:
- 3
- Baths:
- 2
- Garage spaces:
- 2
Construction details
- Builder Name:
- Lennar
- Year Built:
- 2026
- Roof:
- Composition Roofing
Home features & finishes
- Construction Materials:
- CementBrick
- Foundation Details:
- Slab
- Garage/Parking:
- GarageAttached Garage
- Interior Features:
- Walk-In ClosetFoyerPantry
- Laundry facilities:
- Utility/Laundry Room
- Property amenities:
- Porch
- Rooms:
- Primary Bedroom On MainKitchenDining RoomFamily RoomOpen Concept FloorplanPrimary Bedroom Downstairs

Get a consultation with our New Homes Expert
- See how your home builds wealth
- Plan your home-buying roadmap
- Discover hidden gems
Utility information
- Heating:
- Gas Heating
- Water source:
- Public

Community details
Synova
by Lennar, Crosby, TX
- 36 homes
- 35 plans
- 1,084 - 3,223 sqft
View Synova details
More homes in Synova
- Home at address 1523 Gardenia Grove Ln, Crosby, TX 77532

Beckman
Synova: Watermill
$175,000
- 3 bd
- 2 ba
- 1,302 sqft
1523 Gardenia Grove Ln, Crosby, TX 77532
- Home at address 18654 Periwinkle Brook Dr, Crosby, TX 77532

Idlewood
SavingsSynova: Cottage
$187,190
- 3 bd
- 2 ba
- 1,461 sqft
18654 Periwinkle Brook Dr, Crosby, TX 77532
- Home at address 1539 Gardenia Blossom Ln, Crosby, TX 77532

Pinehollow
SavingsSynova: Cottage
$189,990
- 4 bd
- 2 ba
- 1,656 sqft
1539 Gardenia Blossom Ln, Crosby, TX 77532
- Home at address 1618 Gardenia Blossom Ln, Crosby, TX 77532

Oakridge
Synova: Cottage
$190,000
- 3 bd
- 2 ba
- 1,311 sqft
1618 Gardenia Blossom Ln, Crosby, TX 77532
- Home at address 1547 Gardenia Blossom Ln, Crosby, TX 77532

Kitson
SavingsSynova: Cottage
$196,940
- 3 bd
- 2 ba
- 1,451 sqft
1547 Gardenia Blossom Ln, Crosby, TX 77532
- Home at address 1610 Golden Iris Dr, Crosby, TX 77532

Kitson
SavingsSynova: Cottage
$196,990
- 3 bd
- 2 ba
- 1,451 sqft
1610 Golden Iris Dr, Crosby, TX 77532
Floor plans in Synova
About the builder - Lennar

- 1,835communities on Jome
- 6,663homes on Jome
Neighborhood
Home address
Schools in Crosby Independent School District
GreatSchools’ Summary Rating calculation is based on 4 of the school’s themed ratings, including test scores, student/academic progress, college readiness, and equity. This information should only be used as a reference. Jome is not affiliated with GreatSchools and does not endorse or guarantee this information. Please reach out to schools directly to verify all information and enrollment eligibility. Data provided by GreatSchools.org © 2025
Places of interest
Getting around
Air quality
Noise level
A Soundscore™ rating is a number between 50 (very loud) and 100 (very quiet) that tells you how loud a location is due to environmental noise.

Considering this home?
Our expert will guide your tour, in-person or virtual
Need more information?
Text or call (888) 545-5198
Financials
Estimated monthly payment
Let us help you find your dream home
How many bedrooms are you looking for?
Similar homes nearby
Recently added communities in this area
Nearby communities in Crosby
New homes in nearby cities
More New Homes in Crosby, TX
Lennar Homes Village Builders, LLC, MLS 17226057
Copyright © 2025, Houston Realtors Information Service, Inc. The information provided is exclusively for consumers’ personal, non-commercial use, and may not be used for any purpose other than to identify prospective properties consumers may be interested in purchasing. Information is deemed reliable but not guaranteed. All information provided should be independently verified.
Read moreLast checked Apr 10, 8:50 pm
- Jome
- New homes search
- Texas
- Greater Houston Area
- Harris County
- Crosby
- Synova
- Synova: Cottage
- 1515 Golden Iris Dr, Crosby, TX 77532





























