



Book your tour. Save an average of $18,473. We'll handle the rest.
We collect exclusive builder offers, book your tours, and support you from start to housewarming.
- Confirmed tours
- Get matched & compare top deals
- Expert help, no pressure
- No added fees
Estimated value based on Jome data, T&C apply

Why tour with Jome?
- No pressure toursTour at your own pace with no sales pressure
- Expert guidanceGet insights from our home buying experts
- Exclusive accessSee homes and deals not available elsewhere
Jome is featured in
- Single-Family
- Under construction
- $152.87/sqft
- $444/annual HOA
Home description
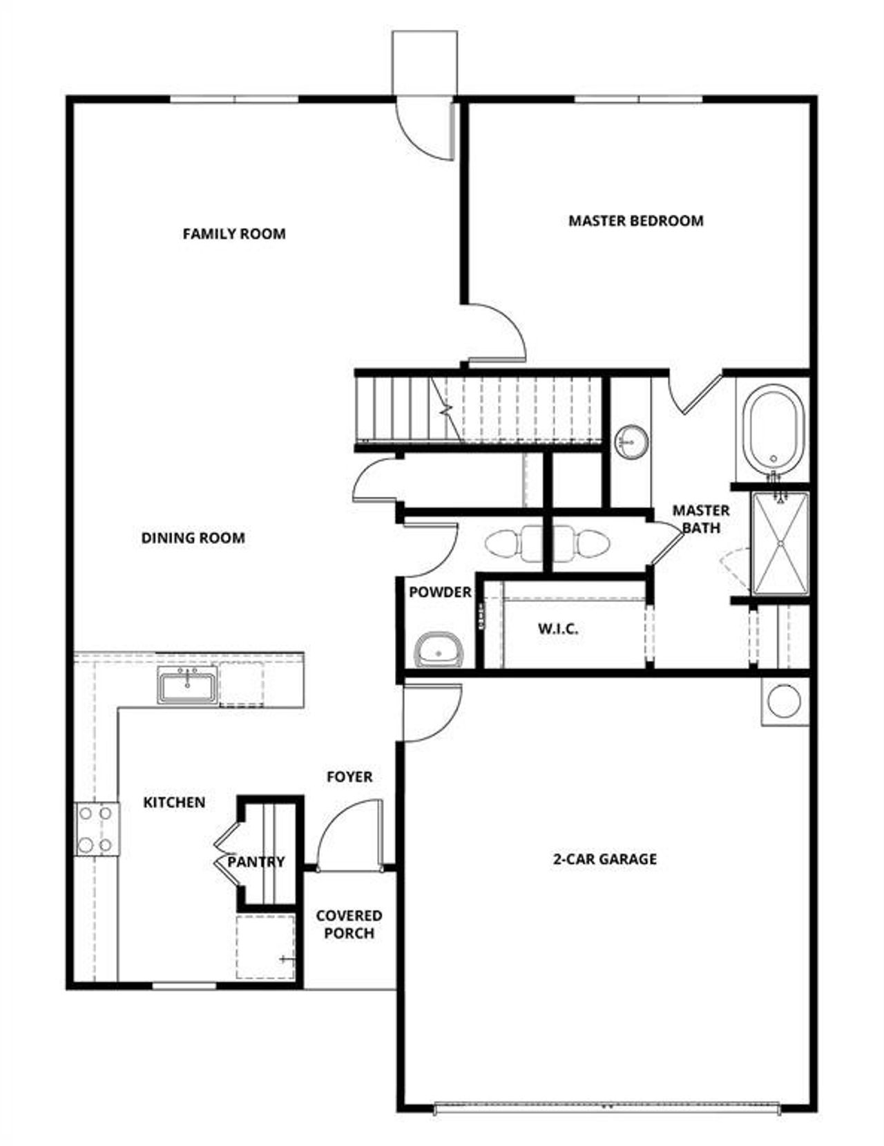
The Driftwood floor plan is all about space, style, and comfort—perfectly designed for modern family living. On the main level, you’ll find an open, flowing layout that brings together a beautifully upgraded kitchen, a welcoming dining area, and a spacious family room—ideal for everything from quiet evenings to lively get-togethers. The downstairs master suite is a true retreat, filled with natural light and featuring a double-sink vanity, oversized walk-in shower, and a roomy closet you'll love.
Upstairs, four generously sized bedrooms and a full bath offer the perfect setup for kids, guests, or even a home office. Every bedroom includes walk-in closets, and there’s extra storage throughout to keep everything organized. The upstairs loft adds even more flexibility—whether you turn it into a playroom, media space, or creative studio, it’s ready to fit your family’s needs and memories to come.
LGI Homes, MLS 21227562
May also be listed on the LGI Homes website
Information last verified by Jome: Today at 1:15 AM (April 20, 2026)
Book your tour. Save an average of $18,473. We'll handle the rest.
We collect exclusive builder offers, book your tours, and support you from start to housewarming.
- Confirmed tours
- Get matched & compare top deals
- Expert help, no pressure
- No added fees
Estimated value based on Jome data, T&C apply
Home details
- Property status:
- Under construction
- Lot size (acres):
- 0.15
- Size:
- 2,616 sqft
- Stories:
- 2
- Beds:
- 5
- Baths:
- 2
- Half baths:
- 1
- Garage spaces:
- 2
- Fence:
- Wood Fence
Construction details
- Builder Name:
- LGI Homes
- Year Built:
- 2026
- Roof:
- Composition Roofing, Shingle Roofing
Home features & finishes
- Appliances:
- Ice MakerWater Purifier
- Construction Materials:
- Brick
- Cooling:
- Ceiling Fan(s)Central Air
- Flooring:
- Vinyl FlooringCarpet Flooring
- Foundation Details:
- Slab
- Garage/Parking:
- Door OpenerGarageFront Entry Garage/ParkingAttached GarageCar Charging Stations
- Interior Features:
- Ceiling-VaultedWalk-In ClosetPantry
- Kitchen:
- DishwasherMicrowave OvenRefrigeratorWater FilterDisposalElectric CooktopGranite countertopKitchen RangeElectric Oven
- Property amenities:
- SidewalkBackyard
- Rooms:
- Open Concept Floorplan
- Security system:
- Fire Alarm SystemSmoke DetectorCarbon Monoxide Detector

Get a consultation with our New Homes Expert
- See how your home builds wealth
- Plan your home-buying roadmap
- Discover hidden gems
Utility information
- Heating:
- Electric Heating, Water Heater, Central Heating
- Utilities:
- City Water System, High Speed Internet Access, Cable TV

Community details
Southaven
by LGI Homes, Hutchins, TX
- 6 homes
- 14 plans
- 1,229 - 2,616 sqft
View Southaven details
More homes in Southaven
- Home at address 1013 Pecan Pl, Hutchins, TX 75141

Home
$314,900
- 3 bd
- 2 ba
- 1,229 sqft
1013 Pecan Pl, Hutchins, TX 75141
- Home at address 116 Magnolia Blvd, Hutchins, TX 75141

Images coming soon
Home
$329,900
- 4 bd
- 2.5 ba
- 2,055 sqft
116 Magnolia Blvd, Hutchins, TX 75141
- Home at address 300 Live Oak Ln, Hutchins, TX 75141

Home
$341,900
- 3 bd
- 2 ba
- 1,376 sqft
300 Live Oak Ln, Hutchins, TX 75141
- Home at address 1001 Holly Dr, Hutchins, TX 75141

Home
$361,900
- 3 bd
- 2 ba
- 1,229 sqft
1001 Holly Dr, Hutchins, TX 75141
- Home at address 301 Magnolia Blvd, Hutchins, TX 75141

Home
$366,900
- 4 bd
- 2 ba
- 1,798 sqft
301 Magnolia Blvd, Hutchins, TX 75141
Floor plans in Southaven
About the builder - LGI Homes

- 115communities on Jome
- 1,110homes on Jome
Neighborhood
Home address
Schools in Dallas Independent School District
- Grades 06-09Publicdr frederick haynes iii global prep at paul quinn2.7 mi3837 simpson stuart road3/10
GreatSchools’ Summary Rating calculation is based on 4 of the school’s themed ratings, including test scores, student/academic progress, college readiness, and equity. This information should only be used as a reference. Jome is not affiliated with GreatSchools and does not endorse or guarantee this information. Please reach out to schools directly to verify all information and enrollment eligibility. Data provided by GreatSchools.org © 2025
Places of interest
Getting around
Air quality

Considering this home?
Our expert will guide your tour, in-person or virtual
Need more information?
Text or call (888) 545-5198
Financials
Estimated monthly payment
Let us help you find your dream home
How many bedrooms are you looking for?
Similar homes nearby
Recently added communities in this area
Nearby communities in Hutchins
New homes in nearby cities
More New Homes in Hutchins, TX
LGI Homes, MLS 21227562
IDX information is provided exclusively for personal, non-commercial use, and may not be used for any purpose other than to identify prospective properties consumers may be interested in purchasing. You may not reproduce or redistribute this data, it is for viewing purposes only. This data is deemed reliable, but is not guaranteed accurate by the MLS or NTREIS.
Read moreLast checked Apr 19, 10:00 pm
- Jome
- New homes search
- Texas
- Dallas-Fort Worth Area
- Dallas County
- Hutchins
- Southaven
- 1029 Pecan Pl, Hutchins, TX 75141























