



Book your tour. Save an average of $18,473. We'll handle the rest.
We collect exclusive builder offers, book your tours, and support you from start to housewarming.
- Confirmed tours
- Get matched & compare top deals
- Expert help, no pressure
- No added fees
Estimated value based on Jome data, T&C apply
- 3 bd
- 2 ba
- 1,573 sqft
600 C-Bar Ranch Trl, Unit 16, Cedar Park, TX 78613
Why tour with Jome?
- No pressure toursTour at your own pace with no sales pressure
- Expert guidanceGet insights from our home buying experts
- Exclusive accessSee homes and deals not available elsewhere
Jome is featured in
- Single-Family
- Ready by July 2026
- $276.9/sqft
- $140/monthly HOA
Home description
New 3-Bedroom, 2-Bathroom Home for Sale in Cedar Park, TX
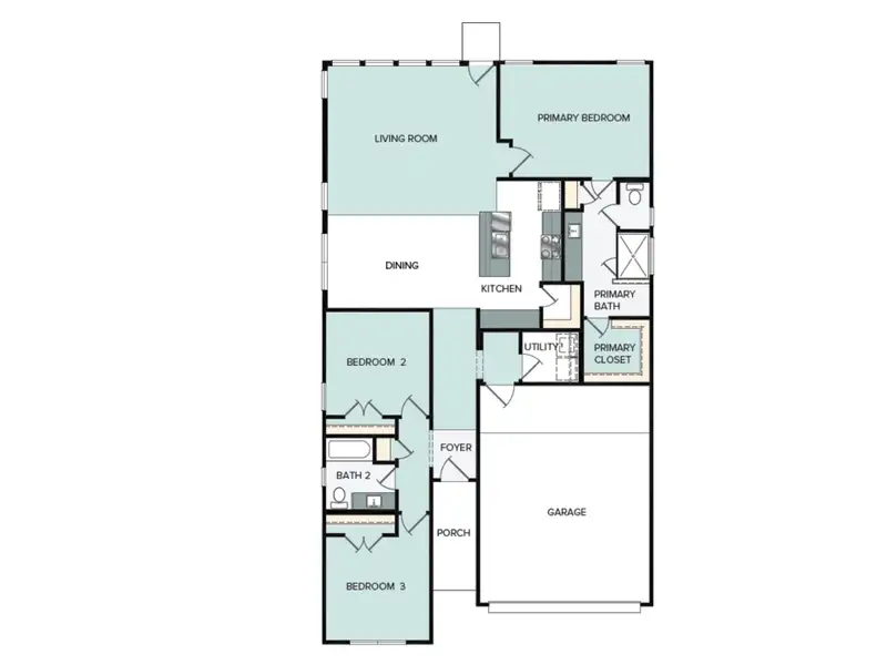
Welcome to Unit 16 in Cedar Park’s beautiful Cross Creek community. This one-story new construction home features open-concept living areas and plenty of natural lighting that fills every corner of the home. Walk into the spacious kitchen where you’ll be greeted with Blanco Calacatta silestone countertops, 42-inch cabinets, a center island, corner pantry, double trash can pull out, and stainless steel appliances with a 4-Burner Gas Cooktop. Retire to the primary suite which offers the space and comfort of a walk-in closet, walk-in shower, private water closet, and dual vanity. Enjoy other amazing highlights such as a utility closet just off of the garage, ceiling fans in the living and primary, and 6 panel horizontal doors.
The Cross Creek community in Cedar Park offers a range of amenities to enhance your daily life, such as scenic walking and biking trails, perfect for outdoor enthusiasts. Relax at nearby parks and playgrounds, or take advantage of the community’s proximity to shopping, dining, and entertainment options.
May also be listed on the Brohn Homes website
Information last verified by Jome: Yesterday at 12:51 PM (March 31, 2026)
Book your tour. Save an average of $18,473. We'll handle the rest.
We collect exclusive builder offers, book your tours, and support you from start to housewarming.
- Confirmed tours
- Get matched & compare top deals
- Expert help, no pressure
- No added fees
Estimated value based on Jome data, T&C apply
Home details
- Property status:
- Under construction
- Size:
- 1,573 sqft
- Stories:
- 1
- Beds:
- 3
- Baths:
- 2
- Garage spaces:
- 2

Floor plan details
Cross Creek 1573
- 3 bd
- 2 ba
- 1,573 sqft
View Cross Creek 1573 details
Construction details
- Builder Name:
- Brohn Homes
- Completion Date:
- July, 2026
Home features & finishes
- Appliances:
- Sprinkler System
- Garage/Parking:
- GarageAttached GarageCar Charging Stations
- Interior Features:
- Ceiling-HighWalk-In ClosetFoyer
- Kitchen:
- Gas Cooktop
- Laundry facilities:
- Utility/Laundry Room
- Property amenities:
- Bathtub in primaryOutdoor LivingFireplacePorch
- Rooms:
- Flex RoomPrimary Bedroom On MainKitchenOffice/StudyDining RoomLiving RoomPrimary Bedroom Downstairs

Get a consultation with our New Homes Expert
- See how your home builds wealth
- Plan your home-buying roadmap
- Discover hidden gems
Utility information
- Utilities:
- Natural Gas Available

Community details
Cross Creek
by Brohn Homes, Cedar Park, TX
- 3 homes
- 9 plans
- 1,573 - 2,695 sqft
View Cross Creek details
More homes in Cross Creek
- Home at address 600 C-Bar Ranch Trl, Unit 120, Cedar Park, TX 78613

Cross Creek 2072
$543,625
- 3 bd
- 2.5 ba
- 2,072 sqft
600 C-Bar Ranch Trl, Unit 120, Cedar Park, TX 78613
- Home at address 600 C-Bar Ranch Trl, Unit 136, Cedar Park, TX 78613

Cross Creek 2381
$627,855
- 4 bd
- 2.5 ba
- 2,381 sqft
600 C-Bar Ranch Trl, Unit 136, Cedar Park, TX 78613
Floor plans in Cross Creek
About the builder - Brohn Homes
Neighborhood
Home address
- City:
- Cedar Park
- County:
- Williamson
- Zip Code:
- 78613
Schools in Leander Independent School District
GreatSchools’ Summary Rating calculation is based on 4 of the school’s themed ratings, including test scores, student/academic progress, college readiness, and equity. This information should only be used as a reference. Jome is not affiliated with GreatSchools and does not endorse or guarantee this information. Please reach out to schools directly to verify all information and enrollment eligibility. Data provided by GreatSchools.org © 2025
Places of interest
Getting around
Air quality
Noise level
A Soundscore™ rating is a number between 50 (very loud) and 100 (very quiet) that tells you how loud a location is due to environmental noise.

Considering this home?
Our expert will guide your tour, in-person or virtual
Need more information?
Text or call (888) 545-5198
Financials
Estimated monthly payment
Let us help you find your dream home
How many bedrooms are you looking for?
Similar homes nearby
Recently added communities in this area
Nearby communities in Cedar Park
New homes in nearby cities
More New Homes in Cedar Park, TX
- Jome
- New homes search
- Texas
- Greater Austin Area
- Williamson County
- Cedar Park
- Cross Creek
- 600 C-Bar Ranch Trl, Unit 16, Cedar Park, TX 78613
































