









Book your tour. Save an average of $18,473. We'll handle the rest.
We collect exclusive builder offers, book your tours, and support you from start to housewarming.
- Confirmed tours
- Get matched & compare top deals
- Expert help, no pressure
- No added fees
Estimated value based on Jome data, T&C apply
























Why tour with Jome?
- No pressure toursTour at your own pace with no sales pressure
- Expert guidanceGet insights from our home buying experts
- Exclusive accessSee homes and deals not available elsewhere
Jome is featured in
- Single-Family
- Under construction
- $174.91/sqft
- $420/annual HOA
Home description
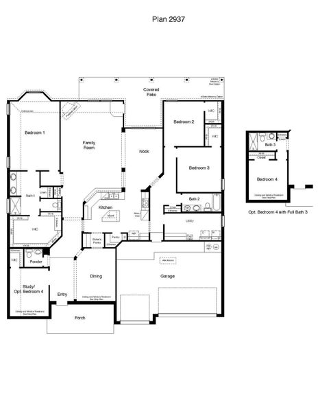
Step into the Waverly at Sterling Meadows, one of our floorplans featuring a seamless blend of modern design and functionality in Waco, TX. This floorplan has 3-4 bedrooms, 2.5 bathrooms, and a 3-car garage. You’ll also enjoy a large backyard with a covered patio and all of its 2,887 approximate square feet of comfortable living.
Walking up the porch, you will step into the entry way and be greeted by the study with the option of a secondary room, the dining room, and a powder room for your guests. Continuing down the hall you will come to the kitchen and family room, through the family room is the primary bedroom. Escape from a long day to this primary bedroom and enjoy the attached bathroom with the double vanity sink and walk-in shower and the spacious walk-in closet. Enjoy the kitchen that is separated from the family room by a breakfast bar, with its island and pantry for storage. Through the kitchen you will find the nook and entry way to 2 secondary bedrooms that are carpeted and have walk-in closets. With easy access to the secondary bathroom and laundry room. Find security and control with our smart home technology, your home is at your fingertips through the Qolsys panel or your phone. You can also continue to build on your smart home collection easily through Bluetooth or Z-wave connectivity. Talk to us today and find your home in Sterling Meadows.
Nexthome Tropicana Realty, MLS 5719432
May also be listed on the D.R. Horton website
Information last verified by Jome: Yesterday at 6:18 AM (March 31, 2026)
Home highlights
Book your tour. Save an average of $18,473. We'll handle the rest.
We collect exclusive builder offers, book your tours, and support you from start to housewarming.
- Confirmed tours
- Get matched & compare top deals
- Expert help, no pressure
- No added fees
Estimated value based on Jome data, T&C apply
Home details
- Property status:
- Under construction
- Lot size (acres):
- 0.68
- Size:
- 2,887 sqft
- Stories:
- 1
- Beds:
- 4
- Baths:
- 3
- Garage spaces:
- 3
- Fence:
- Privacy Fence
- Facing direction:
- Southwest
Construction details
- Builder Name:
- D.R. Horton
- Year Built:
- 2026
- Roof:
- Shingle Roofing
Home features & finishes
- Cooling:
- Ceiling Fan(s)Central Air
- Flooring:
- Carpet FlooringTile Flooring
- Foundation Details:
- Slab
- Garage/Parking:
- GarageAttached Garage
- Home amenities:
- Home Accessibility Features
- Interior Features:
- Double Vanity
- Kitchen:
- DishwasherDisposal
- Property amenities:
- BackyardYardPorch
- Rooms:
- Primary Bedroom On MainPrimary Bedroom Downstairs

Get a consultation with our New Homes Expert
- See how your home builds wealth
- Plan your home-buying roadmap
- Discover hidden gems
Utility information
- Heating:
- Central Heating
- Utilities:
- Electricity Available, Internet Cable

Community details
Sterling Meadows
by D.R. Horton, Salado, TX
- 12 homes
- 5 plans
- 2,171 - 3,043 sqft
View Sterling Meadows details
Community amenities
- Community Pool
More homes in Sterling Meadows
- Home at address 15096 Planeview Dr, Salado, TX 76571

Parker II
Savings$450,675
- 4 bd
- 3 ba
- 2,442 sqft
15096 Planeview Dr, Salado, TX 76571
- Home at address 14525 Egon Dr, Salado, TX 76571

Parker II
$453,655
- 4 bd
- 3 ba
- 2,442 sqft
14525 Egon Dr, Salado, TX 76571
- Home at address 14531 Egon Dr, Salado, TX 76571

Sonoma
$461,340
- 4 bd
- 2.5 ba
- 2,572 sqft
14531 Egon Dr, Salado, TX 76571
- Home at address 14102 Carsten Lp, Salado, TX 76571

Sonoma
$464,680
- 5 bd
- 2.5 ba
- 2,572 sqft
14102 Carsten Lp, Salado, TX 76571
- Home at address 14096 Carsten Lp, Salado, TX 76571

Newburgh
Savings$494,840
- 5 bd
- 3.5 ba
- 3,043 sqft
14096 Carsten Lp, Salado, TX 76571
- Home at address 15138 Planeview Dr, Salado, TX 76571

Newburgh
$525,125
- 5 bd
- 3.5 ba
- 3,043 sqft
15138 Planeview Dr, Salado, TX 76571
Floor plans in Sterling Meadows
About the builder - D.R. Horton

- 1,164communities on Jome
- 10,414homes on Jome
Neighborhood
Home address
Schools in Salado Independent School District
GreatSchools’ Summary Rating calculation is based on 4 of the school’s themed ratings, including test scores, student/academic progress, college readiness, and equity. This information should only be used as a reference. Jome is not affiliated with GreatSchools and does not endorse or guarantee this information. Please reach out to schools directly to verify all information and enrollment eligibility. Data provided by GreatSchools.org © 2025
Places of interest
Getting around
Air quality

Considering this home?
Our expert will guide your tour, in-person or virtual
Need more information?
Text or call (888) 545-5198
Financials
Estimated monthly payment
Let us help you find your dream home
How many bedrooms are you looking for?
Similar homes nearby
Recently added communities in this area
Nearby communities in Salado
New homes in nearby cities
More New Homes in Salado, TX
Nexthome Tropicana Realty, MLS 5719432
Based on information from the Austin Board of REALTORS® (alternatively, from ACTRIS) for the period through 08/13/2024. Neither the Board nor ACTRIS guarantees or is in any way responsible for its accuracy. All data is provided “AS IS” and with all faults. Data maintained by the Board or ACTRIS may not reflect all real estate activity in the market. Information being provided is for consumers’ personal, non-commercial use and may not be used for any purpose other than to identify prospective properties consumers may be interested in purchasing. The Digital Millennium Copyright Act of 1998, 17 U.S.C. § 512 (the “DMCA”) provides recourse for copyright owners who believe that material appearing on the Internet infringes their rights under U.S. copyright law. If you believe in good faith that any content or material made available in connection with our website or services infringes your copyright, you (or your agent) may send us a notice requesting that the content or material be removed, or access to it blocked. Notices must be sent in writing by email to DMCAnotice@MLSGrid.com. The DMCA requires that your notice of alleged copyright infringement include the following information: (1) description of the copyrighted work that is the subject of claimed infringement; (2) description of the alleged infringing content and information sufficient to permit us to locate the content; (3) contact information for you, including your address, telephone number and email address; (4) a statement by you that you have a good faith belief that the content in the manner complained of is not authorized by the copyright owner, or its agent, or by the operation of any law; (5) a statement by you, signed under penalty of perjury, that the information in the notification is accurate and that you have the authority to enforce the copyrights that are claimed to be infringed; and (6) a physical or electronic signature of the copyright owner or a person authorized to act on the copyright owner’s behalf. Failure to include all of the above information may result in the delay of the processing of your complaint.
Read moreLast checked Apr 1, 12:40 am
- Jome
- New homes search
- Texas
- Greater Austin Area
- Bell County
- Salado
- Sterling Meadows
- 14537 Egon Rd, Salado, TX 76571




























