



Book your tour. Save an average of $18,473. We'll handle the rest.
We collect exclusive builder offers, book your tours, and support you from start to housewarming.
- Confirmed tours
- Get matched & compare top deals
- Expert help, no pressure
- No added fees
Estimated value based on Jome data, T&C apply
Why tour with Jome?
- No pressure toursTour at your own pace with no sales pressure
- Expert guidanceGet insights from our home buying experts
- Exclusive accessSee homes and deals not available elsewhere
Jome is featured in
- Townhouse
- Quick move-in
- $183.04/sqft
- $45/monthly HOA
Home description
AVAILABLE NOW. Images representative of plan only and may vary when built.
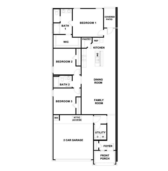
The Magnolia floorplan is a 1-story homes across 1,557 square feet, 3 bedrooms, and 2 bathrooms features in our Palomino community in Manor, TX.
As you enter the home, you'll walk through the long foyer to the living room and kitchen. The kitchen features stainless steel appliances, granite countertops, a kitchen island, and a walk-in pantry. The two secondary bedrooms and full bathroom are located right off the living room. The main bedroom is located near the back of the home providing privacy and features an ensuite with a walk-in shower and large walk-in closet.
This home comes included with a professionally designed landscape package and a full irrigation system as well as our America's Smart Home® package that offers devices such as the Qolsys IQ Panel, Video Doorbell, Alarm.com app, Honeywell Thermostat, Deako Smart Light Switch, Kwikset Smart lock, and more.
D.R. Horton, AMERICA'S Builder, MLS 5043588
May also be listed on the D.R. Horton website
Information last verified by Jome: Yesterday at 6:18 AM (March 31, 2026)
Home highlights
Mixed‑use retail and entertainment center north of Austin with shops, dining, live events and walkable energy.
Book your tour. Save an average of $18,473. We'll handle the rest.
We collect exclusive builder offers, book your tours, and support you from start to housewarming.
- Confirmed tours
- Get matched & compare top deals
- Expert help, no pressure
- No added fees
Estimated value based on Jome data, T&C apply
Home details
- Property status:
- Move-in ready
- Lot size (acres):
- 0.11
- Size:
- 1,557 sqft
- Stories:
- 1
- Beds:
- 3
- Baths:
- 2
- Garage spaces:
- 2
- Fence:
- Wood Fence
- Facing direction:
- Southwest
Construction details
- Builder Name:
- D.R. Horton
- Year Built:
- 2026
- Roof:
- Composition Roofing, Shingle Roofing
Home features & finishes
- Cooling:
- Central Air
- Flooring:
- Vinyl FlooringCarpet Flooring
- Foundation Details:
- Slab
- Garage/Parking:
- GarageAttached Garage
- Home amenities:
- ENERGY STAR Certified
- Interior Features:
- Walk-In ClosetPantryDouble Vanity
- Kitchen:
- DishwasherMicrowave OvenDisposalKitchen Island
- Lighting:
- Exterior LightingLighting
- Property amenities:
- BackyardPatioYardSmart Home System
- Rooms:
- Primary Bedroom On MainOpen Concept FloorplanPrimary Bedroom Downstairs

Get a consultation with our New Homes Expert
- See how your home builds wealth
- Plan your home-buying roadmap
- Discover hidden gems
Utility information
- Heating:
- Thermostat, Central Heating, Gas Heating, Radiant Heating
- Utilities:
- Electricity Available, Underground Utilities, Internet Cable, Sewer Available, Water Available

Community details
Palomino
by D.R. Horton, Manor, TX
- 13 homes
- 7 plans
- 1,310 - 2,217 sqft
View Palomino details
Community amenities
- Cluster Mailbox
- Sidewalks Available
More homes in Palomino
- Home at address 18512-B High Flyer Wy, Manor, TX 78653

The Willow
Savings$264,290
- 3 bd
- 2 ba
- 1,310 sqft
18512-B High Flyer Wy, Manor, TX 78653
- Home at address 15112-A Afleet Alex St, Manor, TX 78653

The Juniper
Savings$274,990
- 3 bd
- 2 ba
- 1,524 sqft
15112-A Afleet Alex St, Manor, TX 78653
- Home at address 18516-A High Flyer Wy, Manor, TX 78653

The Juniper
Savings$279,990
- 3 bd
- 2 ba
- 1,524 sqft
18516-A High Flyer Wy, Manor, TX 78653
- Home at address 18516-A High Flyer Wy, Manor, TX 78653

Home
$279,990
- 3 bd
- 2 ba
- 1,524 sqft
18516-A High Flyer Wy, Manor, TX 78653
- Home at address 15117-A Afleet Alex St, Manor, TX 78653

The Magnolia
Savings$284,990
- 3 bd
- 2 ba
- 1,557 sqft
15117-A Afleet Alex St, Manor, TX 78653
- Home at address 15117-B Afleet Alex St, Manor, TX 78653

The Magnolia
Savings$284,990
- 3 bd
- 2 ba
- 1,557 sqft
15117-B Afleet Alex St, Manor, TX 78653
Floor plans in Palomino
About the builder - D.R. Horton

- 1,164communities on Jome
- 10,414homes on Jome
Neighborhood
Home address
Schools in Manor Independent School District
- Grades KG-06Publicmanor rise academy2.0 mi10335 hwy 290 ena
- Grades PK-PKPublicmanor elementary3.1 mi12904 gregg manor rdna
GreatSchools’ Summary Rating calculation is based on 4 of the school’s themed ratings, including test scores, student/academic progress, college readiness, and equity. This information should only be used as a reference. Jome is not affiliated with GreatSchools and does not endorse or guarantee this information. Please reach out to schools directly to verify all information and enrollment eligibility. Data provided by GreatSchools.org © 2025
Places of interest
Getting around
Air quality

Considering this home?
Our expert will guide your tour, in-person or virtual
Need more information?
Text or call (888) 545-5198
Financials
Estimated monthly payment
Let us help you find your dream home
How many bedrooms are you looking for?
Similar homes nearby
Recently added communities in this area
Nearby communities in Manor
New homes in nearby cities
More New Homes in Manor, TX
D.R. Horton, AMERICA'S Builder, MLS 5043588
Based on information from the Austin Board of REALTORS® (alternatively, from ACTRIS) for the period through 08/13/2024. Neither the Board nor ACTRIS guarantees or is in any way responsible for its accuracy. All data is provided “AS IS” and with all faults. Data maintained by the Board or ACTRIS may not reflect all real estate activity in the market. Information being provided is for consumers’ personal, non-commercial use and may not be used for any purpose other than to identify prospective properties consumers may be interested in purchasing. The Digital Millennium Copyright Act of 1998, 17 U.S.C. § 512 (the “DMCA”) provides recourse for copyright owners who believe that material appearing on the Internet infringes their rights under U.S. copyright law. If you believe in good faith that any content or material made available in connection with our website or services infringes your copyright, you (or your agent) may send us a notice requesting that the content or material be removed, or access to it blocked. Notices must be sent in writing by email to DMCAnotice@MLSGrid.com. The DMCA requires that your notice of alleged copyright infringement include the following information: (1) description of the copyrighted work that is the subject of claimed infringement; (2) description of the alleged infringing content and information sufficient to permit us to locate the content; (3) contact information for you, including your address, telephone number and email address; (4) a statement by you that you have a good faith belief that the content in the manner complained of is not authorized by the copyright owner, or its agent, or by the operation of any law; (5) a statement by you, signed under penalty of perjury, that the information in the notification is accurate and that you have the authority to enforce the copyrights that are claimed to be infringed; and (6) a physical or electronic signature of the copyright owner or a person authorized to act on the copyright owner’s behalf. Failure to include all of the above information may result in the delay of the processing of your complaint.
Read moreLast checked Apr 1, 12:40 am
- Jome
- New homes search
- Texas
- Greater Austin Area
- Travis County
- Manor
- Palomino
- 15117-B Afleet Alex St, Manor, TX 78653


































