



Book your tour. Save an average of $18,473. We'll handle the rest.
We collect exclusive builder offers, book your tours, and support you from start to housewarming.
- Confirmed tours
- Get matched & compare top deals
- Expert help, no pressure
- No added fees
Estimated value based on Jome data, T&C apply

- 3 bd
- 2 ba
- 1,104 sqft
2455 Blue Water Hwy Dr, Surfside Beach, TX 77541
Why tour with Jome?
- No pressure toursTour at your own pace with no sales pressure
- Expert guidanceGet insights from our home buying experts
- Exclusive accessSee homes and deals not available elsewhere
Jome is featured in
- Single-Family
- Quick move-in
- $271.65/sqft
- 0.66-acre lot
Home description
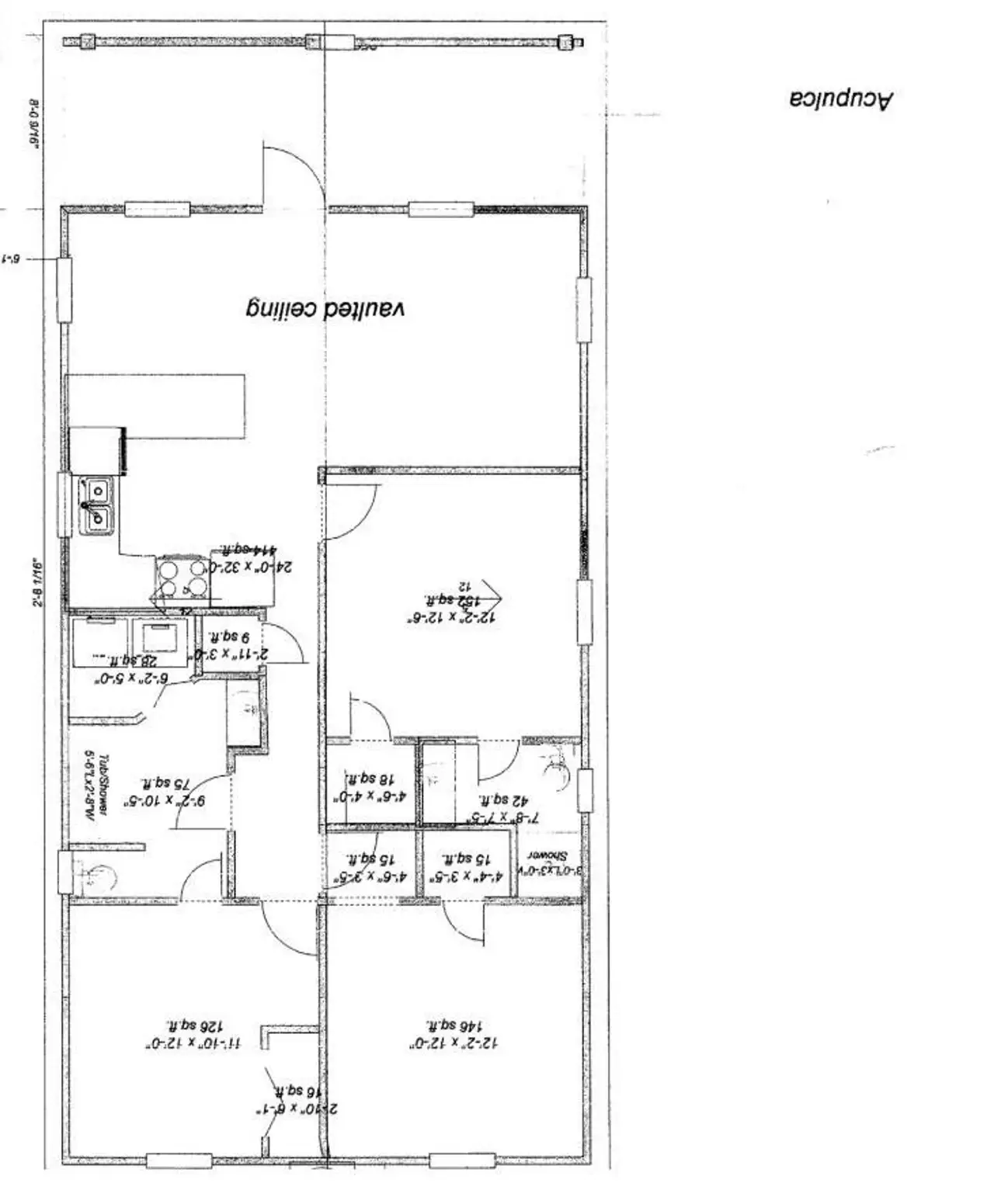
You will love the home, location, and price!! New construction of a 3/2 home in Surfside in Bayside Subdivision. This home has a large front deck that is half covered, and half uncovered. It has an expanded popular floor plan that opens off the deck into an open living room to the dining area and kitchen with a vaulted ceiling. There is a hall to the rear with a pantry and to the left is a primary bedroom with a private bathroom. Further down the hall to the right is a full bathroom access to the utility room. There are two bedrooms to the rear. The bedroom adjacent to the bathroom has a door to the back deck. This is a popular floorplan seen all over Surfside Beach. Some are primary residences and others are rentals. Call for information. The appraisal district has property in the account not included in this listing.
The Local Agents Real Estate LLC, MLS 26219805
Information last verified by Jome: Today at 2:34 AM (April 2, 2026)
Book your tour. Save an average of $18,473. We'll handle the rest.
We collect exclusive builder offers, book your tours, and support you from start to housewarming.
- Confirmed tours
- Get matched & compare top deals
- Expert help, no pressure
- No added fees
Estimated value based on Jome data, T&C apply
Home details
- Property status:
- Move-in ready
- Lot size (acres):
- 0.66
- Size:
- 1,104 sqft
- Stories:
- 1
- Beds:
- 3
- Baths:
- 2
Construction details
- Year Built:
- 2026
- Roof:
- Composition Roofing
Home features & finishes
- Construction Materials:
- Vinyl Siding
- Flooring:
- Vinyl Flooring
- Foundation Details:
- Raised
- Kitchen:
- DishwasherMicrowave OvenDisposalElectric Oven
- Laundry facilities:
- DryerWasher
- Rooms:
- Primary Bedroom On MainPrimary Bedroom Downstairs

Get a consultation with our New Homes Expert
- See how your home builds wealth
- Plan your home-buying roadmap
- Discover hidden gems
Utility information
- Heating:
- Electric Heating
Community amenities
- Waterfront View
Neighborhood
Home address
- City:
- Surfside Beach
- County:
- Brazoria
- Zip Code:
- 77541
Schools in Brazosport Independent School District
GreatSchools’ Summary Rating calculation is based on 4 of the school’s themed ratings, including test scores, student/academic progress, college readiness, and equity. This information should only be used as a reference. Jome is not affiliated with GreatSchools and does not endorse or guarantee this information. Please reach out to schools directly to verify all information and enrollment eligibility. Data provided by GreatSchools.org © 2025
Getting around
Air quality
Natural hazards risk
Provided by FEMA

Considering this home?
Our expert will guide your tour, in-person or virtual
Need more information?
Text or call (888) 545-5198
Financials
Estimated monthly payment
Let us help you find your dream home
How many bedrooms are you looking for?
Similar homes nearby
Recently added communities in this area
Nearby communities in Surfside Beach
New homes in nearby cities
More New Homes in Surfside Beach, TX
The Local Agents Real Estate LLC, MLS 26219805
Copyright © 2025, Houston Realtors Information Service, Inc. The information provided is exclusively for consumers’ personal, non-commercial use, and may not be used for any purpose other than to identify prospective properties consumers may be interested in purchasing. Information is deemed reliable but not guaranteed. All information provided should be independently verified.
Read moreLast checked Apr 2, 8:50 am
- Jome
- New homes search
- Texas
- Brazoria County
- Surfside Beach
- 2455 Blue Water Hwy Dr, Surfside Beach, TX 77541
















