
















































- 4 bd
- 2.5 ba
- 1,952 sqft
361 Dobson Dr, Killeen, TX 76542
- Single-Family
- $144.62/sqft
- $125/quarterly HOA
- 79 days on Jome
New Homes for Sale Near 361 Dobson Dr, Killeen, TX 76542
About this Home
About this home
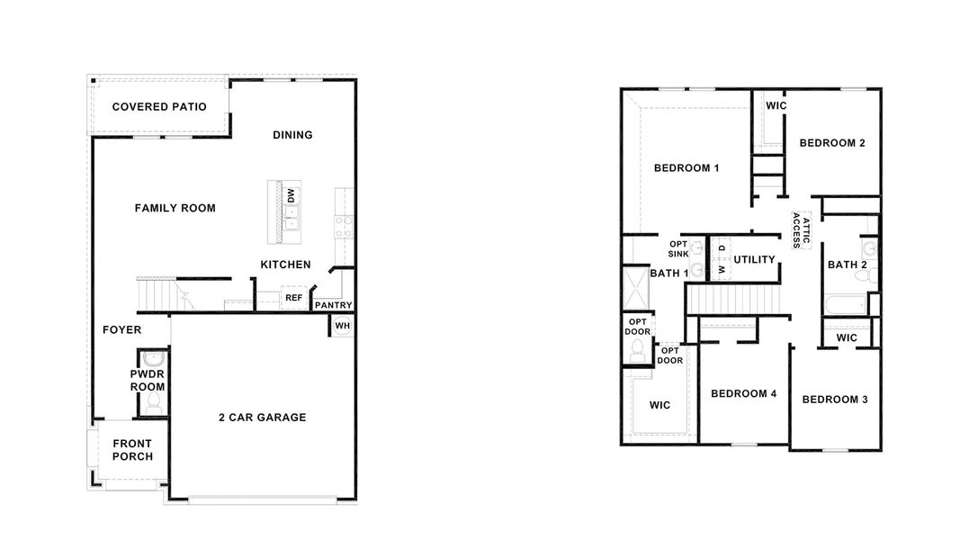
Discover The Grace floor plan in Turnbo Ranch, Killeen, TX—a beautiful balance of timeless charm and modern design. Offering approximately 1,952 sq. ft., this thoughtfully crafted two-story home with 3 bedrooms, 2.5 bath, and a spacious two-car garage.
Step through the inviting arched patio into a grand foyer that opens to an expansive living room. The open-concept layout flows seamlessly into the dining area and chef-inspired kitchen—perfect for daily living and entertaining. The kitchen showcases granite countertops, stainless steel appliances, a large island overlooking the living space, and a deep single-basin sink for added convenience.
Upstairs, the design separates living and private spaces for comfort and privacy. The main suite is a peaceful retreat, featuring a walk-in shower, separate water closet, ample built-in storage, and a generous walk-in closet. Additional bedrooms and a conveniently located utility room provide plenty of space for family and guests.
Every D.R. Horton home comes equipped with smart home technology, giving you control and security at your fingertips.
With style, efficiency, and innovation woven into every detail, The Grace floor plan is the perfect place to call home.
May also be listed on the D.R. Horton website
Information last verified by Jome: Monday at 2:47 AM (April 6, 2026)
Home details
- Property status:
- Sold
- Size:
- 1,952 sqft
- Stories:
- 2
- Beds:
- 4
- Baths:
- 2.5
- Garage spaces:
- 2
Construction details
- Builder Name:
- D.R. Horton
Home features & finishes
- Garage/Parking:
- Garage

Community details
Turnbo Ranch
by D.R. Horton, Killeen, TX
- 17 homes
- 18 plans
- 1,263 - 2,346 sqft
View Turnbo Ranch details
More homes in Turnbo Ranch
- Home at address 345 Presley Dr, Killeen, TX 76542

$266,190
Move-in ready- 4 bd
- 2 ba
- 1,680 sqft
345 Presley Dr, Killeen, TX 76542
- Home at address 325 Presley Dr, Killeen, TX 76542

$268,190
Move-in ready- 4 bd
- 2 ba
- 1,680 sqft
325 Presley Dr, Killeen, TX 76542
- Home at address 353 Presley Dr, Killeen, TX 76542

$272,940
Move-in ready- 4 bd
- 2 ba
- 1,778 sqft
353 Presley Dr, Killeen, TX 76542
- Home at address 378 Presley Dr, Killeen, TX 76542

$276,105
Move-in ready- 4 bd
- 2.5 ba
- 1,823 sqft
378 Presley Dr, Killeen, TX 76542
- Home at address 346 Presley Dr, Killeen, TX 76542

$276,855
Move-in ready- 4 bd
- 2.5 ba
- 1,823 sqft
346 Presley Dr, Killeen, TX 76542
- Home at address 365 Presley Dr, Killeen, TX 76542

$287,190
Move-in ready- 4 bd
- 2.5 ba
- 1,952 sqft
365 Presley Dr, Killeen, TX 76542
Floor plans in Turnbo Ranch
About the builder - D.R. Horton

- 1,140communities on Jome
- 11,324homes on Jome
Neighborhood
Home address
Schools in Killeen Independent School District
- Grades M-MPublicdr jimmie don aycock middle1.3 mi200 n ws young drna
GreatSchools’ Summary Rating calculation is based on 4 of the school’s themed ratings, including test scores, student/academic progress, college readiness, and equity. This information should only be used as a reference. Jome is not affiliated with GreatSchools and does not endorse or guarantee this information. Please reach out to schools directly to verify all information and enrollment eligibility. Data provided by GreatSchools.org © 2025
Places of interest
Getting around
Air quality
Noise level
A Soundscore™ rating is a number between 50 (very loud) and 100 (very quiet) that tells you how loud a location is due to environmental noise.
Financials
Nearby communities in Killeen
Homes in Killeen by D.R. Horton
Recently added communities in this area
Other Builders in Killeen, TX
Nearby sold homes
New homes in nearby cities
More New Homes in Killeen, TX
- Jome
- New homes search
- Texas
- Bell County
- Killeen
- Turnbo Ranch
- 361 Dobson Dr, Killeen, TX 76542






























































