














Book your tour. Save an average of $18,473. We'll handle the rest.
We collect exclusive builder offers, book your tours, and support you from start to housewarming.
- Confirmed tours
- Get matched & compare top deals
- Expert help, no pressure
- No added fees
Estimated value based on Jome data, T&C apply












Why tour with Jome?
- No pressure toursTour at your own pace with no sales pressure
- Expert guidanceGet insights from our home buying experts
- Exclusive accessSee homes and deals not available elsewhere
Jome is featured in
- Single-Family
- Quick move-in
- $188.32/sqft
- $1,000/annual HOA
Home description
About this home
ESTIMATED COMPLETION DATE MAY 2026.
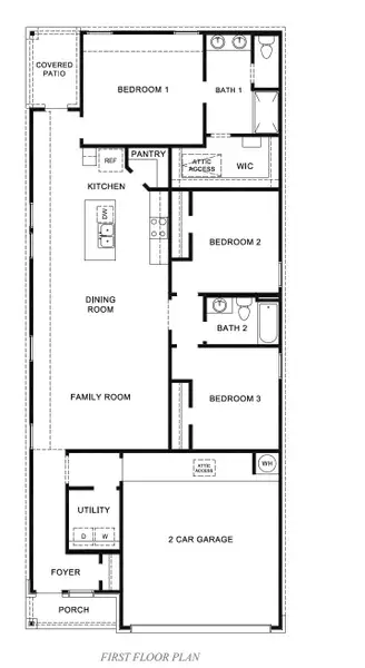
The Diana floorplan is a spacious 1,593 sq ft single-story home featuring an inviting front porch that leads into a foyer and a centrally located family room that flows seamlessly into the dining area and kitchen, complete with a pantry, center island, and ample counter space. The thoughtfully layout includes 3 bedrooms, with Bedroom 1 offering a private retreat complete with a large walk-in closet and an adjoining bath with dual sinks. Bedrooms 2 and 3 are positioned near the second full bath for added convenience. A dedicated utility room is conveniently located near the garage entry, while a covered patio at the rear of the home provides the perfect space for outdoor relaxation. Located in Emberly, a master-planned community featuring The Haven Amenity Village, that includes a clubhouse with fitness center, outdoor courtyard, resort-style pool, water park with splash pad, event lawn, playground, pickleball court, sand volleyball court, dog park, hike/bike trails, and more!
May also be listed on the D.R. Horton website
Information last verified by Jome: Yesterday at 4:26 AM (March 12, 2026)
Home highlights
Major Houston business hub home to energy giants, top jobs, and master-planned communities with greenbelt access.
Book your tour. Save an average of $18,473. We'll handle the rest.
We collect exclusive builder offers, book your tours, and support you from start to housewarming.
- Confirmed tours
- Get matched & compare top deals
- Expert help, no pressure
- No added fees
Estimated value based on Jome data, T&C apply
Home details
- Property status:
- Move-in ready
- Size:
- 1,593 sqft
- Stories:
- 1
- Beds:
- 3
- Baths:
- 2
- Garage spaces:
- 2
Construction details
- Builder Name:
- D.R. Horton
Home features & finishes
- Garage/Parking:
- GarageAttached Garage
- Interior Features:
- Walk-In ClosetFoyerPantry
- Kitchen:
- Stainless Steel AppliancesKitchen Island
- Laundry facilities:
- Utility/Laundry Room
- Property amenities:
- PatioSmart Home SystemPorch
- Rooms:
- Primary Bedroom On MainKitchenDining RoomFamily RoomOpen Concept FloorplanPrimary Bedroom Downstairs

Get a consultation with our New Homes Expert
- See how your home builds wealth
- Plan your home-buying roadmap
- Discover hidden gems

Community details
Emberly at Emberly
by D.R. Horton, Beasley, TX
- 8 homes
- 14 plans
- 1,535 - 2,649 sqft
View Emberly details
More homes in Emberly
- Home at address 10710 Sage Bend Dr, Beasley, TX 77417

Caden
$294,990
- 3 bd
- 2 ba
- 1,595 sqft
10710 Sage Bend Dr, Beasley, TX 77417
- Home at address 10715 Dogwood Sky Dr, Beasley, TX 77417

Caden
$299,990
- 3 bd
- 2 ba
- 1,595 sqft
10715 Dogwood Sky Dr, Beasley, TX 77417
- Home at address 10723 Dogwood Sky Dr, Beasley, TX 77417

Gaven
$311,990
- 4 bd
- 2 ba
- 1,778 sqft
10723 Dogwood Sky Dr, Beasley, TX 77417
- Home at address 10711 Dogwood Sky Dr, Beasley, TX 77417

Harris
$314,990
- 4 bd
- 2.5 ba
- 1,823 sqft
10711 Dogwood Sky Dr, Beasley, TX 77417
- Home at address 10718 Sage Bend Dr, Beasley, TX 77417

Gaven - X35G
$321,990
- 4 bd
- 2 ba
- 1,778 sqft
10718 Sage Bend Dr, Beasley, TX 77417
- Home at address 10722 Sage Bend Dr, Beasley, TX 77417

Sterling
$377,990
- 4 bd
- 3.5 ba
- 2,649 sqft
10722 Sage Bend Dr, Beasley, TX 77417
Floor plans in Emberly
About the builder - D.R. Horton

- 1,171communities on Jome
- 10,206homes on Jome
Neighborhood
Home address
Schools in Lamar Consolidated Independent School District
GreatSchools’ Summary Rating calculation is based on 4 of the school’s themed ratings, including test scores, student/academic progress, college readiness, and equity. This information should only be used as a reference. Jome is not affiliated with GreatSchools and does not endorse or guarantee this information. Please reach out to schools directly to verify all information and enrollment eligibility. Data provided by GreatSchools.org © 2025
Places of interest
Getting around
Air quality

Considering this home?
Our expert will guide your tour, in-person or virtual
Need more information?
Text or call (888) 488-9243
Financials
Estimated monthly payment
Let us help you find your dream home
How many bedrooms are you looking for?
Similar homes nearby
Recently added communities in this area
Nearby communities in Beasley
New homes in nearby cities
More New Homes in Beasley, TX
- Jome
- New homes search
- Texas
- Greater Houston Area
- Fort Bend County
- Beasley
- Emberly
- 1038 Garnet Rain Dr, Beasley, TX 77417


































