








Book your tour. Save an average of $18,473. We'll handle the rest.
We collect exclusive builder offers, book your tours, and support you from start to housewarming.
- Confirmed tours
- Get matched & compare top deals
- Expert help, no pressure
- No added fees
Estimated value based on Jome data, T&C apply










































Why tour with Jome?
- No pressure toursTour at your own pace with no sales pressure
- Expert guidanceGet insights from our home buying experts
- Exclusive accessSee homes and deals not available elsewhere
Jome is featured in
- Single-Family
- Quick move-in
- South facing
- 93 days on Jome
Home description
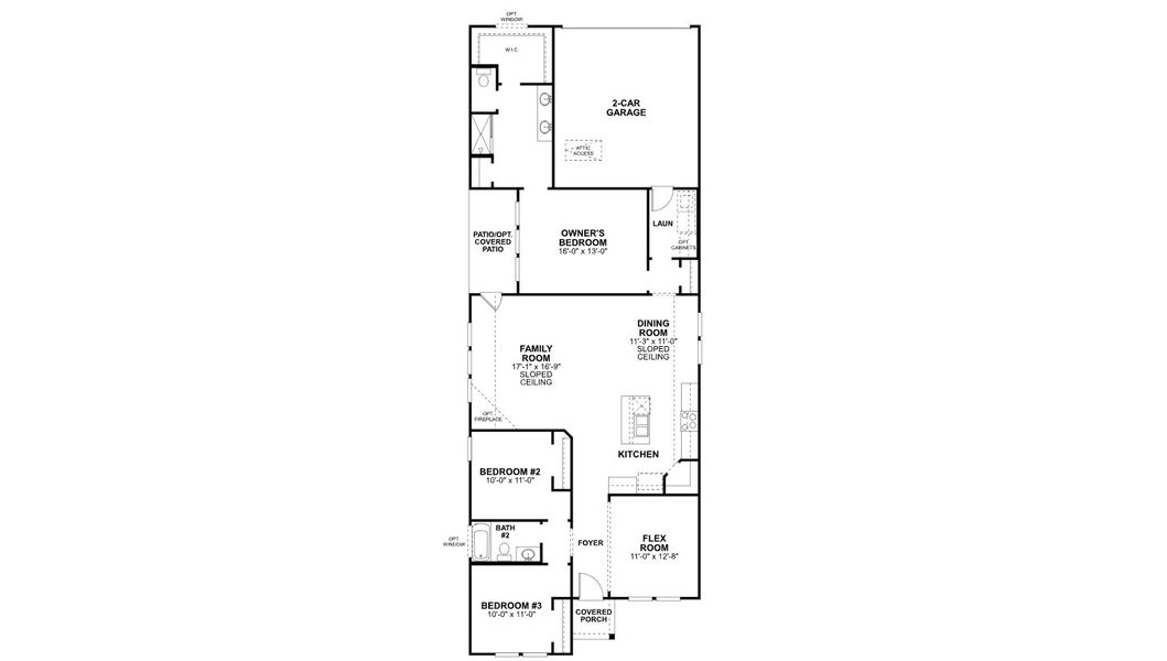
Tour this elegant single-story model home at 8104 Prairie Park Boulevard in Denton, TX. This professionally decorated residence showcases the best of one-level living, featuring a layout where every room is easily accessible on a single floor.
Key Features:
• 3 comfortable bedrooms, featuring a premier owner’s retreat tucked into its own private corner
• 2 full bathrooms finished with modern fixtures and high-quality materials
• 1,729 square feet of living space thoughtfully arranged on one level
• Open-concept main hub that joins the kitchen and family room for a connected feel
• Modern construction with the latest energy standards and expert craftsmanship
Neighborhood & Location Benefits:
• Situated in a quiet Denton community with a welcoming, residential atmosphere
• Excellent proximity to local parks and green spaces for outdoor relaxation and fun
• A perfect residential setting that balances a peaceful retreat with access to daily conveniences
The interior is crafted for a natural flow, with a central gathering space that brings the main living areas together for effortless daily life. Because the primary suite is situated in its own private corner of the home, it provides a quiet sanctuary separate from the secondary bedrooms. These additional rooms offer plenty of flexibility, whether you need space for guests, a hobby room, or a dedicated home office, all without ever having to deal with stairs.
This model home perfectly demonstrates the simplicity of single-story living combined with a modern, airy design in a fantastic location.
Schedule your tour today.
May also be listed on the M/I Homes website
Information last verified by Jome: Today at 6:30 AM (May 31, 2026)
Book your tour. Save an average of $18,473. We'll handle the rest.
We collect exclusive builder offers, book your tours, and support you from start to housewarming.
- Confirmed tours
- Get matched & compare top deals
- Expert help, no pressure
- No added fees
Estimated value based on Jome data, T&C apply
Home details
- Property status:
- Move-in ready
- Size:
- 1,729 sqft
- Stories:
- 1
- Beds:
- 3
- Baths:
- 2
- Garage spaces:
- 2
- Facing direction:
- South
Construction details
- Builder Name:
- M/I Homes
Home features & finishes
- Garage/Parking:
- GarageAttached Garage
- Interior Features:
- Walk-In ClosetFoyerPantry
- Kitchen:
- Kitchen Island
- Laundry facilities:
- Utility/Laundry Room
- Property amenities:
- PatioPorch
- Rooms:
- Flex RoomPrimary Bedroom On MainKitchenDining RoomFamily RoomOpen Concept FloorplanPrimary Bedroom Downstairs

Get a consultation with our New Homes Expert
- See how your home builds wealth
- Plan your home-buying roadmap
- Discover hidden gems

Community details
Landmark at Landmark
by M/I Homes, Denton, TX
- 8 homes
- 9 plans
- 1,608 - 2,644 sqft
View Landmark details
More homes in Landmark
- Home at address 9213 Rolling Meadow Wy, Denton, TX 76207

Lavender
Savings$399,990
- 3 bd
- 2 ba
- 1,653 sqft
9213 Rolling Meadow Wy, Denton, TX 76207
- Home at address 9908 Deer Meadow Dr, Denton, TX 76207

Lavender
$420,340
- 3 bd
- 2 ba
- 1,653 sqft
9908 Deer Meadow Dr, Denton, TX 76207
- Home at address 9301 Rolling Meadow Wy, Denton, TX 76207

Marigold
$430,595
- 3 bd
- 2.5 ba
- 1,845 sqft
9301 Rolling Meadow Wy, Denton, TX 76207
- Home at address 9904 Deer Meadow Dr, Denton, TX 76207

Camellia
$434,665
- 4 bd
- 2 ba
- 1,816 sqft
9904 Deer Meadow Dr, Denton, TX 76207
- Home at address 9325 Rolling Meadow Wy, Denton, TX 76207

Crossvine
$444,620
- 3 bd
- 2.5 ba
- 2,354 sqft
9325 Rolling Meadow Wy, Denton, TX 76207
- Home at address 9225 Rolling Meadow Wy, Denton, TX 76207

Violet
Savings$449,990
- 4 bd
- 3 ba
- 2,368 sqft
9225 Rolling Meadow Wy, Denton, TX 76207
Floor plans in Landmark
About the builder - M/I Homes

- 141communities on Jome
- 1,733homes on Jome
Neighborhood
Home address
Schools in Denton Independent School District
GreatSchools’ Summary Rating calculation is based on 4 of the school’s themed ratings, including test scores, student/academic progress, college readiness, and equity. This information should only be used as a reference. Jome is not affiliated with GreatSchools and does not endorse or guarantee this information. Please reach out to schools directly to verify all information and enrollment eligibility. Data provided by GreatSchools.org © 2025
Places of interest
Getting around
Air quality
Noise level
A Soundscore™ rating is a number between 50 (very loud) and 100 (very quiet) that tells you how loud a location is due to environmental noise.

Considering this home?
Our expert will guide your tour, in-person or virtual
Need more information?
Text or call (888) 545-5198
Financials
Let us help you find your dream home
How many bedrooms are you looking for?
Similar homes nearby
Recently added communities in this area
Nearby communities in Denton
New homes in nearby cities
More New Homes in Denton, TX
- Jome
- New homes search
- Texas
- Dallas-Fort Worth Area
- Denton County
- Denton
- Landmark
- 8104 Prairie Park Blvd, Denton, TX 76207





























