




Book your tour. Save an average of $18,473. We'll handle the rest.
We collect exclusive builder offers, book your tours, and support you from start to housewarming.
- Confirmed tours
- Get matched & compare top deals
- Expert help, no pressure
- No added fees
Estimated value based on Jome data, T&C apply
- 3 bd
- 3 ba
- 1,866 sqft
413 W Park Hl, Stafford, TX 77477
Why tour with Jome?
- No pressure toursTour at your own pace with no sales pressure
- Expert guidanceGet insights from our home buying experts
- Exclusive accessSee homes and deals not available elsewhere
Jome is featured in
- Single-Family
- Ready by July 2026
- $205.2/sqft
- $1,150/annual HOA
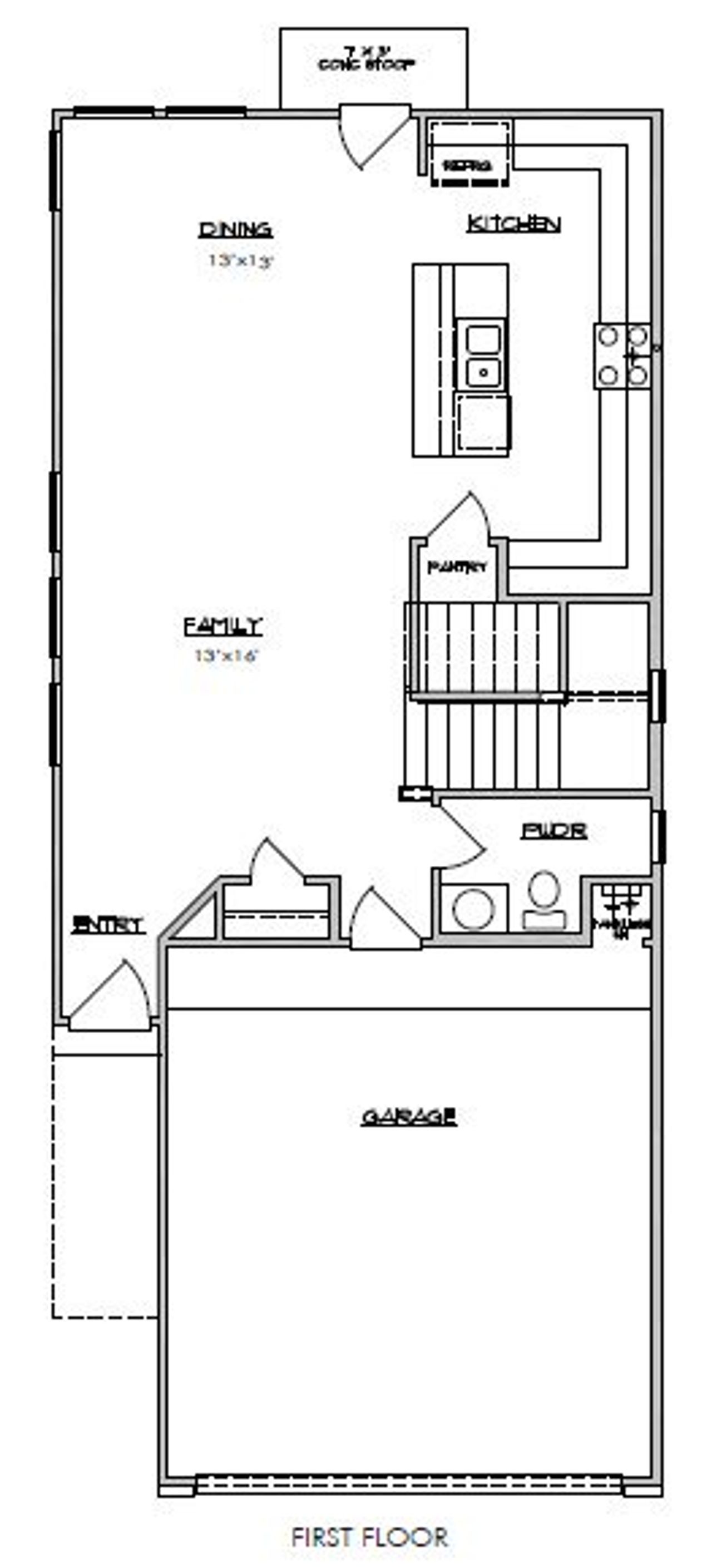
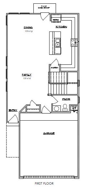
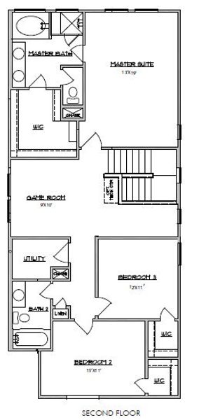
Home description
The Northampton plan is an elegant 3-bedroom, 2.5-bath villa designed for comfort and style. Spanning 1,866 square feet, this two-story layout features an open-concept family and dining area, perfect for gatherings. The modern kitchen boasts premium finishes, ideal for everyday meals or entertaining. Upstairs, the spacious primary suite offers a spa-like bath, while two additional bedrooms and a versatile game room provide space for work or play.
May also be listed on the Century Communities website
Information last verified by Jome: Yesterday at 5:48 AM (February 27, 2026)
Book your tour. Save an average of $18,473. We'll handle the rest.
We collect exclusive builder offers, book your tours, and support you from start to housewarming.
- Confirmed tours
- Get matched & compare top deals
- Expert help, no pressure
- No added fees
Estimated value based on Jome data, T&C apply
Home details
- Property status:
- Under construction
- Size:
- 1,866 sqft
- Stories:
- 2
- Beds:
- 3
- Baths:
- 3
- Garage spaces:
- 2
Construction details
- Builder Name:
- Century Communities
- Completion Date:
- July, 2026
Home features & finishes
- Garage/Parking:
- Garage

Get a consultation with our New Homes Expert
- See how your home builds wealth
- Plan your home-buying roadmap
- Discover hidden gems

Community details
Park Hill Villas
by Century Communities, Stafford, TX
- 9 homes
- 3 plans
- 1,538 - 1,866 sqft
View Park Hill Villas details
More homes in Park Hill Villas
- Home at address 2991 Park Hill Ln, Stafford, TX 77477

Kensington
$329,900
- 3 bd
- 2.5 ba
- 1,538 sqft
2991 Park Hill Ln, Stafford, TX 77477
- Home at address 2990 Park Hill Ln, Stafford, TX 77477

Beverly
$344,900
- 3 bd
- 2.5 ba
- 1,672 sqft
2990 Park Hill Ln, Stafford, TX 77477
- Home at address 2975 Park Hill Ln, Stafford, TX 77477

Beverly
$344,900
- 3 bd
- 2.5 ba
- 1,672 sqft
2975 Park Hill Ln, Stafford, TX 77477
- Home at address 2983 Park Hill Ln, Stafford, TX 77477

Beverly
$349,900
- 3 bd
- 2.5 ba
- 1,672 sqft
2983 Park Hill Ln, Stafford, TX 77477
- Home at address 2971 Park Hill Ln, Stafford, TX 77477

Northampton
$354,900
- 3 bd
- 2.5 ba
- 1,866 sqft
2971 Park Hill Ln, Stafford, TX 77477
- Home at address 417 W Park Hl, Stafford, TX 77477

Kensington
$359,900
- 3 bd
- 3 ba
- 1,538 sqft
417 W Park Hl, Stafford, TX 77477
Floor plans in Park Hill Villas
About the builder - Century Communities

- 235communities on Jome
- 1,512homes on Jome
Neighborhood
Home address
Schools in Stafford Municipal School District
GreatSchools’ Summary Rating calculation is based on 4 of the school’s themed ratings, including test scores, student/academic progress, college readiness, and equity. This information should only be used as a reference. Jome is not affiliated with GreatSchools and does not endorse or guarantee this information. Please reach out to schools directly to verify all information and enrollment eligibility. Data provided by GreatSchools.org © 2025
Places of interest
Getting around
Air quality
Noise level
A Soundscore™ rating is a number between 50 (very loud) and 100 (very quiet) that tells you how loud a location is due to environmental noise.

Considering this home?
Our expert will guide your tour, in-person or virtual
Need more information?
Text or call (888) 488-9243
Financials
Estimated monthly payment
Let us help you find your dream home
How many bedrooms are you looking for?
Similar homes nearby
Recently added communities in this area
Nearby communities in Stafford
New homes in nearby cities
More New Homes in Stafford, TX
- Jome
- New homes search
- Texas
- Greater Houston Area
- Fort Bend County
- Stafford
- Park Hill Villas
- 413 W Park Hl, Stafford, TX 77477




























