








Book your tour. Save an average of $18,473. We'll handle the rest.
We collect exclusive builder offers, book your tours, and support you from start to housewarming.
- Confirmed tours
- Get matched & compare top deals
- Expert help, no pressure
- No added fees
Estimated value based on Jome data, T&C apply


















Why tour with Jome?
- No pressure toursTour at your own pace with no sales pressure
- Expert guidanceGet insights from our home buying experts
- Exclusive accessSee homes and deals not available elsewhere
Jome is featured in
- Single-Family
- Quick move-in
- $156.41/sqft
- $550/annual HOA
Home description
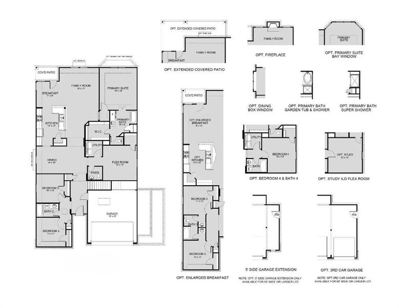
Welcome home to Rocky Creek Crossing, Legend’s newest community in Fort Worth, TX. The Lakewood is a spacious, 1.5-story new construction home designed to offer comfort, flexibility, and room to gather. With 5 bedrooms (4 down, 1 up), 4 bathrooms, a game room, formal dining room, and a 2.5-car garage, the layout provides space for both everyday living and special occasions. Vinyl plank flooring runs through the common areas, creating a cohesive and low-maintenance living space. At the heart of the home, the kitchen features a large island that opens to the family and dining rooms—making it easy to stay connected during meals and get-togethers. White 42-inch cabinetry, granite countertops, and stainless-steel appliances offer a clean, timeless look built for everyday use. The secluded Owner’s Suite provides a peaceful retreat with granite countertops, a separate tub and shower, spacious walk-in closet, and a tray ceiling that adds subtle character without overwhelming the space. Outside, a covered patio offering a comfortable place to relax or unwind. Located in the Rocky Creek Crossing community, this affordable new home blends thoughtful design, modern finishes, and low-maintenance living—an inviting place to settle in and feel at home.
Legend Home Corp, MLS 21189433
May also be listed on the Legend Homes website
Information last verified by Jome: Today at 1:41 AM (April 14, 2026)
Home highlights
Book your tour. Save an average of $18,473. We'll handle the rest.
We collect exclusive builder offers, book your tours, and support you from start to housewarming.
- Confirmed tours
- Get matched & compare top deals
- Expert help, no pressure
- No added fees
Estimated value based on Jome data, T&C apply
Home details
- Property status:
- Move-in ready
- Lot size (acres):
- 0.16
- Size:
- 2,602 sqft
- Stories:
- 1.5
- Beds:
- 5
- Baths:
- 4
- Garage spaces:
- 2
- Fence:
- Wood Fence
Construction details
- Builder Name:
- Legend Homes
- Year Built:
- 2026
- Roof:
- Composition Roofing
Home features & finishes
- Construction Materials:
- CementConcreteBrick
- Cooling:
- Central Air
- Flooring:
- Vinyl FlooringCarpet Flooring
- Foundation Details:
- Slab
- Garage/Parking:
- GarageFront Entry Garage/ParkingAttached Garage
- Interior Features:
- Pantry
- Kitchen:
- DishwasherMicrowave OvenGas CooktopGas OvenKitchen Range
- Laundry facilities:
- DryerWasher
- Property amenities:
- Backyard
- Security system:
- Smoke DetectorCarbon Monoxide Detector

Get a consultation with our New Homes Expert
- See how your home builds wealth
- Plan your home-buying roadmap
- Discover hidden gems
Utility information
- Heating:
- Central Heating
- Utilities:
- Electricity Available, Cable Available, Curbs

Community details
Rocky Creek Crossing
by Legend Homes, Crowley, TX
- 20 homes
- 8 plans
- 1,412 - 2,951 sqft
View Rocky Creek Crossing details
Community amenities
- Playground
- Community Pool
- Sidewalks Available
More homes in Rocky Creek Crossing
- Home at address 7021 Trestle St, Fort Worth, TX 76036

The Aspen
$309,990
- 3 bd
- 2 ba
- 1,412 sqft
7021 Trestle St, Fort Worth, TX 76036
- Home at address 9232 Union Pacific Dr, Fort Worth, TX 76123

The Aspen
$312,990
- 3 bd
- 2 ba
- 1,412 sqft
9232 Union Pacific Dr, Fort Worth, TX 76123
- Home at address 9232 Union Pacific Dr, Fort Worth, TX 76036

Home
$312,990
- 3 bd
- 2 ba
- 1,412 sqft
9232 Union Pacific Dr, Fort Worth, TX 76036
- Home at address 7004 Trestle St, Fort Worth, TX 76036

The Aspen
$324,990
- 3 bd
- 2 ba
- 1,412 sqft
7004 Trestle St, Fort Worth, TX 76036
- Home at address 9229 Union Pacific Dr, Fort Worth, TX 76123

The Woodland
$334,990
- 4 bd
- 2.5 ba
- 1,745 sqft
9229 Union Pacific Dr, Fort Worth, TX 76123
- Home at address 9229 Union Pacific Dr, Fort Worth, TX 76036

Home
$334,990
- 4 bd
- 2.5 ba
- 1,745 sqft
9229 Union Pacific Dr, Fort Worth, TX 76036
Floor plans in Rocky Creek Crossing
About the builder - Legend Homes
Neighborhood
Home address
- City:
- Fort Worth
- County:
- Tarrant
- Zip Code:
- 76036
Schools in Crowley Independent School District
- Grades PK-KGPrivateprimrose school of columbus trail2.2 mi5330 columbus trlna
GreatSchools’ Summary Rating calculation is based on 4 of the school’s themed ratings, including test scores, student/academic progress, college readiness, and equity. This information should only be used as a reference. Jome is not affiliated with GreatSchools and does not endorse or guarantee this information. Please reach out to schools directly to verify all information and enrollment eligibility. Data provided by GreatSchools.org © 2025
Places of interest
Getting around
Air quality

Considering this home?
Our expert will guide your tour, in-person or virtual
Need more information?
Text or call (888) 545-5198
Financials
Estimated monthly payment
Let us help you find your dream home
How many bedrooms are you looking for?
Similar homes nearby
Recently added communities in this area
Nearby communities in Fort Worth
New homes in nearby cities
More New Homes in Fort Worth, TX
Legend Home Corp, MLS 21189433
IDX information is provided exclusively for personal, non-commercial use, and may not be used for any purpose other than to identify prospective properties consumers may be interested in purchasing. You may not reproduce or redistribute this data, it is for viewing purposes only. This data is deemed reliable, but is not guaranteed accurate by the MLS or NTREIS.
Read moreLast checked Apr 14, 10:00 pm
- Jome
- New homes search
- Texas
- Dallas-Fort Worth Area
- Tarrant County
- Fort Worth
- Rocky Creek Crossing
- 6912 Night Owl Ln, Fort Worth, TX 76036





























