













Book your tour. Save an average of $18,473. We'll handle the rest.
We collect exclusive builder offers, book your tours, and support you from start to housewarming.
- Confirmed tours
- Get matched & compare top deals
- Expert help, no pressure
- No added fees
Estimated value based on Jome data, T&C apply






Why tour with Jome?
- No pressure toursTour at your own pace with no sales pressure
- Expert guidanceGet insights from our home buying experts
- Exclusive accessSee homes and deals not available elsewhere
Jome is featured in
- Single-Family
- Quick move-in
- $149.03/sqft
- $650/annual HOA
Builder deals available
FHA 30 Year Fixed
$23,050 est. value- Rate buydown from 3.75% (1–5 year) with 6.906% APR, 3.5% down payment, and 680 credit score
- $6,000 closing costs help
- $4,047 free upgrades
- Move-In Ready Appliance Package Includes Refrigerator and Washer/Dryer
Deals may change and are not guaranteed. Some deals apply to specific homes or plans. Not a financing offer. Eligibility varies by lender. Please verify details.
Home description
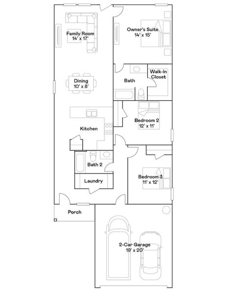
NEW! Lennar Cottage Collection "Kitson" Plan - Elevation "H1" in Meadow Park! This single-level home showcases a spacious open floorplan shared between the kitchen, dining area and family room for easy entertaining during gatherings. An owner’s suite enjoys a private location in a rear corner of the home, complemented by an en-suite bathroom and walk-in closet. There are two secondary bedrooms along the side of the home, which are comfortable spaces for household members and overnight guests.
Lennar Homes Village Builders, LLC, MLS 68973492
May also be listed on the Lennar website
Information last verified by Jome: Today at 8:50 AM (February 27, 2026)
Book your tour. Save an average of $18,473. We'll handle the rest.
We collect exclusive builder offers, book your tours, and support you from start to housewarming.
- Confirmed tours
- Get matched & compare top deals
- Expert help, no pressure
- No added fees
Estimated value based on Jome data, T&C apply
Home details
- Property status:
- Move-in ready
- Size:
- 1,409 sqft
- Stories:
- 1
- Beds:
- 3
- Baths:
- 2
- Garage spaces:
- 2
Construction details
- Builder Name:
- Lennar
- Year Built:
- 2025
- Roof:
- Composition Roofing
Home features & finishes
- Construction Materials:
- CementBrick
- Foundation Details:
- Slab
- Garage/Parking:
- GarageAttached Garage
- Interior Features:
- Walk-In Closet
- Laundry facilities:
- Utility/Laundry Room
- Property amenities:
- Porch
- Rooms:
- Primary Bedroom On MainKitchenDining RoomFamily RoomOpen Concept FloorplanPrimary Bedroom Downstairs

Get a consultation with our New Homes Expert
- See how your home builds wealth
- Plan your home-buying roadmap
- Discover hidden gems
Utility information
- Heating:
- Gas Heating

Community details
Meadow Park
by Lennar, Conroe, TX
- 7 homes
- 5 plans
- 1,273 - 1,979 sqft
View Meadow Park details
More homes in Meadow Park
- Home at address 2510 Ruffed Grouse Ct, Conroe, TX 77306

Oakridge
$199,000
- 3 bd
- 2 ba
- 1,273 sqft
2510 Ruffed Grouse Ct, Conroe, TX 77306
- Home at address 14704 S Ascot Bend Cir, Conroe, TX 77306

Oakridge
$199,990
- 3 bd
- 2 ba
- 1,273 sqft
14704 S Ascot Bend Cir, Conroe, TX 77306
- Home at address 2619 Rain Quail Ct, Conroe, TX 77306

Idlewood
$206,990
- 3 bd
- 2 ba
- 1,418 sqft
2619 Rain Quail Ct, Conroe, TX 77306
- Home at address 2619 Rain Quail Cir, Conroe, TX 77306

Home
$206,990
- 3 bd
- 2 ba
- 1,418 sqft
2619 Rain Quail Cir, Conroe, TX 77306
- Home at address 14712 S Ascot Bend Cir, Conroe, TX 77306

Pinehollow
$211,990
- 4 bd
- 2 ba
- 1,607 sqft
14712 S Ascot Bend Cir, Conroe, TX 77306
- Home at address 14708 S Ascot Bend Cir, Conroe, TX 77306

Whitetail
$224,990
- 4 bd
- 2.5 ba
- 1,979 sqft
14708 S Ascot Bend Cir, Conroe, TX 77306
Floor plans in Meadow Park
About the builder - Lennar

- 1,759communities on Jome
- 6,530homes on Jome
Neighborhood
Home address
- City:
- Conroe
- County:
- Montgomery
- Zip Code:
- 77306
Schools in Conroe Independent School District
- Grades PK-12Privateconroe adventist academy4.1 mi3601 s loop 336 ena
GreatSchools’ Summary Rating calculation is based on 4 of the school’s themed ratings, including test scores, student/academic progress, college readiness, and equity. This information should only be used as a reference. Jome is not affiliated with GreatSchools and does not endorse or guarantee this information. Please reach out to schools directly to verify all information and enrollment eligibility. Data provided by GreatSchools.org © 2025
Places of interest
Getting around
Air quality
Noise level
A Soundscore™ rating is a number between 50 (very loud) and 100 (very quiet) that tells you how loud a location is due to environmental noise.

Considering this home?
Our expert will guide your tour, in-person or virtual
Need more information?
Text or call (888) 488-9243
Financials
Estimated monthly payment
Let us help you find your dream home
How many bedrooms are you looking for?
Similar homes nearby
Recently added communities in this area
Nearby communities in Conroe
New homes in nearby cities
More New Homes in Conroe, TX
Lennar Homes Village Builders, LLC, MLS 68973492
Copyright © 2025, Houston Realtors Information Service, Inc. The information provided is exclusively for consumers’ personal, non-commercial use, and may not be used for any purpose other than to identify prospective properties consumers may be interested in purchasing. Information is deemed reliable but not guaranteed. All information provided should be independently verified.
Read moreLast checked Feb 27, 8:50 am
- Jome
- New homes search
- Texas
- Greater Houston Area
- Montgomery County
- Conroe
- Meadow Park
- 14720 S Ascot Bend Cir, Conroe, TX 77306






























