



Book your tour. Save an average of $18,473. We'll handle the rest.
We collect exclusive builder offers, book your tours, and support you from start to housewarming.
- Confirmed tours
- Get matched & compare top deals
- Expert help, no pressure
- No added fees
Estimated value based on Jome data, T&C apply


- 4 bd
- 2.5 ba
- 2,100 sqft
7422 Gonzales St, Houston, TX 77020
Why tour with Jome?
- No pressure toursTour at your own pace with no sales pressure
- Expert guidanceGet insights from our home buying experts
- Exclusive accessSee homes and deals not available elsewhere
Jome is featured in
- Single-Family
- Quick move-in
- $200/sqft
- North facing
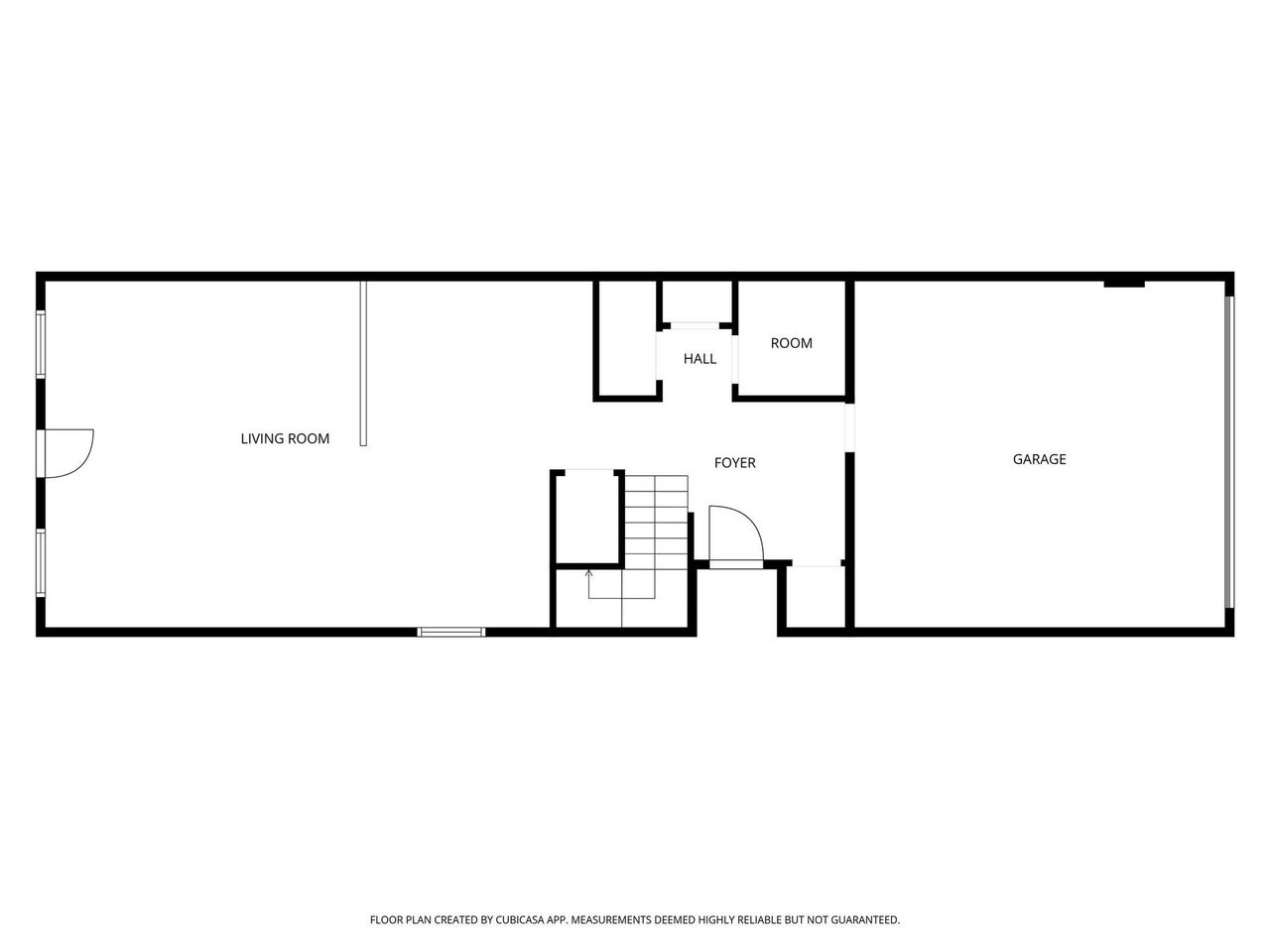
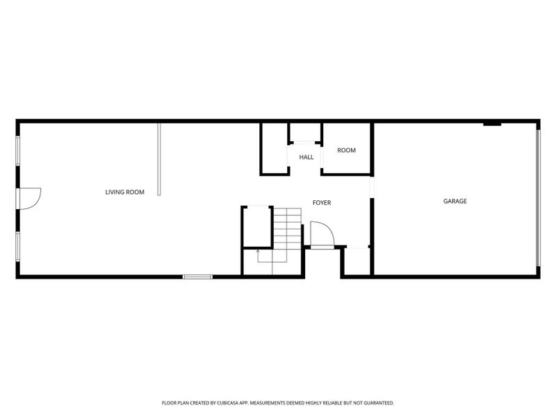
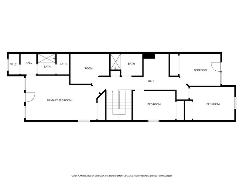
Home description
Welcome to this beautiful new construction home in Denver Harbor, now nearing completion. Designed with today’s lifestyle in mind, this two-story plan features 4 bedrooms plus an upstairs study, an attached garage, and multiple outdoor spaces—two bedrooms offer balcony access for easy indoor/outdoor enjoyment. The kitchen is planned to have quartz countertops and high-end finishes, while the main level will feature durable tile flooring. Upstairs, enjoy the comfort and style of LVP flooring throughout. The spacious primary suite offers a large retreat-like bedroom. Located in a very convenient area with fast access to Downtown Houston, this home puts dining, entertainment, and major routes within easy reach. Schedule a tour and secure your new home today. Photos reflect current construction; plans and finishes are subject to change by builder.
Keller Williams Realty Southwest, MLS 51886019
Information last verified by Jome: Today at 2:31 AM (April 14, 2026)
Book your tour. Save an average of $18,473. We'll handle the rest.
We collect exclusive builder offers, book your tours, and support you from start to housewarming.
- Confirmed tours
- Get matched & compare top deals
- Expert help, no pressure
- No added fees
Estimated value based on Jome data, T&C apply
Home details
- Property status:
- Move-in ready
- Lot size (acres):
- 0.06
- Size:
- 2,100 sqft
- Stories:
- 2
- Beds:
- 4
- Baths:
- 2
- Half baths:
- 1
- Garage spaces:
- 2
- Facing direction:
- North
Construction details
- Year Built:
- 2026
- Roof:
- Composition Roofing
Home features & finishes
- Construction Materials:
- CementBrick
- Flooring:
- Tile Flooring
- Foundation Details:
- Slab
- Garage/Parking:
- GarageAttached Garage
- Interior Features:
- Walk-In Closet
- Property amenities:
- Balcony

Get a consultation with our New Homes Expert
- See how your home builds wealth
- Plan your home-buying roadmap
- Discover hidden gems
Utility information
- Heating:
- Electric Heating
- Sewer:
- Public Sewer
- Water source:
- Public
Neighborhood
Home address
Schools in Houston Independent School District
GreatSchools’ Summary Rating calculation is based on 4 of the school’s themed ratings, including test scores, student/academic progress, college readiness, and equity. This information should only be used as a reference. Jome is not affiliated with GreatSchools and does not endorse or guarantee this information. Please reach out to schools directly to verify all information and enrollment eligibility. Data provided by GreatSchools.org © 2025
Places of interest
Getting around
6 nearby routes: 6 bus, 0 rail, 0 otherAir quality
Noise level
A Soundscore™ rating is a number between 50 (very loud) and 100 (very quiet) that tells you how loud a location is due to environmental noise.
Natural hazards risk
Provided by FEMA

Considering this home?
Our expert will guide your tour, in-person or virtual
Need more information?
Text or call (888) 545-5198
Financials
Estimated monthly payment
Let us help you find your dream home
How many bedrooms are you looking for?
Similar homes nearby
Recently added communities in this area
Nearby communities in Houston
New homes in nearby cities
More New Homes in Houston, TX
Keller Williams Realty Southwest, MLS 51886019
Copyright © 2025, Houston Realtors Information Service, Inc. The information provided is exclusively for consumers’ personal, non-commercial use, and may not be used for any purpose other than to identify prospective properties consumers may be interested in purchasing. Information is deemed reliable but not guaranteed. All information provided should be independently verified.
Read moreLast checked Apr 14, 2:50 pm
- Jome
- New homes search
- Texas
- Greater Houston Area
- Harris County
- Houston
- 7422 Gonzales St, Houston, TX 77020























