









Book your tour. Save an average of $18,473. We'll handle the rest.
We collect exclusive builder offers, book your tours, and support you from start to housewarming.
- Confirmed tours
- Get matched & compare top deals
- Expert help, no pressure
- No added fees
Estimated value based on Jome data, T&C apply













































- 4 bd
- 3.5 ba
- 1,966 sqft
812 Elkhart St, Unit C, Houston, TX 77091
Why tour with Jome?
- No pressure toursTour at your own pace with no sales pressure
- Expert guidanceGet insights from our home buying experts
- Exclusive accessSee homes and deals not available elsewhere
Jome is featured in
- Single-Family
- Quick move-in
- $193.29/sqft
- South facing
Home description
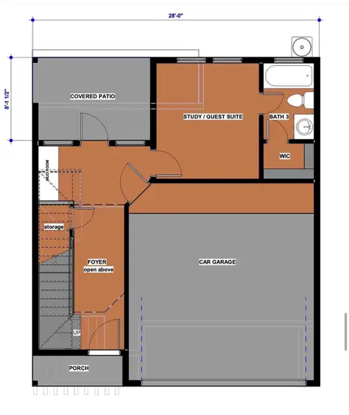
Stunning new construction 3 story home offering 4 beds, 3.5 baths, and a 2 car garage. First level welcomes you with a private bedroom and full bath, perfect for guests or a home office, along with direct access to your backyard retreat. Upstairs on the second level, the home unfolds with an open concept design that seamlessly combines the dining and living areas. Kitchen is a true showpiece featuring stainless steel appliances, a gas range, an oversized island with breakfast bar seating, and modern finishes throughout. A convenient half bath and a private balcony off the living area. Third level you’ll find two secondary bedrooms, full laundry room, and primary suite. Primary retreat has two walk in closets and a luxurious en suite bath with dual sinks, soaking tub, and glass enclosed shower. Outdoors, enjoy a covered patio that extends your living space. Thoughtfully designed home combines modern elegance with functionality, creating the perfect place to live, entertain, and unwind.
CB&A, Realtors- Loop Central, MLS 55475945
Information last verified by Jome: Today at 2:31 AM (April 3, 2026)
Book your tour. Save an average of $18,473. We'll handle the rest.
We collect exclusive builder offers, book your tours, and support you from start to housewarming.
- Confirmed tours
- Get matched & compare top deals
- Expert help, no pressure
- No added fees
Estimated value based on Jome data, T&C apply
Home details
- Property status:
- Move-in ready
- Lot size (acres):
- 0.04
- Size:
- 1,966 sqft
- Stories:
- 3+
- Beds:
- 4
- Baths:
- 3
- Half baths:
- 1
- Garage spaces:
- 2
- Facing direction:
- South
Construction details
- Year Built:
- 2025
- Roof:
- Composition Roofing
Home features & finishes
- Construction Materials:
- Cement
- Cooling:
- Ceiling Fan(s)
- Flooring:
- Wood Flooring
- Foundation Details:
- Slab
- Garage/Parking:
- Door OpenerGarageAttached Garage
- Interior Features:
- Ceiling-HighWalk-In ClosetPantryBreakfast BarWalk-In Pantry
- Kitchen:
- Range-Free StandingDishwasherMicrowave OvenOvenDisposalGas CooktopKitchen IslandGas OvenKitchen Range
- Laundry facilities:
- DryerWasher
- Property amenities:
- BarBalconyDeckBackyardPatioYard
- Rooms:
- Kitchen

Get a consultation with our New Homes Expert
- See how your home builds wealth
- Plan your home-buying roadmap
- Discover hidden gems
Utility information
- Heating:
- Gas Heating
Neighborhood
Home address
Schools in Houston Independent School District
GreatSchools’ Summary Rating calculation is based on 4 of the school’s themed ratings, including test scores, student/academic progress, college readiness, and equity. This information should only be used as a reference. Jome is not affiliated with GreatSchools and does not endorse or guarantee this information. Please reach out to schools directly to verify all information and enrollment eligibility. Data provided by GreatSchools.org © 2025
Places of interest
Getting around
6 nearby routes: 6 bus, 0 rail, 0 otherAir quality
Noise level
A Soundscore™ rating is a number between 50 (very loud) and 100 (very quiet) that tells you how loud a location is due to environmental noise.
Natural hazards risk
Provided by FEMA

Considering this home?
Our expert will guide your tour, in-person or virtual
Need more information?
Text or call (888) 545-5198
Financials
Estimated monthly payment
Let us help you find your dream home
How many bedrooms are you looking for?
Similar homes nearby
Recently added communities in this area
Nearby communities in Houston
New homes in nearby cities
More New Homes in Houston, TX
CB&A, Realtors- Loop Central, MLS 55475945
Copyright © 2025, Houston Realtors Information Service, Inc. The information provided is exclusively for consumers’ personal, non-commercial use, and may not be used for any purpose other than to identify prospective properties consumers may be interested in purchasing. Information is deemed reliable but not guaranteed. All information provided should be independently verified.
Read moreLast checked Apr 3, 2:50 pm
- Jome
- New homes search
- Texas
- Greater Houston Area
- Harris County
- Houston
- 812 Elkhart St, Unit C, Houston, TX 77091




















