



Book your tour. Save an average of $18,473. We'll handle the rest.
We collect exclusive builder offers, book your tours, and support you from start to housewarming.
- Confirmed tours
- Get matched & compare top deals
- Expert help, no pressure
- No added fees
Estimated value based on Jome data, T&C apply


- 4 bd
- 3.5 ba
- 3,647 sqft
5644 Taylor Trl, Arlington, TX 76017
Why tour with Jome?
- No pressure toursTour at your own pace with no sales pressure
- Expert guidanceGet insights from our home buying experts
- Exclusive accessSee homes and deals not available elsewhere
Jome is featured in
- Single-Family
- Ready by June 2026
- $197.42/sqft
- $750/semi-annual HOA
Home description
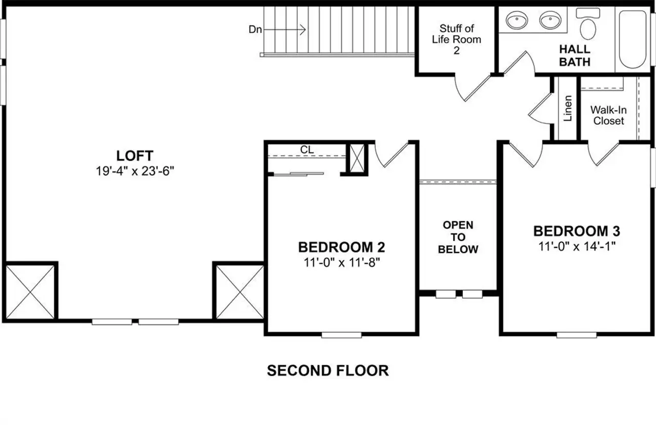
Located in Arlington ISD part of the Sterling Greene community, the neighborhood offers excellent opportunities in education and an added sense of comfort with a gated entrance. This stunning 2-story home provides a comfortable open floorplan with an Extra Suite, ideal for extended stay guests. A private home office followed by an intimate dining room is great for entertaining. The kitchen features a spacious island and overlooks the well-lit great room. A cozy dining area allows access to the covered patio, great for outdoor living. In from the garage, a HovHall and laundry room keep your home tidy. The primary suite with private bath and spacious walk-in closet. A versatile loft and 2 additional bedrooms with hall bath allow for comfort for all.
Key Trek-CC, MLS 21220332
May also be listed on the K. Hovnanian® Homes website
Information last verified by Jome: Today at 2:25 AM (April 1, 2026)
Home highlights
Book your tour. Save an average of $18,473. We'll handle the rest.
We collect exclusive builder offers, book your tours, and support you from start to housewarming.
- Confirmed tours
- Get matched & compare top deals
- Expert help, no pressure
- No added fees
Estimated value based on Jome data, T&C apply
Home details
- Property status:
- Under construction
- Neighborhood:
- Southwest
- Lot size (acres):
- 0.16
- Size:
- 3,647 sqft
- Stories:
- 2
- Beds:
- 4
- Baths:
- 3
- Half baths:
- 1
- Garage spaces:
- 3
- Fence:
- Wood Fence
Construction details
- Builder Name:
- K. Hovnanian® Homes
- Completion Date:
- June, 2026
- Year Built:
- 2026
- Roof:
- Roof Gutter, Composition Roofing
Home features & finishes
- Construction Materials:
- Brick
- Cooling:
- Central Air
- Flooring:
- Ceramic FlooringLaminate FlooringCarpet FlooringTile Flooring
- Foundation Details:
- Slab
- Garage/Parking:
- Door OpenerGarageFront Entry Garage/ParkingAttached GarageTandem Parking
- Home amenities:
- Green Construction
- Interior Features:
- Walk-In ClosetFoyerPantryLoft
- Kitchen:
- DishwasherMicrowave OvenDisposalKitchen IslandElectric Oven
- Laundry facilities:
- Utility/Laundry Room
- Lighting:
- Decorative/Designer Lighting
- Property amenities:
- Cul-de-sacLandscapingPatioFireplaceSmart Home SystemPorch
- Rooms:
- Bonus RoomPrimary Bedroom On MainKitchenOffice/StudyDining RoomFamily RoomPrimary Bedroom Downstairs
- Security system:
- Security System

Get a consultation with our New Homes Expert
- See how your home builds wealth
- Plan your home-buying roadmap
- Discover hidden gems
Utility information
- Heating:
- Central Heating, Gas Heating
- Utilities:
- HVAC, City Water System, Cable TV, Curbs

Community details
Sterling Greene
by K. Hovnanian® Homes, Arlington, TX
- 10 homes
- 7 plans
- 2,506 - 3,922 sqft
View Sterling Greene details
More homes in Sterling Greene
- Home at address 5651 Taylor Trl, Arlington, TX 76017

Frankfurt
Savings$675,000
- 4 bd
- 2.5 ba
- 2,823 sqft
5651 Taylor Trl, Arlington, TX 76017
- Home at address 5663 Scotsman Trl, Arlington, TX 76017

Geneva
Savings$689,000
- 4 bd
- 3.5 ba
- 2,858 sqft
5663 Scotsman Trl, Arlington, TX 76017
- Home at address 5632 Taylor Trl, Arlington, TX 76017

Geneva
$690,000
- 4 bd
- 3.5 ba
- 2,858 sqft
5632 Taylor Trl, Arlington, TX 76017
- Home at address 5651 Scotsman Trl, Arlington, TX 76017

Stirling
Savings$699,000
- 5 bd
- 4.5 ba
- 3,795 sqft
5651 Scotsman Trl, Arlington, TX 76017
- Home at address 5668 Taylor Trl, Arlington, TX 76017

Mykonos
$719,000
- 4 bd
- 3.5 ba
- 3,626 sqft
5668 Taylor Trl, Arlington, TX 76017
- Home at address 5631 Scotsman Trl, Arlington, TX 76017

Stirling
$726,000
- 5 bd
- 4.5 ba
- 3,795 sqft
5631 Scotsman Trl, Arlington, TX 76017
Floor plans in Sterling Greene
About the builder - K. Hovnanian® Homes
Neighborhood
Home address
Schools in Kennedale Independent School District
- Grades PK-KGPublicjames a arthur early childhood center0.7 mi100 e mistletoe drna
GreatSchools’ Summary Rating calculation is based on 4 of the school’s themed ratings, including test scores, student/academic progress, college readiness, and equity. This information should only be used as a reference. Jome is not affiliated with GreatSchools and does not endorse or guarantee this information. Please reach out to schools directly to verify all information and enrollment eligibility. Data provided by GreatSchools.org © 2025
Places of interest
Getting around
Air quality
Noise level
A Soundscore™ rating is a number between 50 (very loud) and 100 (very quiet) that tells you how loud a location is due to environmental noise.

Considering this home?
Our expert will guide your tour, in-person or virtual
Need more information?
Text or call (888) 545-5198
Financials
Estimated monthly payment
Let us help you find your dream home
How many bedrooms are you looking for?
Similar homes nearby
Recently added communities in this area
Nearby communities in Arlington
New homes in nearby cities
More New Homes in Arlington, TX
Key Trek-CC, MLS 21220332
IDX information is provided exclusively for personal, non-commercial use, and may not be used for any purpose other than to identify prospective properties consumers may be interested in purchasing. You may not reproduce or redistribute this data, it is for viewing purposes only. This data is deemed reliable, but is not guaranteed accurate by the MLS or NTREIS.
Read moreLast checked Apr 1, 4:00 am
- Jome
- New homes search
- Texas
- Dallas-Fort Worth Area
- Tarrant County
- Arlington
- Sterling Greene
- 5644 Taylor Trl, Arlington, TX 76017


































