



Book your tour. Save an average of $18,473. We'll handle the rest.
We collect exclusive builder offers, book your tours, and support you from start to housewarming.
- Confirmed tours
- Get matched & compare top deals
- Expert help, no pressure
- No added fees
Estimated value based on Jome data, T&C apply
- 4 bd
- 3.5 ba
- 2,653 sqft
105 Carlsbad Ct, Georgetown, TX 78626
Why tour with Jome?
- No pressure toursTour at your own pace with no sales pressure
- Expert guidanceGet insights from our home buying experts
- Exclusive accessSee homes and deals not available elsewhere
Jome is featured in
- Single-Family
- Quick move-in
- $194.87/sqft
- $600/annual HOA
Home description
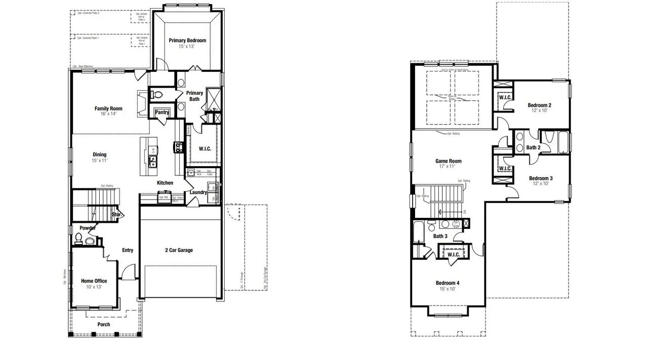
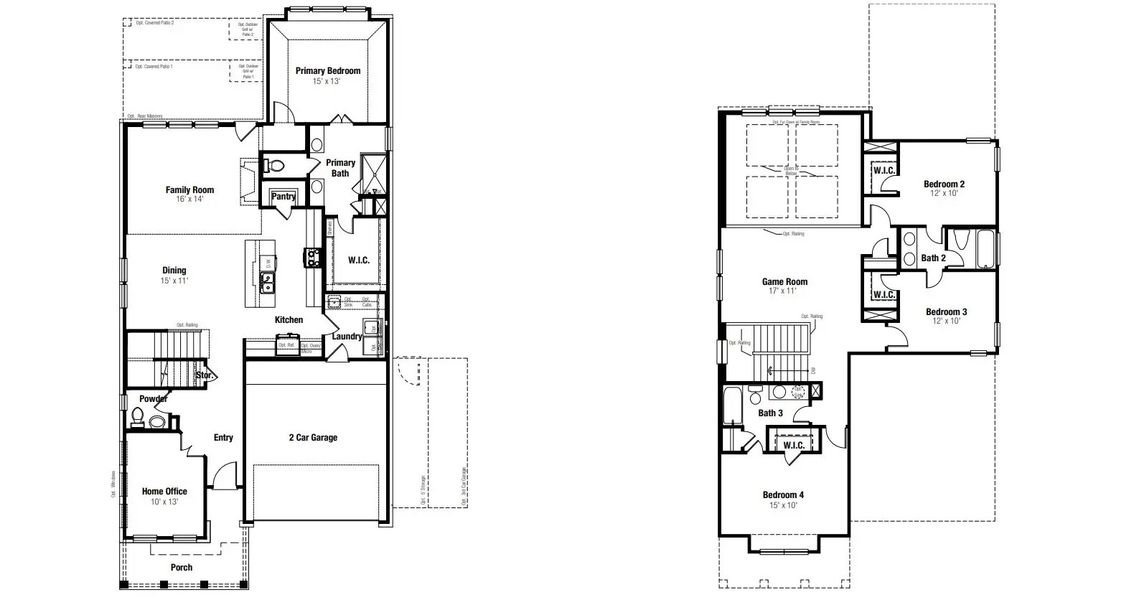
The Quinley plan is a beautifully designed two-story home offering approximately 2,653 square feet of living space. This thoughtfully laid-out floor plan features four bedrooms, three full bathrooms, a powder bath, a private home office, and a luxurious primary suite with a spa-inspired bathroom. Additional highlights include an open to below family room, covered patio and a two-bay garage. Situated on an approximately 6,016-square-foot home site facing southeast, this home combines comfort with functionality. The spacious kitchen is equipped with built-in stainless-steel appliances, quartz countertops, under-cabinet lighting, and 42-inch upper cabinets, creating an ideal space for both everyday living and entertaining. Hard-surface flooring extends throughout the main living areas, with tile in the bathrooms and plush carpet in the bedrooms. Quality construction details include 10-foot ceilings, 8-foot doors throughout, a tankless water heater, and numerous additional upgrades that enhance both style and performance.
RGS Realty LLC, MLS 3675510
May also be listed on the Scott Felder Homes website
Information last verified by Jome: Today at 6:16 AM (April 9, 2026)
Home highlights
Mixed‑use retail and entertainment center north of Austin with shops, dining, live events and walkable energy.
Book your tour. Save an average of $18,473. We'll handle the rest.
We collect exclusive builder offers, book your tours, and support you from start to housewarming.
- Confirmed tours
- Get matched & compare top deals
- Expert help, no pressure
- No added fees
Estimated value based on Jome data, T&C apply
Home details
- Property status:
- Move-in ready
- Lot size (acres):
- 0.13
- Size:
- 2,653 sqft
- Stories:
- 2
- Beds:
- 4
- Baths:
- 3
- Half baths:
- 1
- Garage spaces:
- 2
- Fence:
- Privacy Fence
- Facing direction:
- Southeast
Construction details
- Builder Name:
- Scott Felder Homes
- Completion Date:
- July, 2026
- Year Built:
- 2026
- Roof:
- Roof Gutter, Composition Roofing
Home features & finishes
- Appliances:
- Exhaust Fan
- Cooling:
- Ceiling Fan(s)Central Air
- Flooring:
- Vinyl FlooringCarpet FlooringTile Flooring
- Foundation Details:
- Slab
- Garage/Parking:
- Door OpenerGarageFront Entry Garage/ParkingAttached Garage
- Home amenities:
- Home Accessibility FeaturesENERGY STAR Certified
- Interior Features:
- Ceiling-HighWalk-In ClosetPantryFrench Doors
- Kitchen:
- DishwasherMicrowave OvenOvenDisposalGas CooktopBuilt-In OvenKitchen IslandCooktopElectric Oven
- Laundry facilities:
- Utility/Laundry Room
- Lighting:
- Exterior LightingLightingChandelier
- Property amenities:
- PatioPorch
- Rooms:
- Primary Bedroom On MainKitchenPowder RoomGame RoomOffice/StudyDining RoomFamily RoomOpen Concept FloorplanPrimary Bedroom Downstairs

Get a consultation with our New Homes Expert
- See how your home builds wealth
- Plan your home-buying roadmap
- Discover hidden gems
Utility information
- Heating:
- Forced Air Heating
- Sewer:
- Public Sewer
- Utilities:
- Electricity Available, Natural Gas Available, Cable Available, Water Available
- Water source:
- Public

Community details
East View Farms
by Scott Felder Homes, Georgetown, TX
- 8 homes
- 21 plans
- 1,498 - 3,724 sqft
View East View Farms details
Community amenities
- Common Grounds
- Playground
- Club House
- Community Pool
- Cluster Mailbox
More homes in East View Farms
- Home at address 101 Carlsbad Ct, Georgetown, TX 78626

Lanport
$459,990
- 4 bd
- 2 ba
- 1,804 sqft
101 Carlsbad Ct, Georgetown, TX 78626
- Home at address 109 Carlsbad Ct, Georgetown, TX 78626

Upton
$459,990
- 4 bd
- 2.5 ba
- 2,061 sqft
109 Carlsbad Ct, Georgetown, TX 78626
- Home at address 113 Carlsbad Ct, Georgetown, TX 78626

Travis
$523,990
- 5 bd
- 4 ba
- 2,840 sqft
113 Carlsbad Ct, Georgetown, TX 78626
- Home at address 1206 Silver Falls Dr, Georgetown, TX 78626

Franklin
$554,990
- 4 bd
- 3 ba
- 2,426 sqft
1206 Silver Falls Dr, Georgetown, TX 78626
- Home at address 1202 Silver Falls Dr, Georgetown, TX 78626

Englewood
$568,990
- 4 bd
- 3.5 ba
- 2,514 sqft
1202 Silver Falls Dr, Georgetown, TX 78626
- Home at address 1214 Silver Falls Dr, Georgetown, TX 78626

Jester
$584,990
- 4 bd
- 3.5 ba
- 2,814 sqft
1214 Silver Falls Dr, Georgetown, TX 78626
Floor plans in East View Farms
About the builder - Scott Felder Homes
Neighborhood
Home address
- City:
- Georgetown
- County:
- Williamson
- Zip Code:
- 78626
Schools in Georgetown Independent School District
GreatSchools’ Summary Rating calculation is based on 4 of the school’s themed ratings, including test scores, student/academic progress, college readiness, and equity. This information should only be used as a reference. Jome is not affiliated with GreatSchools and does not endorse or guarantee this information. Please reach out to schools directly to verify all information and enrollment eligibility. Data provided by GreatSchools.org © 2025
Places of interest
Getting around
Air quality
Noise level
A Soundscore™ rating is a number between 50 (very loud) and 100 (very quiet) that tells you how loud a location is due to environmental noise.

Considering this home?
Our expert will guide your tour, in-person or virtual
Need more information?
Text or call (888) 545-5198
Financials
Estimated monthly payment
Let us help you find your dream home
How many bedrooms are you looking for?
Similar homes nearby
Recently added communities in this area
Nearby communities in Georgetown
New homes in nearby cities
More New Homes in Georgetown, TX
RGS Realty LLC, MLS 3675510
Based on information from the Austin Board of REALTORS® (alternatively, from ACTRIS) for the period through 08/13/2024. Neither the Board nor ACTRIS guarantees or is in any way responsible for its accuracy. All data is provided “AS IS” and with all faults. Data maintained by the Board or ACTRIS may not reflect all real estate activity in the market. Information being provided is for consumers’ personal, non-commercial use and may not be used for any purpose other than to identify prospective properties consumers may be interested in purchasing. The Digital Millennium Copyright Act of 1998, 17 U.S.C. § 512 (the “DMCA”) provides recourse for copyright owners who believe that material appearing on the Internet infringes their rights under U.S. copyright law. If you believe in good faith that any content or material made available in connection with our website or services infringes your copyright, you (or your agent) may send us a notice requesting that the content or material be removed, or access to it blocked. Notices must be sent in writing by email to DMCAnotice@MLSGrid.com. The DMCA requires that your notice of alleged copyright infringement include the following information: (1) description of the copyrighted work that is the subject of claimed infringement; (2) description of the alleged infringing content and information sufficient to permit us to locate the content; (3) contact information for you, including your address, telephone number and email address; (4) a statement by you that you have a good faith belief that the content in the manner complained of is not authorized by the copyright owner, or its agent, or by the operation of any law; (5) a statement by you, signed under penalty of perjury, that the information in the notification is accurate and that you have the authority to enforce the copyrights that are claimed to be infringed; and (6) a physical or electronic signature of the copyright owner or a person authorized to act on the copyright owner’s behalf. Failure to include all of the above information may result in the delay of the processing of your complaint.
Read moreLast checked Apr 9, 6:40 am
- Jome
- New homes search
- Texas
- Greater Austin Area
- Williamson County
- Georgetown
- East View Farms
- 105 Carlsbad Ct, Georgetown, TX 78626



































