









Book your tour. Save an average of $18,473. We'll handle the rest.
We collect exclusive builder offers, book your tours, and support you from start to housewarming.
- Confirmed tours
- Get matched & compare top deals
- Expert help, no pressure
- No added fees
Estimated value based on Jome data, T&C apply
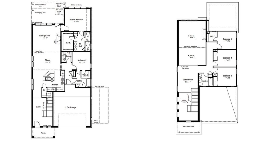
- 5 bd
- 3 ba
- 2,495 sqft
Sabine plan in East View Farms by Scott Felder Homes
Visit the community to experience this floor plan
Why tour with Jome?
- No pressure toursTour at your own pace with no sales pressure
- Expert guidanceGet insights from our home buying experts
- Exclusive accessSee homes and deals not available elsewhere
Jome is featured in
Plan description
May also be listed on the Scott Felder Homes website
Information last verified by Jome: Yesterday at 1:56 PM (March 7, 2026)
Plan details
- Name:
- Sabine
- Property type:
- Floor plan
- Community:
- East View Farms
- Builder:
- Scott Felder Homes
- Size:
- 2,495 sqft
- Stories:
- 2
- Beds:
- 5
- Baths from:
- 3
- Baths to:
- 4
- Garage spaces:
- 2
Plan features & finishes
- Garage/Parking:
- GarageAttached Garage
- Interior Features:
- Walk-In ClosetFoyerPantry
- Kitchen:
- Kitchen Island
- Laundry facilities:
- Utility/Laundry Room
- Property amenities:
- Porch
- Rooms:
- Primary Bedroom On MainKitchenGame RoomDining RoomFamily RoomOpen Concept FloorplanPrimary Bedroom Downstairs
- Upgrade Options:
- Separate Shower and TubCovered PatioAlternate Primary BathMedia RoomGarage BayExtra BathroomOutdoor FireplaceExtended PatioGarage Storage

Get a consultation with our New Homes Expert
- See how your home builds wealth
- Plan your home-buying roadmap
- Discover hidden gems
See the full plan layout
Download the floor plan PDF with room dimensions and home design details.

Instant download, no cost

Community details
East View Farms
by Scott Felder Homes, Georgetown, TX
- 8 homes
- 21 plans
- 1,498 - 3,724 sqft
View East View Farms details
Want to know more about what's around here?
The Sabine floor plan is part of East View Farms, a new home community by Scott Felder Homes, located in Georgetown, TX. Visit the East View Farms community page for full neighborhood insights, including nearby schools, shopping, walk & bike-scores, commuting, air quality & natural hazards.

Available homes in East View Farms
- Home at address 113 Carlsbad Ct, Georgetown, TX 78626

Travis
$523,990
- 5 bd
- 4 ba
- 2,840 sqft
113 Carlsbad Ct, Georgetown, TX 78626
- Home at address 1210 Silver Falls Dr, Georgetown, TX 78626

Irving
$615,990
- 5 bd
- 4.5 ba
- 2,960 sqft
1210 Silver Falls Dr, Georgetown, TX 78626
More floor plans in East View Farms

Considering this plan?
Our expert will guide your tour, in-person or virtual
Need more information?
Text or call (888) 488-9243
Financials
Estimated monthly payment
Let us help you find your dream home
How many bedrooms are you looking for?
Similar homes nearby
Recently added communities in this area
Nearby communities in Georgetown
New homes in nearby cities
More New Homes in Georgetown, TX
- Jome
- New homes search
- Texas
- Greater Austin Area
- Williamson County
- Georgetown
- East View Farms
- 4490 E University Ave, Georgetown, TX 78626































