











Book your tour. Save an average of $18,473. We'll handle the rest.
We collect exclusive builder offers, book your tours, and support you from start to housewarming.
- Confirmed tours
- Get matched & compare top deals
- Expert help, no pressure
- No added fees
Estimated value based on Jome data, T&C apply
Why tour with Jome?
- No pressure toursTour at your own pace with no sales pressure
- Expert guidanceGet insights from our home buying experts
- Exclusive accessSee homes and deals not available elsewhere
Jome is featured in
- Single-Family
- Quick move-in
- $281.29/sqft
- $1,580/annual HOA
Home description
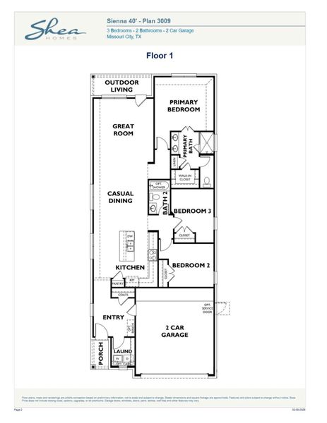
Come see this charming 1story homes cozy for a family gathering. This is a 3-bedroom, 2-bath, 2-car garage, and covered patio. Features include no neighbors in the rear. Texas sunset, and quartz countertops. All new Shea homes are EnergyStar Certified and come with smart home technology, stainless steel gas appliances, and a one-year warranty. Take advantage of Sienna's wide variety of amenities and join in on the sense of community in this vibrant, sprawling master plan. The Bees Crossing section is located near the front of the development, making for easy access to Fort Bend County Toll Road and Highway 6. Ask about our amazing promotions!
Shea Homes, MLS 10302983
May also be listed on the Shea Homes website
Information last verified by Jome: Today at 2:36 AM (February 15, 2026)
Book your tour. Save an average of $18,473. We'll handle the rest.
We collect exclusive builder offers, book your tours, and support you from start to housewarming.
- Confirmed tours
- Get matched & compare top deals
- Expert help, no pressure
- No added fees
Estimated value based on Jome data, T&C apply
Home details
- Property status:
- Move-in ready
- Lot size (acres):
- 0.17
- Size:
- 1,529 sqft
- Stories:
- 1
- Beds:
- 3
- Baths:
- 2
- Garage spaces:
- 2
- Facing direction:
- North
Construction details
- Builder Name:
- Shea Homes
- Completion Date:
- May, 2026
- Year Built:
- 2026
- Roof:
- Composition Roofing
Home features & finishes
- Construction Materials:
- Stucco
- Flooring:
- Carpet FlooringTile Flooring
- Foundation Details:
- Slab
- Garage/Parking:
- Car CarportDoor OpenerGarageAttached Garage
- Home amenities:
- ENERGY STAR CertifiedGreen Construction
- Interior Features:
- Ceiling-HighWired For SecurityWalk-In ClosetPantry
- Kitchen:
- DishwasherMicrowave OvenDisposalGas CooktopKitchen IslandElectric Oven
- Laundry facilities:
- DryerWasher
- Lighting:
- Lighting
- Property amenities:
- Cul-de-sacBackyard
- Rooms:
- Primary Bedroom On MainKitchenPrimary Bedroom Downstairs

Get a consultation with our New Homes Expert
- See how your home builds wealth
- Plan your home-buying roadmap
- Discover hidden gems
Utility information
- Heating:
- Water Heater, Gas Heating
- Utilities:
- HVAC

Community details
Sienna 40' at Sienna
by Shea Homes, Missouri City, TX
- 5 homes
- 9 plans
- 1,529 - 2,506 sqft
View Sienna 40' details
More homes in Sienna 40'
- Home at address 4018 Honeyspring Dr, Missouri City, TX 77459

3009 Elevation C
$379,990
- 3 bd
- 2 ba
- 1,548 sqft
4018 Honeyspring Dr, Missouri City, TX 77459
- Home at address 4062 Apiary Pt, Missouri City, TX 77459

Plan 3034 Elevation C
$414,990
- 3 bd
- 2.5 ba
- 1,847 sqft
4062 Apiary Pt, Missouri City, TX 77459
- Home at address 4015 Apiary Pt, Missouri City, TX 77459

3069 Elevation C
$469,990
- 4 bd
- 3 ba
- 2,471 sqft
4015 Apiary Pt, Missouri City, TX 77459
- Home at address 4042 Apiary Pt, Missouri City, TX 77459

3039 Elevation B
$475,765
- 4 bd
- 3 ba
- 2,289 sqft
4042 Apiary Pt, Missouri City, TX 77459
Floor plans in Sienna 40'
About the builder - Shea Homes
Neighborhood
Home address
- City:
- Missouri City
- County:
- Fort Bend
- Zip Code:
- 77459
Schools in Fort Bend Independent School District
- Grades PK-KGPrivatemontessori school of sugar land sienna0.8 mi8900 sienna ranch rdna
GreatSchools’ Summary Rating calculation is based on 4 of the school’s themed ratings, including test scores, student/academic progress, college readiness, and equity. This information should only be used as a reference. Jome is not affiliated with GreatSchools and does not endorse or guarantee this information. Please reach out to schools directly to verify all information and enrollment eligibility. Data provided by GreatSchools.org © 2025
Places of interest
Getting around
Air quality
Noise level
A Soundscore™ rating is a number between 50 (very loud) and 100 (very quiet) that tells you how loud a location is due to environmental noise.

Considering this home?
Our expert will guide your tour, in-person or virtual
Need more information?
Text or call (888) 486-2818
Financials
Estimated monthly payment
Let us help you find your dream home
How many bedrooms are you looking for?
Similar homes nearby
Recently added communities in this area
Nearby communities in Missouri City
New homes in nearby cities
More New Homes in Missouri City, TX
Shea Homes, MLS 10302983
Copyright © 2025, Houston Realtors Information Service, Inc. The information provided is exclusively for consumers’ personal, non-commercial use, and may not be used for any purpose other than to identify prospective properties consumers may be interested in purchasing. Information is deemed reliable but not guaranteed. All information provided should be independently verified.
Read moreLast checked Feb 15, 2:50 pm
- Jome
- New homes search
- Texas
- Greater Houston Area
- Fort Bend County
- Missouri City
- Sienna 40'
- 4051 Apiary Pt, Missouri City, TX 77459
































