



Book your tour. Save an average of $18,473. We'll handle the rest.
We collect exclusive builder offers, book your tours, and support you from start to housewarming.
- Confirmed tours
- Get matched & compare top deals
- Expert help, no pressure
- No added fees
Estimated value based on Jome data, T&C apply
Why tour with Jome?
- No pressure toursTour at your own pace with no sales pressure
- Expert guidanceGet insights from our home buying experts
- Exclusive accessSee homes and deals not available elsewhere
Jome is featured in
- Single-Family
- Quick move-in
- $157.97/sqft
- $1,200/annual HOA
Home description
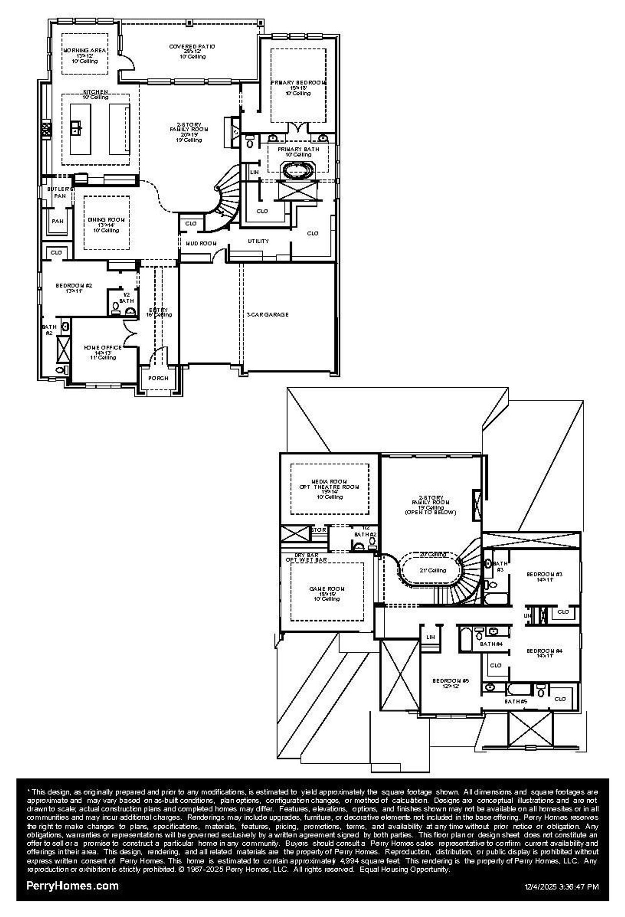
Step off the front porch and through the entryway, where a 16-foot ceiling welcomes you. The main hallway leads to a guest suite. The centerpiece of the home is the two-story family room, featuring a fireplace and a wall of windows that flood the space with natural light. The kitchen has two islands, a walk-in pantry, and a butler's pantry. The adjoining morning area is bathed in sunlight with access to the covered backyard patio. The primary bedroom, where windows bring in natural light. French doors open into the primary bathroom, complete with dual vanities, a garden tub, a glass-enclosed shower, linen closet, two walk-in closets, with access to the utility room. Upstairs, the game room welcomes you with a dry bar and the media room offers additional storage. Each of the three secondary bedrooms boast private bathrooms and walk-in closets. Completing the floor plan is the mudroom, with access to the utility room, located off the three-car garage.
Perry Homes Realty, LLC, MLS 43703177
May also be listed on the Perry Homes website
Information last verified by Jome: Today at 2:34 AM (April 13, 2026)
Book your tour. Save an average of $18,473. We'll handle the rest.
We collect exclusive builder offers, book your tours, and support you from start to housewarming.
- Confirmed tours
- Get matched & compare top deals
- Expert help, no pressure
- No added fees
Estimated value based on Jome data, T&C apply
Home details
- Property status:
- Move-in ready
- Collection:
- Briarley 70'
- Lot size (acres):
- 0.24
- Size:
- 4,994 sqft
- Stories:
- 2
- Beds:
- 5
- Baths:
- 6
- Half baths:
- 2
- Garage spaces:
- 3
- Facing direction:
- Southwest
Construction details
- Builder Name:
- Perry Homes
- Completion Date:
- May, 2026
- Year Built:
- 2026
- Roof:
- Composition Roofing
Home features & finishes
- Appliances:
- Sprinkler System
- Construction Materials:
- Brick
- Cooling:
- Ceiling Fan(s)
- Flooring:
- Carpet FlooringTile Flooring
- Foundation Details:
- Slab
- Garage/Parking:
- Door OpenerGarageAttached Garage
- Home amenities:
- ENERGY STAR CertifiedGreen Construction
- Interior Features:
- Ceiling-HighWired For SecurityWalk-In ClosetFoyerPantryWalk-In Pantry
- Kitchen:
- DishwasherMicrowave OvenOvenDisposalGas CooktopKitchen Island
- Laundry facilities:
- DryerWasher
- Lighting:
- Lighting
- Property amenities:
- DeckBackyardPatioFireplace
- Rooms:
- Kitchen

Get a consultation with our New Homes Expert
- See how your home builds wealth
- Plan your home-buying roadmap
- Discover hidden gems
Utility information
- Heating:
- Gas Heating
- Sewer:
- Public Sewer
- Water source:
- Public

Community details
Briarley at Briarley
by Perry Homes, Montgomery, TX
- 18 homes
- 56 plans
- 2,600 - 4,994 sqft
View Briarley details
More homes in Briarley
- Home at address 459 Lone Ranger Dr, Montgomery, TX 77316

3568W
Briarley 60'
$574,900
- 5 bd
- 4.5 ba
- 3,798 sqft
459 Lone Ranger Dr, Montgomery, TX 77316
- Home at address 619 Gunner Dr, Montgomery, TX 77316

3399W
Briarley 60'
$599,900
- 5 bd
- 4.5 ba
- 3,619 sqft
619 Gunner Dr, Montgomery, TX 77316
- Home at address 623 Gunner Dr, Montgomery, TX 77316

3593W
Briarley 60'
$599,900
- 5 bd
- 4 ba
- 3,593 sqft
623 Gunner Dr, Montgomery, TX 77316
- Home at address 523 Koda Bear Ct, Montgomery, TX 77316

3546W
Briarley 60'
$624,900
- 5 bd
- 4.5 ba
- 3,546 sqft
523 Koda Bear Ct, Montgomery, TX 77316
- Home at address 610 Gunner Dr, Montgomery, TX 77316

3399W
Briarley 60'
$624,900
- 5 bd
- 4.5 ba
- 3,619 sqft
610 Gunner Dr, Montgomery, TX 77316
- Home at address 506 Koda Bear Ct, Montgomery, TX 77316

3399W
Briarley 60'
$643,900
- 5 bd
- 4.5 ba
- 3,619 sqft
506 Koda Bear Ct, Montgomery, TX 77316
Floor plans in Briarley
About the builder - Perry Homes

- 392communities on Jome
- 1,614homes on Jome
Neighborhood
Home address
- City:
- Montgomery
- County:
- Montgomery
- Zip Code:
- 77316
Schools in Montgomery Independent School District
- Grades M-MPubliccreekside elementary3.1 mi20774 eva stna
GreatSchools’ Summary Rating calculation is based on 4 of the school’s themed ratings, including test scores, student/academic progress, college readiness, and equity. This information should only be used as a reference. Jome is not affiliated with GreatSchools and does not endorse or guarantee this information. Please reach out to schools directly to verify all information and enrollment eligibility. Data provided by GreatSchools.org © 2025
Places of interest
Getting around
Air quality

Considering this home?
Our expert will guide your tour, in-person or virtual
Need more information?
Text or call (888) 545-5198
Financials
Estimated monthly payment
Let us help you find your dream home
How many bedrooms are you looking for?
Similar homes nearby
Recently added communities in this area
Nearby communities in Montgomery
New homes in nearby cities
More New Homes in Montgomery, TX
Perry Homes Realty, LLC, MLS 43703177
Copyright © 2025, Houston Realtors Information Service, Inc. The information provided is exclusively for consumers’ personal, non-commercial use, and may not be used for any purpose other than to identify prospective properties consumers may be interested in purchasing. Information is deemed reliable but not guaranteed. All information provided should be independently verified.
Read moreLast checked Apr 13, 8:50 am
- Jome
- New homes search
- Texas
- Greater Houston Area
- Montgomery County
- Montgomery
- Briarley
- Briarley 70'
- 1190 Basset Hound Dr, Montgomery, TX 77316
































