





Book your tour. Save an average of $18,473. We'll handle the rest.
We collect exclusive builder offers, book your tours, and support you from start to housewarming.
- Confirmed tours
- Get matched & compare top deals
- Expert help, no pressure
- No added fees
Estimated value based on Jome data, T&C apply
Why tour with Jome?
- No pressure toursTour at your own pace with no sales pressure
- Expert guidanceGet insights from our home buying experts
- Exclusive accessSee homes and deals not available elsewhere
Jome is featured in
- Single-Family
- Quick move-in
- $210.22/sqft
- $65/monthly HOA
Home description
About this home
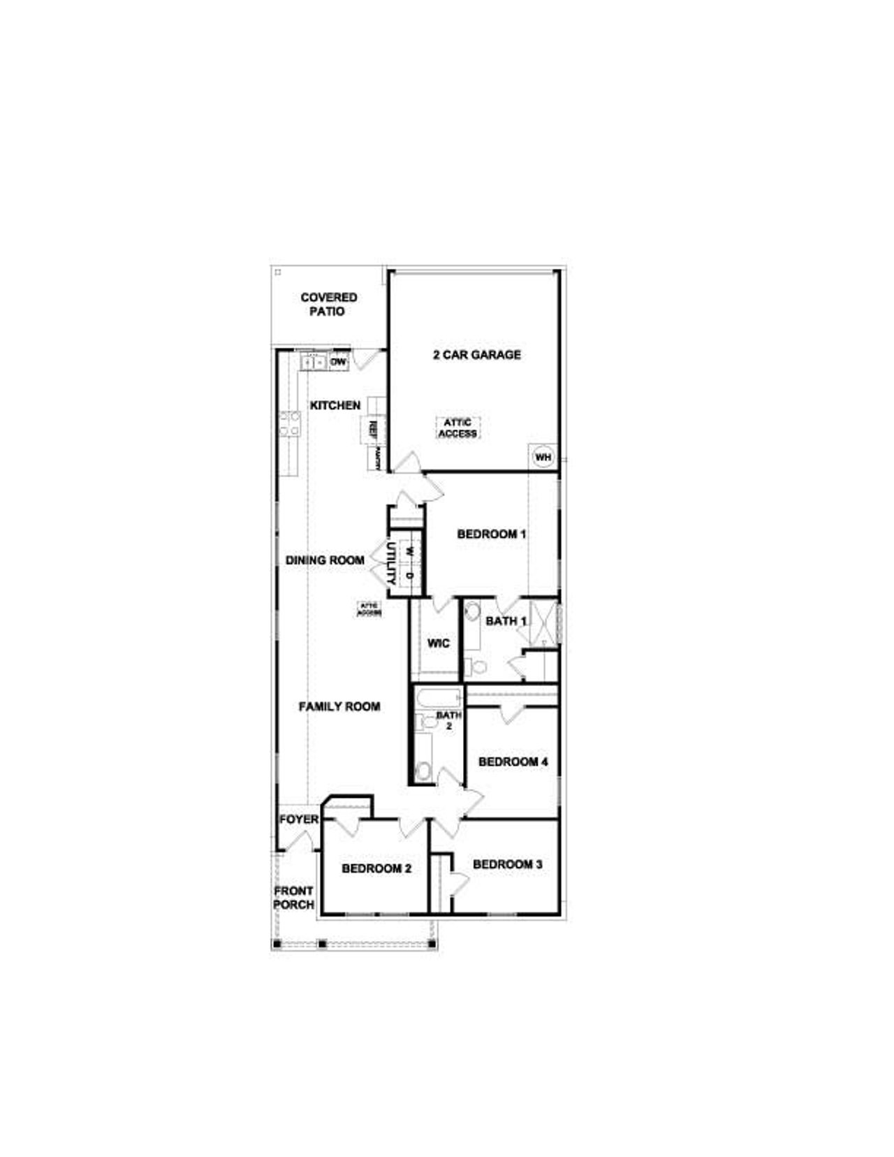
204 Constanza Trail is a one-story home in our Valverde community in Bastrop, TX. Inside this 4 bedroom, 2 bathroom home you'll find 1,427 square feet of comfortable living space.
Entering the home from the front porch, you'll step into the foyer that opens up to the spacious living room. The three secondary bedrooms and full bathroom with a shower and bathtub are at the front of the home. Making your way into the living room, the vast open-concept creates a grand living area. The gorgeous kitchen sits at the back of the home and boasts white cabinets, and stainless steel appliances. The private main bedroom is located towards the back of the home and includes an en-suite with a walk-in shower, a separate toilet room, and a walk-in closet
This home comes included with a professionally designed landscape package and a full irrigation system as well as our America's Smart Home® package that offers devices such as the Qolsys IQ Panel, Video Doorbell, Alarm.com app, Honeywell Thermostat, Deako Smart Light Switch, Kwikset Smart lock, and more.
Images are representative of plan and may vary as built.
May also be listed on the D.R. Horton website
Information last verified by Jome: Today at 4:06 AM (March 5, 2026)
Book your tour. Save an average of $18,473. We'll handle the rest.
We collect exclusive builder offers, book your tours, and support you from start to housewarming.
- Confirmed tours
- Get matched & compare top deals
- Expert help, no pressure
- No added fees
Estimated value based on Jome data, T&C apply
Home details
- Property status:
- Move-in ready
- Size:
- 1,427 sqft
- Stories:
- 1
- Beds:
- 4
- Baths:
- 2
- Garage spaces:
- 2
Construction details
- Builder Name:
- D.R. Horton
Home features & finishes
- Flooring:
- Vinyl FlooringCarpet Flooring
- Garage/Parking:
- GarageAttached Garage
- Interior Features:
- Walk-In ClosetFoyerPantry
- Kitchen:
- Kitchen Countertop
- Laundry facilities:
- Utility/Laundry Room
- Property amenities:
- CabinetsPatioPorch
- Rooms:
- Primary Bedroom On MainKitchenDining RoomFamily RoomOpen Concept FloorplanPrimary Bedroom Downstairs

Get a consultation with our New Homes Expert
- See how your home builds wealth
- Plan your home-buying roadmap
- Discover hidden gems

Community details
Valverde
by D.R. Horton, Bastrop, TX
- 19 homes
- 16 plans
- 1,202 - 2,241 sqft
View Valverde details
More homes in Valverde
- Home at address 306 Constanza Trl, Bastrop, TX 78602

The Fenwick
$299,990
- 4 bd
- 2 ba
- 1,427 sqft
306 Constanza Trl, Bastrop, TX 78602
- Home at address 300 Puerto Plata Ave, Bastrop, TX 78602

The Emily
$308,990
- 4 bd
- 3.5 ba
- 1,684 sqft
300 Puerto Plata Ave, Bastrop, TX 78602
- Home at address 360 San Juan Trl, Bastrop, TX 78602

The Dalton
$318,990
- 4 bd
- 2 ba
- 1,537 sqft
360 San Juan Trl, Bastrop, TX 78602
- Home at address 358 San Juan Trl, Bastrop, TX 78602

The Easton
$320,990
- 4 bd
- 2 ba
- 1,672 sqft
358 San Juan Trl, Bastrop, TX 78602
- Home at address 342 San Juan Trl, Bastrop, TX 78602

The Easton
$323,990
- 4 bd
- 2 ba
- 1,672 sqft
342 San Juan Trl, Bastrop, TX 78602
- Home at address 356 San Juan Trl, Bastrop, TX 78602

The Gaven
$328,990
- 4 bd
- 2 ba
- 1,772 sqft
356 San Juan Trl, Bastrop, TX 78602
Floor plans in Valverde
About the builder - D.R. Horton

- 1,183communities on Jome
- 10,169homes on Jome
Neighborhood
Home address
Schools in Bastrop Independent School District
- Grades PK-05Publiccolony oaks elementary0.8 mi601 sam houston drna
GreatSchools’ Summary Rating calculation is based on 4 of the school’s themed ratings, including test scores, student/academic progress, college readiness, and equity. This information should only be used as a reference. Jome is not affiliated with GreatSchools and does not endorse or guarantee this information. Please reach out to schools directly to verify all information and enrollment eligibility. Data provided by GreatSchools.org © 2025
Places of interest
Getting around
Air quality
Noise level
A Soundscore™ rating is a number between 50 (very loud) and 100 (very quiet) that tells you how loud a location is due to environmental noise.

Considering this home?
Our expert will guide your tour, in-person or virtual
Need more information?
Text or call (888) 488-9243
Financials
Estimated monthly payment
Let us help you find your dream home
How many bedrooms are you looking for?
Similar homes nearby
Recently added communities in this area
Nearby communities in Bastrop
New homes in nearby cities
More New Homes in Bastrop, TX
- Jome
- New homes search
- Texas
- Greater Austin Area
- Bastrop County
- Bastrop
- Valverde
- 204 Constanza Trl, Bastrop, TX 78602

































