

Book your tour. Save an average of $18,473. We'll handle the rest.
We collect exclusive builder offers, book your tours, and support you from start to housewarming.
- Confirmed tours
- Get matched & compare top deals
- Expert help, no pressure
- No added fees
Estimated value based on Jome data, T&C apply
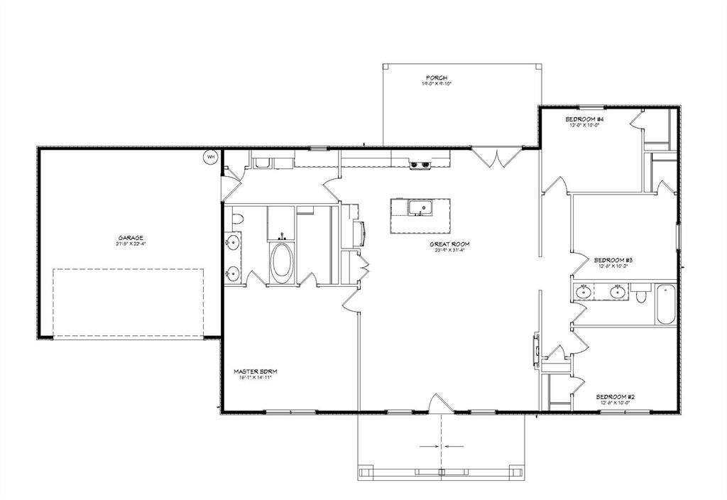
- 4 bd
- 2 ba
- 1,843 sqft
1002 S 9th St, Merkel, TX 79536
Why tour with Jome?
- No pressure toursTour at your own pace with no sales pressure
- Expert guidanceGet insights from our home buying experts
- Exclusive accessSee homes and deals not available elsewhere
Jome is featured in
- Single-Family
- Under construction
- $184.48/sqft
- 0.21-acre lot
Home description
New construction proposed by Red Oak Custom Builders starting soon in Merkel! Wonderful open floorplan with 4 Bedrooms & 2 Bathrooms built on a 9ft plate. Builder's plans for the home - Kitchen to have painted cabinetry, granite on counters, gorgeous walnut butcher block on island, & SS appliances (range, microwave, dishwasher). Living room will have an electric FP. The primary bedroom ensuite has a tub, separate tiled shower, and 2-sink vanity with granite counters. LVP main living areas, carpet in bedrooms. Foam insulation. Class 4 metal roof. Covered porches, front & back. Metal privacy fence and a 2-car garage. Landscaping to include sod in front & back. Wise camera system with 2 cameras & ring doorbell. Builder warranty. This home is just starting so builder's finish out plans ARE SUBJECT TO CHANGE and-or buyer has the opportunity to choose finishes and make some changes at this point, within builder's allowances. The barndos on the corner of S. 6th and Rose St and the one at 822 Rose were also built by Red Oak Custom Builders. Photos from those homes are just representative of the builder's style. All measurements are approximate. Lot size is also approximate since it's a larger lot that has been subdivided.
RE/MAX Big Country, MLS 21234734
Information last verified by Jome: Today at 1:50 AM (April 22, 2026)
Book your tour. Save an average of $18,473. We'll handle the rest.
We collect exclusive builder offers, book your tours, and support you from start to housewarming.
- Confirmed tours
- Get matched & compare top deals
- Expert help, no pressure
- No added fees
Estimated value based on Jome data, T&C apply
Home details
- Property status:
- Under construction
- Lot size (acres):
- 0.21
- Size:
- 1,843 sqft
- Stories:
- 1
- Beds:
- 4
- Baths:
- 2
- Garage spaces:
- 2
- Fence:
- Metal Fence
Construction details
- Year Built:
- 2026
- Roof:
- Metal Roofing
Home features & finishes
- Construction Materials:
- Structural SteelRockStone
- Cooling:
- Ceiling Fan(s)Central Air
- Flooring:
- Vinyl FlooringCarpet Flooring
- Foundation Details:
- Slab
- Garage/Parking:
- Door OpenerGarageFront Entry Garage/ParkingAttached Garage
- Interior Features:
- Walk-In ClosetPantry
- Kitchen:
- DishwasherMicrowave OvenDisposalGranite countertopKitchen IslandKitchen Range
- Laundry facilities:
- Stackable Washer/DryerUtility/Laundry Room
- Lighting:
- Decorative/Designer Lighting
- Property amenities:
- Electric FireplacePatioFireplacePorch
- Rooms:
- Primary Bedroom On MainLiving RoomOpen Concept FloorplanPrimary Bedroom Downstairs
- Security system:
- Smoke DetectorCarbon Monoxide Detector

Get a consultation with our New Homes Expert
- See how your home builds wealth
- Plan your home-buying roadmap
- Discover hidden gems
Utility information
- Heating:
- Electric Heating, Water Heater, Central Heating
- Utilities:
- City Water System, High Speed Internet Access
Neighborhood
Home address
Schools in Merkel Independent School District
GreatSchools’ Summary Rating calculation is based on 4 of the school’s themed ratings, including test scores, student/academic progress, college readiness, and equity. This information should only be used as a reference. Jome is not affiliated with GreatSchools and does not endorse or guarantee this information. Please reach out to schools directly to verify all information and enrollment eligibility. Data provided by GreatSchools.org © 2025
Getting around
Natural hazards risk
Provided by FEMA

Considering this home?
Our expert will guide your tour, in-person or virtual
Need more information?
Text or call (888) 545-5198
Financials
Estimated monthly payment
Let us help you find your dream home
How many bedrooms are you looking for?
Similar homes nearby
Recently added communities in this area
Nearby communities in Merkel
New homes in nearby cities
More New Homes in Merkel, TX
RE/MAX Big Country, MLS 21234734
IDX information is provided exclusively for personal, non-commercial use, and may not be used for any purpose other than to identify prospective properties consumers may be interested in purchasing. You may not reproduce or redistribute this data, it is for viewing purposes only. This data is deemed reliable, but is not guaranteed accurate by the MLS or NTREIS.
Read moreLast checked Apr 22, 4:00 am
- Jome
- New homes search
- Texas
- Taylor County
- Merkel
- 1002 S 9th St, Merkel, TX 79536











