














Book your tour. Save an average of $18,473. We'll handle the rest.
- Confirmed tours
- Get matched & compare top deals
- Expert help, no pressure
- No added fees
Estimated value based on Jome data, T&C apply







Why tour with Jome?
- No pressure toursTour at your own pace with no sales pressure
- Expert guidanceGet insights from our home buying experts
- Exclusive accessSee homes and deals not available elsewhere
Jome is featured in
- Single-Family
- Under construction
- $173.67/sqft
- $650/annual HOA
Home description
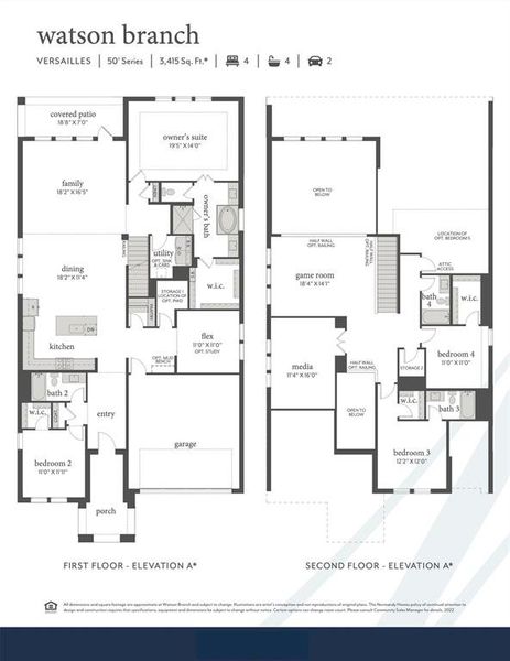
NORMANDY HOMES VERSAILLES floor plan. This thoughtfully designed west-facing home is one of our final opportunities for the sought-after Versailles home plan. Soaring ceilings in the entry and grand two-story family room fill the space with natural light, enhanced by solid surface flooring throughout all common areas downstairs. The gourmet kitchen is a chef’s dream with upgraded countertops, stainless steel appliances, a spacious island, and a walk-in pantry. The spa-inspired owner’s retreat provides a serene escape with a bathtub, separate shower, dual vanities, and a generous walk-in closet. A secondary bedroom on the main floor enjoys a full bath just outside the door, while a conveniently located half bath by the study offers privacy for guests. Upstairs, enjoy a gameroom, media room, and two secondary bedrooms - each with its own walk-in closet - plus two additional full bathrooms. This home combines elegance, comfort, and privacy in a quiet, boutique style community just minutes from restaurants, shopping and major highways.
Colleen Frost Real Estate Serv, MLS 21138928
May also be listed on the Normandy Homes website
Information last verified by Jome: Today at 4:01 AM (December 30, 2025)
Home highlights
Downtown Dallas interactive arts plaza with food halls, live events and pedestrian vibrancy.
Book your tour. Save an average of $18,473. We'll handle the rest.
We collect exclusive builder offers, book your tours, and support you from start to housewarming.
- Confirmed tours
- Get matched & compare top deals
- Expert help, no pressure
- No added fees
Estimated value based on Jome data, T&C apply
Home details
- Property status:
- Under construction
- Lot size (acres):
- 0.14
- Size:
- 3,415 sqft
- Stories:
- 2
- Beds:
- 4
- Baths:
- 4
- Half baths:
- 1
- Garage spaces:
- 2
- Fence:
- Wood Fence
Construction details
- Builder Name:
- Normandy Homes
- Year Built:
- 2025
- Roof:
- Composition Roofing, Shingle Roofing
Home features & finishes
- Appliances:
- Exhaust FanSprinkler System
- Construction Materials:
- WoodBrick
- Cooling:
- Ceiling Fan(s)Central Air
- Flooring:
- Ceramic FlooringVinyl FlooringCarpet FlooringTile Flooring
- Foundation Details:
- Slab
- Garage/Parking:
- Door OpenerGarageFront Entry Garage/ParkingAttached Garage
- Home amenities:
- Home Accessibility FeaturesGreen Construction
- Interior Features:
- Walk-In ClosetPantryFlat Screen WiringDouble Vanity
- Kitchen:
- DishwasherMicrowave OvenDisposalGas CooktopGranite countertopKitchen IslandElectric Oven
- Laundry facilities:
- DryerWasherStackable Washer/DryerUtility/Laundry Room
- Lighting:
- LightingDecorative/Designer Lighting
- Property amenities:
- SidewalkTrees on propertyBackyardLandscapingPatioYardSmart Home SystemPorch
- Rooms:
- Open Concept Floorplan
- Security system:
- Fire Alarm SystemSecurity SystemSmoke DetectorCarbon Monoxide Detector

Get a consultation with our New Homes Expert
- See how your home builds wealth
- Plan your home-buying roadmap
- Discover hidden gems
Utility information
- Heating:
- Electric Heating, Zoned Heating
- Utilities:
- Electricity Available, Natural Gas Available, Underground Utilities, Phone Available, HVAC, City Water System, Cable Available, Individual Gas Meter, High Speed Internet Access, Cable TV, Curbs

Community details
Watson Branch
by Normandy Homes, Mansfield, TX
- 6 homes
- 7 plans
- 2,476 - 3,600 sqft
View Watson Branch details
Community amenities
- Park Nearby
- Sidewalks Available
- Walking, Jogging, Hike Or Bike Trails
More homes in Watson Branch
Floor plans in Watson Branch
About the builder - Normandy Homes
Neighborhood
Home address
Schools in Mansfield Independent School District
GreatSchools’ Summary Rating calculation is based on 4 of the school’s themed ratings, including test scores, student/academic progress, college readiness, and equity. This information should only be used as a reference. Jome is not affiliated with GreatSchools and does not endorse or guarantee this information. Please reach out to schools directly to verify all information and enrollment eligibility. Data provided by GreatSchools.org © 2025
Places of interest
Getting around
Air quality
Noise level
A Soundscore™ rating is a number between 50 (very loud) and 100 (very quiet) that tells you how loud a location is due to environmental noise.
Natural hazards risk
Climate hazards can impact homes and communities, with risks varying by location. These scores reflect the potential impact of natural disasters and climate-related risks on Tarrant County
Provided by FEMA

Considering this home?
Our expert will guide your tour, in-person or virtual
Need more information?
Text or call (888) 486-2818
Financials
Estimated monthly payment
Let us help you find your dream home
How many bedrooms are you looking for?
Similar homes nearby
Recently added communities in this area
Nearby communities in Mansfield
New homes in nearby cities
More New Homes in Mansfield, TX
Colleen Frost Real Estate Serv, MLS 21138928
IDX information is provided exclusively for personal, non-commercial use, and may not be used for any purpose other than to identify prospective properties consumers may be interested in purchasing. You may not reproduce or redistribute this data, it is for viewing purposes only. This data is deemed reliable, but is not guaranteed accurate by the MLS or NTREIS.
Read moreLast checked Dec 30, 10:00 pm
- Jome
- New homes search
- Texas
- Dallas-Fort Worth Area
- Tarrant County
- Mansfield
- Watson Branch
- 1356 Watson Branch Ln, Mansfield, TX 76063







































