









Book your tour. Save an average of $18,473. We'll handle the rest.
We collect exclusive builder offers, book your tours, and support you from start to housewarming.
- Confirmed tours
- Get matched & compare top deals
- Expert help, no pressure
- No added fees
Estimated value based on Jome data, T&C apply










































Why tour with Jome?
- No pressure toursTour at your own pace with no sales pressure
- Expert guidanceGet insights from our home buying experts
- Exclusive accessSee homes and deals not available elsewhere
Jome is featured in
- Single-Family
- Quick move-in
- $174.3/sqft
- $800/annual HOA
Home description
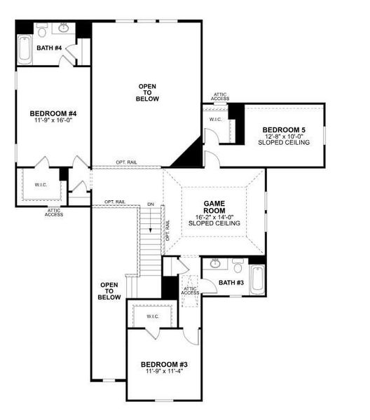
READY NOW! Introducing the Salado plan! This 3,907-square-foot home sits on a half-acre and has 5 bedrooms and 4.5 baths. As you enter through the open foyer, you see a bedroom and a study. The home's design is an open-concept dining room, kitchen, breakfast area, and family room, with a fireplace and ceilings opening to the second floor. Enter your owner's suite through a private entry from the family room. The large owner's bedroom features beautiful, sloped ceilings and a bay window for extra space and plenty of natural light. Through the double doors in the bedroom, enter your private bathroom retreat, complete with an impressive walk-in closet, a soaking tub, and a walk-in shower. Upstairs, you will find an open view into the family room, a spacious game room, 2 full bathrooms, and 3 additional bedrooms— Head outside to your covered extended patio, perfect for outdoor entertaining. Contact us to learn more!
M/I Homes, MLS 14413404
May also be listed on the M/I Homes website
Information last verified by Jome: Today at 2:50 AM (April 13, 2026)
Book your tour. Save an average of $18,473. We'll handle the rest.
We collect exclusive builder offers, book your tours, and support you from start to housewarming.
- Confirmed tours
- Get matched & compare top deals
- Expert help, no pressure
- No added fees
Estimated value based on Jome data, T&C apply
Home details
- Property status:
- Move-in ready
- Lot size (acres):
- 0.80
- Size:
- 3,907 sqft
- Stories:
- 2
- Beds:
- 5
- Baths:
- 4
- Half baths:
- 1
- Garage spaces:
- 3
- Facing direction:
- South
Construction details
- Builder Name:
- M/I Homes
- Year Built:
- 2025
- Roof:
- Composition Roofing
Home features & finishes
- Appliances:
- Sprinkler System
- Construction Materials:
- BrickStone
- Cooling:
- Ceiling Fan(s)
- Flooring:
- Vinyl FlooringCarpet Flooring
- Foundation Details:
- Slab
- Garage/Parking:
- GarageAttached Garage
- Home amenities:
- Green Construction
- Interior Features:
- Walk-In ClosetWalk-In Pantry
- Kitchen:
- DishwasherMicrowave OvenOvenDisposalGas CooktopKitchen IslandGas OvenKitchen RangeDouble Oven
- Laundry facilities:
- DryerWasher
- Property amenities:
- BackyardFireplace
- Rooms:
- Kitchen

Get a consultation with our New Homes Expert
- See how your home builds wealth
- Plan your home-buying roadmap
- Discover hidden gems
Utility information
- Heating:
- Gas Heating
- Sewer:
- Public Sewer

Community details
Sorella at Sorella
by M/I Homes, Tomball, TX
- 39 homes
- 42 plans
- 1,342 - 3,907 sqft
View Sorella details
More homes in Sorella
- Home at address 21406 Villa Spruce Ln, Tomball, TX 77377

Columbus - Smart Series
$374,990
- 5 bd
- 4.5 ba
- 2,912 sqft
21406 Villa Spruce Ln, Tomball, TX 77377
- Home at address 21011 Holm Oak Wy, Tomball, TX 77377

San Gabriel - Premier Collection
Savings$673,990
- 5 bd
- 4.5 ba
- 3,619 sqft
21011 Holm Oak Wy, Tomball, TX 77377
- Home at address 21011 Holm Oak Wy, Tomball, TX 77447

Home
$673,990
- 5 bd
- 4.5 ba
- 3,619 sqft
21011 Holm Oak Wy, Tomball, TX 77447
- Home at address 21918 Hibiscus Hedge Trl, Tomball, TX 77377

Salado - Premier Collection
Savings$680,990
- 5 bd
- 4.5 ba
- 3,907 sqft
21918 Hibiscus Hedge Trl, Tomball, TX 77377
Floor plans in Sorella
- View details for Salado - Premier Collection

Salado - Premier Collection
$629,990+- 5 bd
- 4.5 ba
- 3,744 sqft
- View details for Salado X - Premier Collection

Salado X - Premier Collection
$644,990+- 5 bd
- 4.5 ba
- 3,744 sqft
About the builder - M/I Homes

- 141communities on Jome
- 1,805homes on Jome
Neighborhood
Home address
Schools in Waller Independent School District
- Grades M-MPublicbryan lowe elementary4.5 mi31502 conifer farm drna
- Grades PK-KGPrivatechildrens building blocks7.8 mi1010 inwood stna
GreatSchools’ Summary Rating calculation is based on 4 of the school’s themed ratings, including test scores, student/academic progress, college readiness, and equity. This information should only be used as a reference. Jome is not affiliated with GreatSchools and does not endorse or guarantee this information. Please reach out to schools directly to verify all information and enrollment eligibility. Data provided by GreatSchools.org © 2025
Places of interest
Getting around
Air quality

Considering this home?
Our expert will guide your tour, in-person or virtual
Need more information?
Text or call (888) 545-5198
Financials
Estimated monthly payment
Let us help you find your dream home
How many bedrooms are you looking for?
Similar homes nearby
Recently added communities in this area
Nearby communities in Tomball
New homes in nearby cities
More New Homes in Tomball, TX
M/I Homes, MLS 14413404
Copyright © 2025, Houston Realtors Information Service, Inc. The information provided is exclusively for consumers’ personal, non-commercial use, and may not be used for any purpose other than to identify prospective properties consumers may be interested in purchasing. Information is deemed reliable but not guaranteed. All information provided should be independently verified.
Read moreLast checked Apr 13, 2:50 am
- Jome
- New homes search
- Texas
- Greater Houston Area
- Harris County
- Tomball
- Sorella
- 21918 Hibiscus Hedge Trl, Tomball, TX 77447


























