














Book your tour. Save an average of $18,473. We'll handle the rest.
- Confirmed tours
- Get matched & compare top deals
- Expert help, no pressure
- No added fees
Estimated value based on Jome data, T&C apply





























Why tour with Jome?
- No pressure toursTour at your own pace with no sales pressure
- Expert guidanceGet insights from our home buying experts
- Exclusive accessSee homes and deals not available elsewhere
Jome is featured in
- Single-Family
- Under construction
- $180.34/sqft
- $350/annual HOA
Home description
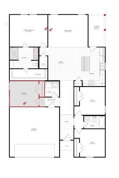
MLS# 21136354 - Built by HistoryMaker Homes - Mar 2026 completion! ~ 4.99% fixed rate with closing cost assistance. Ready in February. Boasting 1,730 square feet, this thoughtfully designed home features 4 spacious bedrooms, including a luxurious primary suite, and 2 full bathrooms. The open floor plan seamlessly connects the living and dining areas, enhanced by decorative lighting and granite countertops. The eat-in kitchen is a chef's delight, complete with a gas cook top, plenty of cabinets, kitchen island and pantry. Relax outdoors on the covered patio overlooking a beautifully landscaped massive backyard with a sprinkler system. Additional highlights include high-speed internet availability, energy-efficient heating and cooling systems, and a 2-car garage. Located within the highly-rated Godley ISD, this property offers an exceptional opportunity to enjoy modern living in a desirable community setting. Low tax rate and low annual HOA dues. Large dog park, play ground & covered pavilion are yours to enjoy.
Historymaker Homes, MLS 21136354
May also be listed on the HistoryMaker Homes website
Information last verified by Jome: Today at 4:02 PM (February 3, 2026)
Home highlights
Book your tour. Save an average of $18,473. We'll handle the rest.
We collect exclusive builder offers, book your tours, and support you from start to housewarming.
- Confirmed tours
- Get matched & compare top deals
- Expert help, no pressure
- No added fees
Estimated value based on Jome data, T&C apply
Home details
- Property status:
- Under construction
- Lot size (acres):
- 0.17
- Size:
- 1,730 sqft
- Stories:
- 1
- Beds:
- 4
- Baths:
- 2
- Garage spaces:
- 2
- Fence:
- Wood Fence, Metal Fence
Construction details
- Builder Name:
- HistoryMaker Homes
- Year Built:
- 2026
- Roof:
- Roof Gutter, Composition Roofing
Home features & finishes
- Appliances:
- Exhaust Fan VentedSprinkler System
- Construction Materials:
- CementBrick
- Cooling:
- Ceiling Fan(s)Central Air
- Flooring:
- Ceramic FlooringVinyl FlooringCarpet FlooringTile Flooring
- Foundation Details:
- Slab
- Garage/Parking:
- Door OpenerGarageFront Entry Garage/Parking
- Home amenities:
- Green Construction
- Interior Features:
- Walk-In ClosetPantry
- Kitchen:
- DishwasherMicrowave OvenOvenDisposalGas CooktopGranite countertopKitchen IslandGas Oven
- Laundry facilities:
- DryerWasherStackable Washer/DryerUtility/Laundry Room
- Lighting:
- Exterior LightingDecorative/Designer Lighting
- Property amenities:
- SidewalkBackyardLandscapingPatioYardPorch
- Rooms:
- Primary Bedroom On MainKitchenOpen Concept FloorplanPrimary Bedroom Downstairs
- Security system:
- Smoke DetectorCarbon Monoxide Detector

Get a consultation with our New Homes Expert
- See how your home builds wealth
- Plan your home-buying roadmap
- Discover hidden gems
Utility information
- Heating:
- Heat Pump, Water Heater, Central Heating, Gas Heating, Tankless water heater
- Utilities:
- Underground Utilities, HVAC, City Water System, Individual Water Meter, Individual Gas Meter, High Speed Internet Access, Curbs

Community details
Godley Ranch
by HistoryMaker Homes, Godley, TX
- 11 homes
- 8 plans
- 1,495 - 2,534 sqft
View Godley Ranch details
Community amenities
- Playground
- Park Nearby
- Sidewalks Available
- Greenbelt View
- Walking, Jogging, Hike Or Bike Trails
More homes in Godley Ranch
- Home at address 609 Godley Br, Godley, TX 76044

Home
$299,990
- 4 bd
- 2 ba
- 1,730 sqft
609 Godley Br, Godley, TX 76044
- Home at address 609 Godley Rnch, Godley, TX 76044

Chestnut
Godley Ranch Sales Phase 2
$299,990
- 4 bd
- 2 ba
- 1,730 sqft
609 Godley Rnch, Godley, TX 76044
- Home at address 616 Godley Rnch, Godley, TX 76044

Chestnut
Godley Ranch Sales Phase 2
$311,990
- 4 bd
- 2 ba
- 1,730 sqft
616 Godley Rnch, Godley, TX 76044
- Home at address 8220 Korat Vis, Godley, TX 76044

Chestnut
Godley Ranch Sales Phase 2
$312,990
- 4 bd
- 2 ba
- 1,730 sqft
8220 Korat Vis, Godley, TX 76044
- Home at address 604 Godley Rnch, Godley, TX 76044

Elderberry
Godley Ranch Sales Phase 2
$318,990
- 4 bd
- 2 ba
- 1,952 sqft
604 Godley Rnch, Godley, TX 76044
- Home at address 8245 Cheetah Path, Godley, TX 76044

Emory II
Godley Ranch Sales Phase 2
$324,990
- 4 bd
- 2 ba
- 1,871 sqft
8245 Cheetah Path, Godley, TX 76044
Floor plans in Godley Ranch
About the builder - HistoryMaker Homes
Neighborhood
Home address
Schools in Godley Independent School District
- Grades M-MPublicfuture legacy elementary1.3 mi309 n pearsonna
GreatSchools’ Summary Rating calculation is based on 4 of the school’s themed ratings, including test scores, student/academic progress, college readiness, and equity. This information should only be used as a reference. Jome is not affiliated with GreatSchools and does not endorse or guarantee this information. Please reach out to schools directly to verify all information and enrollment eligibility. Data provided by GreatSchools.org © 2025
Places of interest
Getting around
Air quality
Natural hazards risk
Provided by FEMA

Considering this home?
Our expert will guide your tour, in-person or virtual
Need more information?
Text or call (888) 486-2818
Financials
Estimated monthly payment
Let us help you find your dream home
How many bedrooms are you looking for?
Similar homes nearby
Recently added communities in this area
Nearby communities in Godley
New homes in nearby cities
More New Homes in Godley, TX
Historymaker Homes, MLS 21136354
IDX information is provided exclusively for personal, non-commercial use, and may not be used for any purpose other than to identify prospective properties consumers may be interested in purchasing. You may not reproduce or redistribute this data, it is for viewing purposes only. This data is deemed reliable, but is not guaranteed accurate by the MLS or NTREIS.
Read moreLast checked Feb 3, 4:00 pm
- Jome
- New homes search
- Texas
- Dallas-Fort Worth Area
- Johnson County
- Godley
- Godley Ranch
- 616 Godley Br, Godley, TX 76044






























