













Book your tour. Save an average of $18,473. We'll handle the rest.
- Confirmed tours
- Get matched & compare top deals
- Expert help, no pressure
- No added fees
Estimated value based on Jome data, T&C apply
- 2 bd
- 2 ba
- 1,492 sqft
14330 Bluebonnet Bend Ct, Willis, TX 77318
Why tour with Jome?
- No pressure toursTour at your own pace with no sales pressure
- Expert guidanceGet insights from our home buying experts
- Exclusive accessSee homes and deals not available elsewhere
Jome is featured in
- Single-Family
- Quick move-in
- $271.9/sqft
- $3,108/annual HOA
Home description
Ready in March. Luxury living at its finest in the Del Webb Contour floor plan located in the sought-after 55-plus active adult community of Chambers Creek. The deluxe kitchen has stainless steel appliances, ample 42" cabinetry, and a large center island. Enjoy the Texas sunshine on your covered patio, enjoying a glass of wine with your fabulous neighbors.
Pulte Homes, MLS 30554200
May also be listed on the Del Webb website
Information last verified by Jome: Yesterday at 2:34 AM (February 1, 2026)
Home highlights
Book your tour. Save an average of $18,473. We'll handle the rest.
We collect exclusive builder offers, book your tours, and support you from start to housewarming.
- Confirmed tours
- Get matched & compare top deals
- Expert help, no pressure
- No added fees
Estimated value based on Jome data, T&C apply
Home details
- Property status:
- Move-in ready
- Size:
- 1,492 sqft
- Stories:
- 1
- Beds:
- 2
- Baths:
- 2
- Garage spaces:
- 2
- Facing direction:
- West
Construction details
- Builder Name:
- Del Webb
- Year Built:
- 2026
- Roof:
- Composition Roofing
Home features & finishes
- Appliances:
- Sprinkler System
- Construction Materials:
- BrickStoneWood Siding
- Flooring:
- Vinyl Flooring
- Foundation Details:
- Slab
- Garage/Parking:
- GarageAttached Garage
- Interior Features:
- Ceiling-HighWalk-In ClosetCrown MoldingBreakfast Bar
- Kitchen:
- DishwasherMicrowave OvenDisposalGas CooktopKitchen IslandGas OvenKitchen RangeElectric Oven
- Laundry facilities:
- Utility/Laundry Room
- Property amenities:
- BarPatioPorch
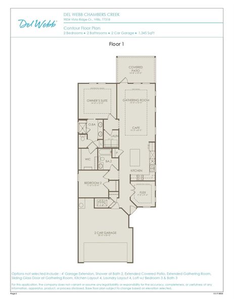
- Rooms:
- Flex RoomPrimary Bedroom On MainKitchenFamily RoomBreakfast AreaPrimary Bedroom Downstairs

Get a consultation with our New Homes Expert
- See how your home builds wealth
- Plan your home-buying roadmap
- Discover hidden gems
Utility information
- Heating:
- Gas Heating

Community details
Del Webb in Chambers Creek at Chambers Creek
by Del Webb, Willis, TX
- 3 homes
- 7 plans
- 1,345 - 1,989 sqft
View Del Webb in Chambers Creek details
More homes in Del Webb in Chambers Creek
- Home at address 14426 Garden Grove Ct, Willis, TX 77318

Contour
$345,000
- 2 bd
- 2 ba
- 1,492 sqft
14426 Garden Grove Ct, Willis, TX 77318
- Home at address 14318 Bluebonnet Bend Ct, Willis, TX 77318

Hallmark
$390,160
- 3 bd
- 2.5 ba
- 1,581 sqft
14318 Bluebonnet Bend Ct, Willis, TX 77318
Floor plans in Del Webb in Chambers Creek
About the builder - Del Webb
Neighborhood
Home address
- City:
- Willis
- County:
- Montgomery
- Zip Code:
- 77318
Schools in Willis Independent School District
- Grades PK-PKPublicroark early education center1.9 mi103 wildkat drna
- Grades M-MPublicjjaep2.1 mi207 philpotna
GreatSchools’ Summary Rating calculation is based on 4 of the school’s themed ratings, including test scores, student/academic progress, college readiness, and equity. This information should only be used as a reference. Jome is not affiliated with GreatSchools and does not endorse or guarantee this information. Please reach out to schools directly to verify all information and enrollment eligibility. Data provided by GreatSchools.org © 2025
Places of interest
Getting around
Air quality

Considering this home?
Our expert will guide your tour, in-person or virtual
Need more information?
Text or call (888) 486-2818
Financials
Estimated monthly payment
Let us help you find your dream home
How many bedrooms are you looking for?
Similar homes nearby
Recently added communities in this area
Nearby communities in Willis
New homes in nearby cities
More New Homes in Willis, TX
Pulte Homes, MLS 30554200
Copyright © 2025, Houston Realtors Information Service, Inc. The information provided is exclusively for consumers’ personal, non-commercial use, and may not be used for any purpose other than to identify prospective properties consumers may be interested in purchasing. Information is deemed reliable but not guaranteed. All information provided should be independently verified.
Read moreLast checked Feb 2, 2:50 pm
- Jome
- New homes search
- Texas
- Greater Houston Area
- Montgomery County
- Willis
- Del Webb in Chambers Creek
- 14330 Bluebonnet Bend Ct, Willis, TX 77318

































