














Book your tour. Save an average of $18,473. We'll handle the rest.
- Confirmed tours
- Get matched & compare top deals
- Expert help, no pressure
- No added fees
Estimated value based on Jome data, T&C apply





Why tour with Jome?
- No pressure toursTour at your own pace with no sales pressure
- Expert guidanceGet insights from our home buying experts
- Exclusive accessSee homes and deals not available elsewhere
Jome is featured in
- Single-Family
- Under construction
- $249.36/sqft
- $500/annual HOA
Home description
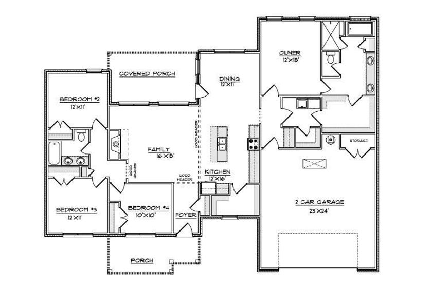
Stunning New Construction by Dalton Homes! Estimated for completion at the end of February 2025, The Brewster Plan offers modern farmhouse elegance on a sprawling one-acre lot. This home is designed for entertaining, featuring an open-concept layout where the kitchen seamlessly flows into the living and dining areas. The kitchen is a chef's dream, boasting an oversized island with pendant lighting, gray cabinetry, granite countertops, stainless steel appliances, and an extra-large walk-in pantry for optimal storage. Unique design touches throughout the home include wood headers, a built-in mud bench, upgraded tile designs, and a beautiful brick fireplace. The primary suite is a true retreat, featuring a spacious walk-in shower and dual vanities. For maximum convenience, the primary closet offers direct access to the laundry room—a feature modern buyers love! Ideally located in the desirable Sanger ISD with close proximity to Denton and I-35 E.
JPAR North Metro, MLS 21128424
May also be listed on the Dalton Homes website
Information last verified by Jome: Today at 1:36 AM (December 19, 2025)
Home highlights
Book your tour. Save an average of $18,473. We'll handle the rest.
We collect exclusive builder offers, book your tours, and support you from start to housewarming.
- Confirmed tours
- Get matched & compare top deals
- Expert help, no pressure
- No added fees
Estimated value based on Jome data, T&C apply
Home details
- Property status:
- Under construction
- Lot size (acres):
- 1.01
- Size:
- 1,961 sqft
- Stories:
- 1
- Beds:
- 4
- Baths:
- 2
- Garage spaces:
- 2
Construction details
- Builder Name:
- Dalton Homes
- Year Built:
- 2025
- Roof:
- Composition Roofing
Home features & finishes
- Appliances:
- Exhaust FanSprinkler System
- Construction Materials:
- Brick
- Cooling:
- Ceiling Fan(s)Central Air
- Flooring:
- Ceramic FlooringCarpet FlooringTile Flooring
- Foundation Details:
- Slab
- Garage/Parking:
- Door OpenerGarageFront Entry Garage/ParkingMulti-Door GarageAttached Garage
- Interior Features:
- Walk-In ClosetPantry
- Kitchen:
- DishwasherMicrowave OvenDisposalElectric CooktopKitchen IslandElectric Oven
- Laundry facilities:
- DryerWasherStackable Washer/DryerUtility/Laundry Room
- Lighting:
- Exterior LightingDecorative/Designer Lighting
- Property amenities:
- LandscapingFireplace
- Rooms:
- Primary Bedroom On MainFamily RoomOpen Concept FloorplanPrimary Bedroom Downstairs
- Security system:
- Fire Alarm SystemSmoke DetectorCarbon Monoxide Detector
Utility information
- Heating:
- Electric Heating, Central Heating
- Utilities:
- Electricity Available, Underground Utilities, Aerobic Septic System

Community details
Stonehenge Additional II
by Dalton Homes, Sanger, TX
- 1 home
- 1 plan
- 1,961 - 2,255 sqft
View Stonehenge Additional II details
About the builder - Dalton Homes
Neighborhood
Home address
Schools in Sanger Independent School District
GreatSchools’ Summary Rating calculation is based on 4 of the school’s themed ratings, including test scores, student/academic progress, college readiness, and equity. This information should only be used as a reference. Jome is not affiliated with GreatSchools and does not endorse or guarantee this information. Please reach out to schools directly to verify all information and enrollment eligibility. Data provided by GreatSchools.org © 2025
Places of interest
Getting around
Air quality
Natural hazards risk
Climate hazards can impact homes and communities, with risks varying by location. These scores reflect the potential impact of natural disasters and climate-related risks on Denton County
Provided by FEMA

Considering this home?
Our expert will guide your tour, in-person or virtual
Need more information?
Text or call (888) 486-2818
Financials
Estimated monthly payment
Similar homes nearby
Recently added communities in this area
Nearby communities in Sanger
New homes in nearby cities
More New Homes in Sanger, TX
JPAR North Metro, MLS 21128424
IDX information is provided exclusively for personal, non-commercial use, and may not be used for any purpose other than to identify prospective properties consumers may be interested in purchasing. You may not reproduce or redistribute this data, it is for viewing purposes only. This data is deemed reliable, but is not guaranteed accurate by the MLS or NTREIS.
Read moreLast checked Dec 19, 10:00 am
- Jome
- New homes search
- Texas
- Dallas-Fort Worth Area
- Denton County
- Sanger
- Stonehenge Additional II
- 6041 Amber Dr, Sanger, TX 76266


























