













Book your tour. Save an average of $18,473. We'll handle the rest.
- Confirmed tours
- Get matched & compare top deals
- Expert help, no pressure
- No added fees
Estimated value based on Jome data, T&C apply





- 2 bd
- 2 ba
- 1,013 sqft
20171 Green Mallard St, Crosby, TX 77532
Why tour with Jome?
- No pressure toursTour at your own pace with no sales pressure
- Expert guidanceGet insights from our home buying experts
- Exclusive accessSee homes and deals not available elsewhere
Jome is featured in
- Single-Family
- Quick move-in
- $161.79/sqft
- $750/annual HOA
Home description
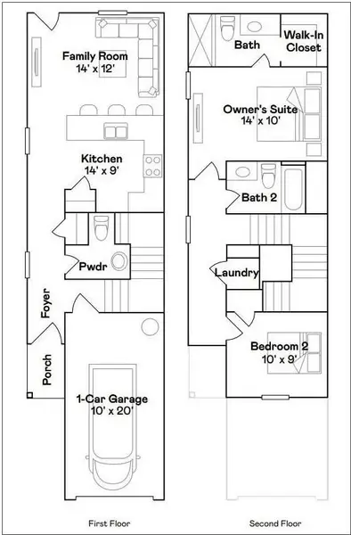
NEW! Lennar Wellton Collection "Kofa" Plan with Elevation "D" in Indian Springs! This new two-story home has a practical floorplan with a fully-equipped kitchen and inviting family room on the first floor. Two bedrooms can be found upstairs, including the restful owner’s suite, offering residents an en-suite bathroom and walk-in closet.
Lennar Homes Village Builders, LLC, MLS 28721052
May also be listed on the Lennar website
Information last verified by Jome: Yesterday at 2:34 AM (January 20, 2026)
Book your tour. Save an average of $18,473. We'll handle the rest.
We collect exclusive builder offers, book your tours, and support you from start to housewarming.
- Confirmed tours
- Get matched & compare top deals
- Expert help, no pressure
- No added fees
Estimated value based on Jome data, T&C apply
Home details
- Property status:
- Move-in ready
- Size:
- 1,013 sqft
- Stories:
- 2
- Beds:
- 2
- Baths:
- 2
- Half baths:
- 1
- Garage spaces:
- 2
Construction details
- Builder Name:
- Lennar
- Year Built:
- 2025
- Roof:
- Composition Roofing
Home features & finishes
- Construction Materials:
- Cement
- Foundation Details:
- Slab
- Garage/Parking:
- GarageAttached Garage
- Interior Features:
- Walk-In ClosetFoyer
- Kitchen:
- Kitchen Range
- Laundry facilities:
- Utility/Laundry Room
- Property amenities:
- Porch
- Rooms:
- KitchenPowder RoomFamily RoomOpen Concept FloorplanPrimary Bedroom Upstairs

Get a consultation with our New Homes Expert
- See how your home builds wealth
- Plan your home-buying roadmap
- Discover hidden gems
Utility information
- Heating:
- Gas Heating

Community details
Indian Springs: Wellton Collection
by Lennar, Crosby, TX
- 7 homes
- 4 plans
- 1,013 - 1,535 sqft
View Indian Springs: Wellton Collection details
More homes in Indian Springs: Wellton Collection
- Home at address 20155 Green Mallard St, Crosby, TX 77532

Kofa
$149,990
- 2 bd
- 2.5 ba
- 1,013 sqft
20155 Green Mallard St, Crosby, TX 77532
- Home at address 20162 Green Mallard St, Crosby, TX 77532

Kofa
$150,000
- 2 bd
- 2 ba
- 1,013 sqft
20162 Green Mallard St, Crosby, TX 77532
- Home at address 20154 Green Mallard St, Crosby, TX 77532

Baja
$170,000
- 3 bd
- 2.5 ba
- 1,189 sqft
20154 Green Mallard St, Crosby, TX 77532
- Home at address 20170 Green Mallard St, Crosby, TX 77532

Baja
$176,640
- 3 bd
- 2.5 ba
- 1,189 sqft
20170 Green Mallard St, Crosby, TX 77532
- Home at address 20182 Green Mallard St, Crosby, TX 77532

Pima
$181,590
- 3 bd
- 2.5 ba
- 1,360 sqft
20182 Green Mallard St, Crosby, TX 77532
- Home at address 20183 Green Mallard St, Crosby, TX 77532

Cibola
$192,840
- 4 bd
- 2.5 ba
- 1,535 sqft
20183 Green Mallard St, Crosby, TX 77532
Floor plans in Indian Springs: Wellton Collection
About the builder - Lennar

- 1,330communities on Jome
- 6,398homes on Jome
Neighborhood
Home address
Schools in Crosby Independent School District
GreatSchools’ Summary Rating calculation is based on 4 of the school’s themed ratings, including test scores, student/academic progress, college readiness, and equity. This information should only be used as a reference. Jome is not affiliated with GreatSchools and does not endorse or guarantee this information. Please reach out to schools directly to verify all information and enrollment eligibility. Data provided by GreatSchools.org © 2025
Places of interest
Getting around
Air quality
Noise level
A Soundscore™ rating is a number between 50 (very loud) and 100 (very quiet) that tells you how loud a location is due to environmental noise.

Considering this home?
Our expert will guide your tour, in-person or virtual
Need more information?
Text or call (888) 486-2818
Financials
Estimated monthly payment
Let us help you find your dream home
How many bedrooms are you looking for?
Similar homes nearby
Recently added communities in this area
Nearby communities in Crosby
New homes in nearby cities
More New Homes in Crosby, TX
Lennar Homes Village Builders, LLC, MLS 28721052
Copyright © 2025, Houston Realtors Information Service, Inc. The information provided is exclusively for consumers’ personal, non-commercial use, and may not be used for any purpose other than to identify prospective properties consumers may be interested in purchasing. Information is deemed reliable but not guaranteed. All information provided should be independently verified.
Read moreLast checked Jan 20, 8:50 pm
- Jome
- New homes search
- Texas
- Greater Houston Area
- Harris County
- Crosby
- Indian Springs: Wellton Collection
- 20171 Green Mallard St, Crosby, TX 77532




























