














Book your tour. Save an average of $18,473. We'll handle the rest.
We collect exclusive builder offers, book your tours, and support you from start to housewarming.
- Confirmed tours
- Get matched & compare top deals
- Expert help, no pressure
- No added fees
Estimated value based on Jome data, T&C apply




































- 5 bd
- 4.5 ba
- 3,302 sqft
2711 Clapbread Ln, Rosenberg, TX 77471
Why tour with Jome?
- No pressure toursTour at your own pace with no sales pressure
- Expert guidanceGet insights from our home buying experts
- Exclusive accessSee homes and deals not available elsewhere
Jome is featured in
- Single-Family
- Quick move-in
- $144.35/sqft
- $685/annual HOA
Home description
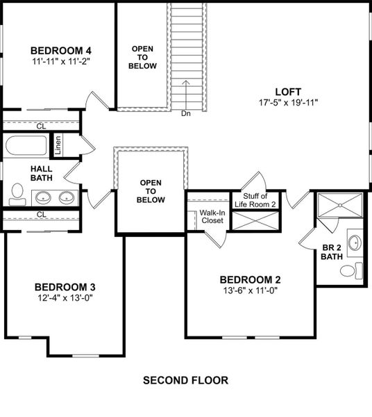
Discover Kingdom Heights, an amenity-rich community in Rosenberg, TX featuring K. Hovnanian's Looks - professionally curated interior designs. This two-story Tuscaloosa home in our Classic Look boasts 5 beds, 4.5 baths & 3-car tandem garage. A private home office is located off the foyer, and a convenient Extra Suite with a full bath is downstairs. The main living space is a dream with vaulted ceilings and a cozy fireplace, all anchored by a lovely kitchen featuring white stacked cabinets & Soapstone Mist quartz counters. The primary suite is a true escape with a huge walk-in closet and a serene bath with tub and barn door. A versatile loft upstairs & a covered patio make this home perfect for entertaining. Located just off US-59 South and HWY 6, residents enjoy easy access to shopping & dining. Zoned to Lamar Consolidated ISD schools. Resort-style amenities include scenic lakes, a swimming pool, hiking & biking trails, and a playground. Offered by: K. Hovnanian of Houston II, L.L.C
K. Hovnanian Homes, MLS 34288003
May also be listed on the K. Hovnanian® Homes website
Information last verified by Jome: Today at 2:32 AM (March 15, 2026)
Book your tour. Save an average of $18,473. We'll handle the rest.
We collect exclusive builder offers, book your tours, and support you from start to housewarming.
- Confirmed tours
- Get matched & compare top deals
- Expert help, no pressure
- No added fees
Estimated value based on Jome data, T&C apply
Home details
- Property status:
- Move-in ready
- Lot size (acres):
- 0.15
- Size:
- 3,302 sqft
- Stories:
- 2
- Beds:
- 5
- Baths:
- 4
- Half baths:
- 1
- Garage spaces:
- 3
- Facing direction:
- Southeast
Construction details
- Builder Name:
- K. Hovnanian® Homes
- Completion Date:
- March, 2026
- Year Built:
- 2026
- Roof:
- Composition Roofing
Home features & finishes
- Construction Materials:
- CementBrickStone
- Cooling:
- Ceiling Fan(s)
- Flooring:
- Carpet FlooringTile Flooring
- Foundation Details:
- Slab
- Garage/Parking:
- GarageAttached GarageTandem Parking
- Home amenities:
- Green Construction
- Interior Features:
- Ceiling-HighWired For SecurityWalk-In ClosetFoyerPantryLoft
- Kitchen:
- DishwasherMicrowave OvenOvenDisposalGas CooktopKitchen IslandGas OvenKitchen RangeDouble OvenElectric Oven
- Laundry facilities:
- DryerWasherUtility/Laundry Room
- Property amenities:
- BackyardPatioPorch
- Rooms:
- Bonus RoomKitchenOffice/StudyDining RoomFamily RoomPrimary Bedroom Downstairs

Get a consultation with our New Homes Expert
- See how your home builds wealth
- Plan your home-buying roadmap
- Discover hidden gems
Utility information
- Heating:
- Gas Heating
- Utilities:
- HVAC

Community details
Kingdom Heights
by K. Hovnanian® Homes, Rosenberg, TX
- 9 homes
- 6 plans
- 2,027 - 3,444 sqft
View Kingdom Heights details
More homes in Kingdom Heights
- Home at address 5411 Kingdom Heights Blvd, Rosenberg, TX 77471

Davenport
$435,094
- 6 bd
- 4.5 ba
- 3,444 sqft
5411 Kingdom Heights Blvd, Rosenberg, TX 77471
- Home at address 2819 Duchess Dr, Rosenberg, TX 77471

Davenport
$459,006
- 6 bd
- 4.5 ba
- 3,444 sqft
2819 Duchess Dr, Rosenberg, TX 77471
- Home at address 2822 Clapbread Ln, Rosenberg, TX 77471

Davenport
$459,446
- 6 bd
- 4.5 ba
- 3,444 sqft
2822 Clapbread Ln, Rosenberg, TX 77471
- Home at address 2806 Clapbread Ln, Rosenberg, TX 77471

Tuscaloosa
$464,090
- 5 bd
- 4.5 ba
- 3,426 sqft
2806 Clapbread Ln, Rosenberg, TX 77471
- Home at address 2815 Clapbread Ln, Rosenberg, TX 77471

Tuscaloosa
$470,576
- 5 bd
- 4.5 ba
- 3,426 sqft
2815 Clapbread Ln, Rosenberg, TX 77471
- Home at address 2703 Clapbread Ln, Rosenberg, TX 77471

Davenport
$478,186
- 6 bd
- 4.5 ba
- 3,444 sqft
2703 Clapbread Ln, Rosenberg, TX 77471
Floor plans in Kingdom Heights
About the builder - K. Hovnanian® Homes
Neighborhood
Home address
Schools in Lamar Consolidated Independent School District
- Grades PK-PKPublicjuan seguin early childhood center2.0 mi605 mabel stna
- Grades PK-KGPrivatefaith school for young children2.1 mi4600 fm 359 rdna
GreatSchools’ Summary Rating calculation is based on 4 of the school’s themed ratings, including test scores, student/academic progress, college readiness, and equity. This information should only be used as a reference. Jome is not affiliated with GreatSchools and does not endorse or guarantee this information. Please reach out to schools directly to verify all information and enrollment eligibility. Data provided by GreatSchools.org © 2025
Places of interest
Getting around
Air quality

Considering this home?
Our expert will guide your tour, in-person or virtual
Need more information?
Text or call (888) 545-5198
Financials
Estimated monthly payment
Let us help you find your dream home
How many bedrooms are you looking for?
Similar homes nearby
Recently added communities in this area
Nearby communities in Rosenberg
New homes in nearby cities
More New Homes in Rosenberg, TX
K. Hovnanian Homes, MLS 34288003
Copyright © 2025, Houston Realtors Information Service, Inc. The information provided is exclusively for consumers’ personal, non-commercial use, and may not be used for any purpose other than to identify prospective properties consumers may be interested in purchasing. Information is deemed reliable but not guaranteed. All information provided should be independently verified.
Read moreLast checked Mar 15, 8:50 am
- Jome
- New homes search
- Texas
- Greater Houston Area
- Fort Bend County
- Rosenberg
- Kingdom Heights
- 2711 Clapbread Ln, Rosenberg, TX 77471





























