





Book your tour. Save an average of $18,473. We'll handle the rest.
- Confirmed tours
- Get matched & compare top deals
- Expert help, no pressure
- No added fees
Estimated value based on Jome data, T&C apply
Why tour with Jome?
- No pressure toursTour at your own pace with no sales pressure
- Expert guidanceGet insights from our home buying experts
- Exclusive accessSee homes and deals not available elsewhere
Jome is featured in
- Single-Family
- Ready by March 2026
- $208.03/sqft
- $1,485/annual HOA
Home description
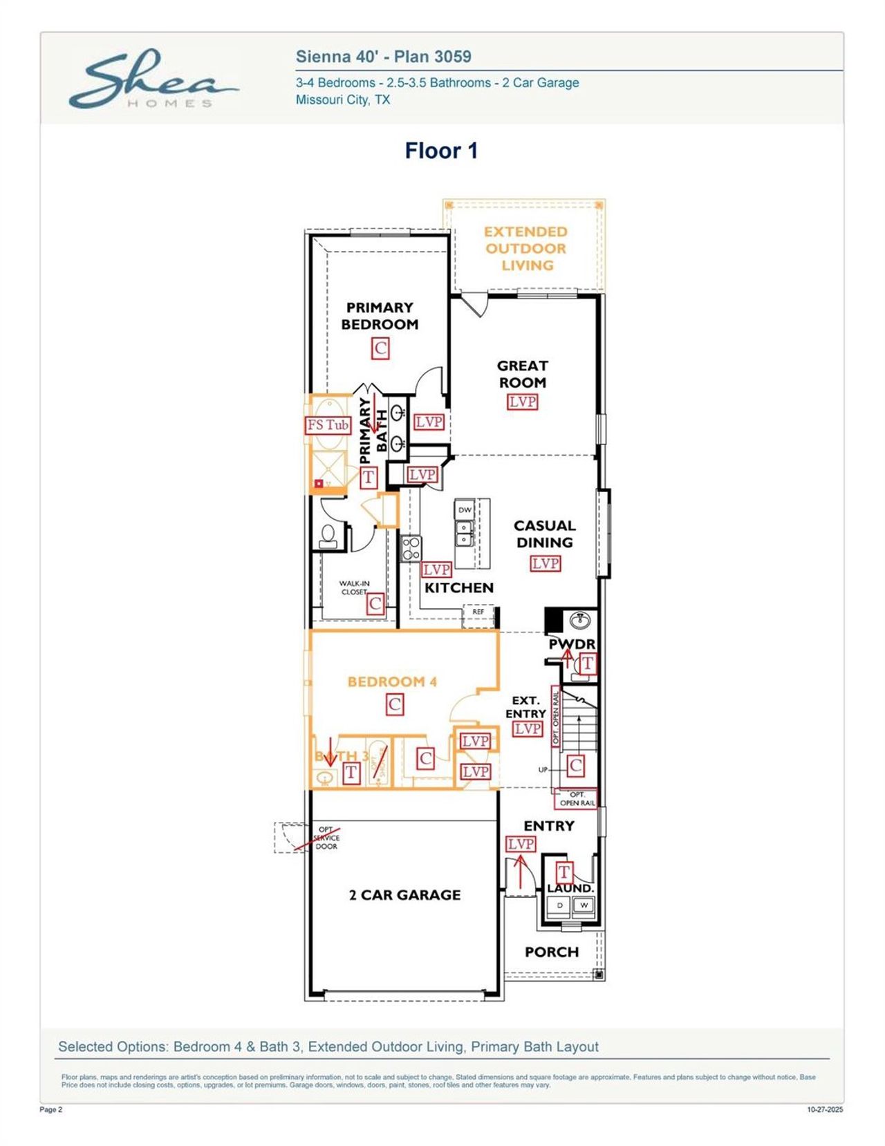
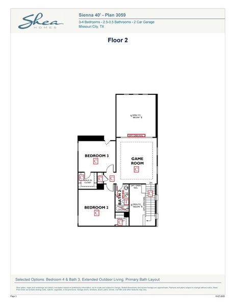
This popular two-story floorplan boasts a large front porch and stunning high ceilings. Host your friends and grow your family with generously sized, thoughtful spaces. This is 4 4-bedroom 2 downstairs and 3 1/2 bath 2-car garage, and covered patio. Features include no neighbors in the rear, extended outdoor living for watching the beautiful Texas sunset, and quartz countertops. All new Shea homes are Energy Star certified and come with smart home technology, stainless-steel gas appliances, and a one-year warranty. Take advantage of Sienna's wide variety of amenities and join in on the sense of community in this vibrant, sprawling master plan. The Bees Crossing section is located near the front of the development, making for easy access to Fort Bend County Toll Road and Highway 6. Ask about our amazing promotions!
Shea Homes, MLS 84965861
May also be listed on the Shea Homes website
Information last verified by Jome: Yesterday at 2:35 AM (December 6, 2025)
Home highlights
World’s largest medical complex offering top-tier care, research, and health careers in the heart of Houston.
Book your tour. Save an average of $18,473. We'll handle the rest.
We collect exclusive builder offers, book your tours, and support you from start to housewarming.
- Confirmed tours
- Get matched & compare top deals
- Expert help, no pressure
- No added fees
Estimated value based on Jome data, T&C apply
Home details
- Property status:
- Under construction
- Lot size (acres):
- 0.17
- Size:
- 2,456 sqft
- Stories:
- 2
- Beds:
- 4
- Baths:
- 3
- Half baths:
- 1
- Garage spaces:
- 2
- Facing direction:
- North
Construction details
- Builder Name:
- Shea Homes
- Completion Date:
- March, 2026
- Year Built:
- 2026
- Roof:
- Composition Roofing
Home features & finishes
- Construction Materials:
- Brick
- Flooring:
- Vinyl Flooring
- Foundation Details:
- Slab
- Garage/Parking:
- Door OpenerGarageAttached Garage
- Home amenities:
- Green Construction
- Interior Features:
- Ceiling-HighWired For SecurityWalk-In ClosetPantry
- Kitchen:
- DishwasherMicrowave OvenDisposalGas CooktopKitchen IslandElectric Oven
- Laundry facilities:
- DryerWasher
- Lighting:
- Lighting
- Property amenities:
- Cul-de-sacBackyard
- Rooms:
- Kitchen
Utility information
- Heating:
- Water Heater, Gas Heating
- Utilities:
- HVAC

Community details
Sienna 40' at Sienna
by Shea Homes, Missouri City, TX
- 8 homes
- 9 plans
- 1,529 - 2,506 sqft
View Sienna 40' details
More homes in Sienna 40'
Floor plans in Sienna 40'
About the builder - Shea Homes
Neighborhood
Home address
- City:
- Missouri City
- County:
- Fort Bend
- Zip Code:
- 77459
Schools in Fort Bend Independent School District
- Grades PK-KGPrivatemontessori school of sugar land sienna0.8 mi8900 sienna ranch rdna
GreatSchools’ Summary Rating calculation is based on 4 of the school’s themed ratings, including test scores, student/academic progress, college readiness, and equity. This information should only be used as a reference. Jome is not affiliated with GreatSchools and does not endorse or guarantee this information. Please reach out to schools directly to verify all information and enrollment eligibility. Data provided by GreatSchools.org © 2025
Places of interest
Getting around
Air quality
Natural hazards risk
Climate hazards can impact homes and communities, with risks varying by location. These scores reflect the potential impact of natural disasters and climate-related risks on Fort Bend County
Provided by FEMA

Considering this home?
Our expert will guide your tour, in-person or virtual
Need more information?
Text or call (888) 486-2818
Financials
Estimated monthly payment
Similar homes nearby
Recently added communities in this area
Nearby communities in Missouri City
New homes in nearby cities
More New Homes in Missouri City, TX
Shea Homes, MLS 84965861
Copyright © 2025, Houston Realtors Information Service, Inc. The information provided is exclusively for consumers’ personal, non-commercial use, and may not be used for any purpose other than to identify prospective properties consumers may be interested in purchasing. Information is deemed reliable but not guaranteed. All information provided should be independently verified.
Read moreLast checked Dec 6, 8:50 pm
- Home
- New homes
- Texas
- Greater Houston Area
- Fort Bend County
- Missouri City
- Sienna 40'
- 4047 Apiary Pt, Missouri City, TX 77459




























