














Book your tour. Save an average of $18,473. We'll handle the rest.
- Confirmed tours
- Get matched & compare top deals
- Expert help, no pressure
- No added fees
Estimated value based on Jome data, T&C apply





















Why tour with Jome?
- No pressure toursTour at your own pace with no sales pressure
- Expert guidanceGet insights from our home buying experts
- Exclusive accessSee homes and deals not available elsewhere
Jome is featured in
- Single-Family
- Quick move-in
- $152.58/sqft
- $350/annual HOA
Home description
About this home
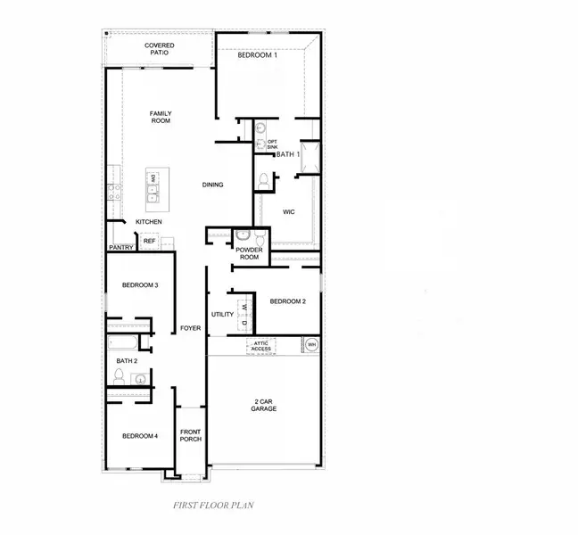
Come see our spacious Harris floorplan in China, Texas at the China Grove community, with 4 bedrooms and 2.5 bathrooms. This thoughtfully designed floorplan spans at an approximate 1,831 sq. ft. and has a 2-car garage.
This home is full of modern amenities. The beautiful fixtures throughout create a welcoming ambiance and warm environment.
The open-concept living space is perfect for entertaining and everyday activities. The kitchen offers plenty of storage with a corner pantry. Cooking and cleaning will be a breeze on the kitchen island with a built-in sink and dishwasher. Granite countertops and stainless-steel appliance top it off, giving you a modern and functional design.
Each bedroom is carpeted and has a closet perfect for hanging clothes or storage. The separate laundry room is situated next to the garage. You also have an attached bathroom in the primary bedroom. The primary bathroom has a walk-in shower that can be opted for a tub, and a massive walk-in closet. Getting ready in the morning will be a breeze with this amount of space.
Don’t forget to take time to enjoy the covered patio that is attached to the great room. Here you can relax while viewing nature from the backyard.
Find your home at the China Grove community.
May also be listed on the D.R. Horton website
Information last verified by Jome: Yesterday at 4:07 AM (December 6, 2025)
Home highlights
Book your tour. Save an average of $18,473. We'll handle the rest.
We collect exclusive builder offers, book your tours, and support you from start to housewarming.
- Confirmed tours
- Get matched & compare top deals
- Expert help, no pressure
- No added fees
Estimated value based on Jome data, T&C apply
Home details
- Property status:
- Move-in ready
- Size:
- 1,823 sqft
- Stories:
- 1
- Beds:
- 4
- Baths:
- 2.5
- Garage spaces:
- 2
Construction details
- Builder Name:
- D.R. Horton
Home features & finishes
- Flooring:
- Vinyl Flooring
- Garage/Parking:
- GarageAttached Garage
- Interior Features:
- Walk-In ClosetFoyerPantry
- Kitchen:
- Stainless Steel AppliancesGranite countertopKitchen Island
- Laundry facilities:
- Utility/Laundry Room
- Property amenities:
- Covered Outdoor LivingPatioPorch
- Rooms:
- Primary Bedroom On MainKitchenPowder RoomDining RoomFamily RoomOpen Concept FloorplanPrimary Bedroom Downstairs

Community details
China Grove
by D.R. Horton, China, TX
- 12 homes
- 5 plans
- 1,412 - 2,257 sqft
View China Grove details
More homes in China Grove
Floor plans in China Grove
About the builder - D.R. Horton
Neighborhood
Home address
Schools in Hardin-Jefferson Independent School District
GreatSchools’ Summary Rating calculation is based on 4 of the school’s themed ratings, including test scores, student/academic progress, college readiness, and equity. This information should only be used as a reference. Jome is not affiliated with GreatSchools and does not endorse or guarantee this information. Please reach out to schools directly to verify all information and enrollment eligibility. Data provided by GreatSchools.org © 2025
Places of interest
Getting around
Natural hazards risk
Climate hazards can impact homes and communities, with risks varying by location. These scores reflect the potential impact of natural disasters and climate-related risks on Jefferson County
Provided by FEMA

Considering this home?
Our expert will guide your tour, in-person or virtual
Need more information?
Text or call (888) 486-2818
Financials
Estimated monthly payment
Similar homes nearby
Recently added communities in this area
Nearby communities in China
New homes in nearby cities
More New Homes in China, TX
- Home
- New homes
- Texas
- Jefferson County
- China
- China Grove
- 520 Hunter Grove Ln, China, TX 77613






























