








Book your tour. Save an average of $18,473. We'll handle the rest.
We collect exclusive builder offers, book your tours, and support you from start to housewarming.
- Confirmed tours
- Get matched & compare top deals
- Expert help, no pressure
- No added fees
Estimated value based on Jome data, T&C apply








Why tour with Jome?
- No pressure toursTour at your own pace with no sales pressure
- Expert guidanceGet insights from our home buying experts
- Exclusive accessSee homes and deals not available elsewhere
Jome is featured in
- Single-Family
- Quick move-in
- $152.05/sqft
- $900/annual HOA
Home description
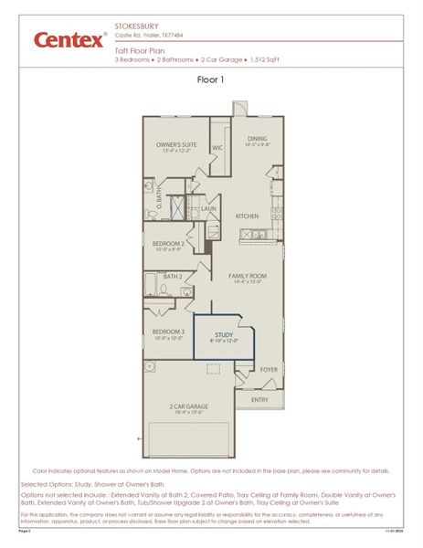
READY NOW! The popular Taft 3 bedroom + Study by Centex in Stokesbury offers flexible living for everyone. The interior has luxury vinyl flooring throughout with carpet in the bedrooms only. The kitchen has upgraded soft close cabinets, granite countertops, and Whirlpool stainless steel gas appliances - a Chef's Dream. The split floor plan has a secluded Owner's Suite tucked away in the back & features an oversized shower & a large walk-in closet. There are no back neighbors!!! And a Covered Patio option is included. The home also has blinds, washer, dryer, refrigerator, tankless gas water heater, fully sodded/landscaped yard with irrigation system & four sides of gutters.
Pulte Homes, MLS 87688129
May also be listed on the Centex website
Information last verified by Jome: Today at 2:50 AM (April 22, 2026)
Book your tour. Save an average of $18,473. We'll handle the rest.
We collect exclusive builder offers, book your tours, and support you from start to housewarming.
- Confirmed tours
- Get matched & compare top deals
- Expert help, no pressure
- No added fees
Estimated value based on Jome data, T&C apply
Home details
- Property status:
- Move-in ready
- Size:
- 1,512 sqft
- Stories:
- 1
- Beds:
- 3
- Baths:
- 2
- Garage spaces:
- 2
Construction details
- Builder Name:
- Centex
- Year Built:
- 2025
- Roof:
- Composition Roofing
Home features & finishes
- Appliances:
- Sprinkler System
- Construction Materials:
- Cement
- Flooring:
- Vinyl FlooringCarpet Flooring
- Foundation Details:
- Slab
- Garage/Parking:
- GarageAttached Garage
- Interior Features:
- Wired For SecurityWalk-In ClosetFoyerPantry
- Kitchen:
- DishwasherMicrowave OvenOvenDisposalGas CooktopGas Oven
- Laundry facilities:
- Utility/Laundry Room
- Property amenities:
- DeckCovered PatioPatioPorch
- Rooms:
- Primary Bedroom On MainKitchenOffice/StudyDining RoomFamily RoomPrimary Bedroom Downstairs

Get a consultation with our New Homes Expert
- See how your home builds wealth
- Plan your home-buying roadmap
- Discover hidden gems
Utility information
- Heating:
- Gas Heating
- Sewer:
- Public Sewer
- Water source:
- Public

Community details
Stokesbury
by Centex, Waller, TX
- 25 homes
- 18 plans
- 1,118 - 2,605 sqft
View Stokesbury details
More homes in Stokesbury
- Home at address 30514 Wolfburn St, Waller, TX 77484

Home
$192,295
- 3 bd
- 2 ba
- 1,118 sqft
30514 Wolfburn St, Waller, TX 77484
- Home at address 30509 Bladnoch Ln, Waller, TX 77484

Bagwell
$198,405
- 3 bd
- 2 ba
- 1,118 sqft
30509 Bladnoch Ln, Waller, TX 77484
- Home at address 30518 Wolfburn St, Waller, TX 77484

Home
$210,025
- 3 bd
- 2.5 ba
- 1,353 sqft
30518 Wolfburn St, Waller, TX 77484
- Home at address 30507 Bladnoch Ln, Waller, TX 77484

Chester
$214,715
- 3 bd
- 2.5 ba
- 1,256 sqft
30507 Bladnoch Ln, Waller, TX 77484
- Home at address 23123 Daftmill Dr, Waller, TX 77484

Adams
$239,230
- 3 bd
- 2 ba
- 1,204 sqft
23123 Daftmill Dr, Waller, TX 77484
- Home at address 23107 Daftmill Dr, Waller, TX 77484

Adams
$239,230
- 3 bd
- 2 ba
- 1,204 sqft
23107 Daftmill Dr, Waller, TX 77484
Floor plans in Stokesbury
About the builder - Centex
Neighborhood
Home address
Schools in Waller Independent School District
- Grades 11-11Publicwaller j j a e p3.6 mi1918 key stna
GreatSchools’ Summary Rating calculation is based on 4 of the school’s themed ratings, including test scores, student/academic progress, college readiness, and equity. This information should only be used as a reference. Jome is not affiliated with GreatSchools and does not endorse or guarantee this information. Please reach out to schools directly to verify all information and enrollment eligibility. Data provided by GreatSchools.org © 2025
Places of interest
Getting around
Air quality

Considering this home?
Our expert will guide your tour, in-person or virtual
Need more information?
Text or call (888) 545-5198
Financials
Estimated monthly payment
Let us help you find your dream home
How many bedrooms are you looking for?
Similar homes nearby
Recently added communities in this area
Nearby communities in Waller
New homes in nearby cities
More New Homes in Waller, TX
Pulte Homes, MLS 87688129
Copyright © 2025, Houston Realtors Information Service, Inc. The information provided is exclusively for consumers’ personal, non-commercial use, and may not be used for any purpose other than to identify prospective properties consumers may be interested in purchasing. Information is deemed reliable but not guaranteed. All information provided should be independently verified.
Read moreLast checked Apr 22, 2:50 am
- Jome
- New homes search
- Texas
- Greater Houston Area
- Harris County
- Waller
- Stokesbury
- 30519 Longmorn Glass Ln, Waller, TX 77484





























