













Book your tour. Save an average of $18,473. We'll handle the rest.
We collect exclusive builder offers, book your tours, and support you from start to housewarming.
- Confirmed tours
- Get matched & compare top deals
- Expert help, no pressure
- No added fees
Estimated value based on Jome data, T&C apply












Why tour with Jome?
- No pressure toursTour at your own pace with no sales pressure
- Expert guidanceGet insights from our home buying experts
- Exclusive accessSee homes and deals not available elsewhere
Jome is featured in
- Single-Family
- Quick move-in
- $126.59/sqft
- $2,300/annual HOA
Builder deals available
FHA 30 Year Fixed
$26,520 est. value- Rate buydown from 3.75% (1–5 year) with 6.88% APR, 3.5% down payment, and 680 credit score
- $6,000 closing costs help
- $4,047 free upgrades
- Move-In Ready Appliance Package Includes Refrigerator and Washer/Dryer
Deals may change and are not guaranteed. Some deals apply to specific homes or plans. Not a financing offer. Eligibility varies by lender. Please verify details.
Home description
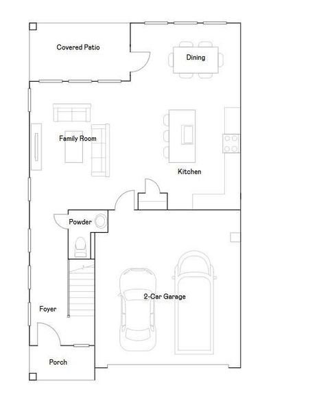
NEW! Lennar Avante Collection "Haven II" Plan with Brick Elevation A in Synova! This new two-story home offers plenty of space to live and grow. The first floor consists of an open-concept floorplan shared between the kitchen, living and dining areas, with a nearby covered patio ready for outdoor entertainment and leisure. Four bedrooms are located on the second floor, including the lavish owner’s suite with a spa-inspired bathroom and walk-in closet.
Lennar Homes Village Builders, LLC, MLS 7036679
May also be listed on the Lennar website
Information last verified by Jome: Today at 2:32 AM (March 7, 2026)
Book your tour. Save an average of $18,473. We'll handle the rest.
We collect exclusive builder offers, book your tours, and support you from start to housewarming.
- Confirmed tours
- Get matched & compare top deals
- Expert help, no pressure
- No added fees
Estimated value based on Jome data, T&C apply
Home details
- Property status:
- Move-in ready
- Collection:
- Synova: Eventide
- Size:
- 2,083 sqft
- Stories:
- 2
- Beds:
- 4
- Baths:
- 2
- Half baths:
- 1
- Garage spaces:
- 2
Construction details
- Builder Name:
- Lennar
- Year Built:
- 2025
- Roof:
- Composition Roofing
Home features & finishes
- Construction Materials:
- CementBrick
- Foundation Details:
- Slab
- Garage/Parking:
- GarageAttached Garage
- Interior Features:
- Walk-In ClosetFoyer
- Laundry facilities:
- Utility/Laundry Room
- Property amenities:
- Patio
- Rooms:
- KitchenPowder RoomDining RoomFamily RoomPrimary Bedroom Upstairs

Get a consultation with our New Homes Expert
- See how your home builds wealth
- Plan your home-buying roadmap
- Discover hidden gems
Utility information
- Heating:
- Gas Heating

Community details
Synova
by Lennar, Crosby, TX
- 35 homes
- 35 plans
- 1,084 - 3,223 sqft
View Synova details
More homes in Synova
- Home at address 1539 Gardenia Blossom Ln, Crosby, TX 77532

Pinehollow
Synova: Cottage
$189,990
- 4 bd
- 2 ba
- 1,656 sqft
1539 Gardenia Blossom Ln, Crosby, TX 77532
- Home at address 1606 Golden Iris Dr, Crosby, TX 77532

Pinehollow
Synova: Cottage
$201,290
- 4 bd
- 2 ba
- 1,656 sqft
1606 Golden Iris Dr, Crosby, TX 77532
- Home at address 1511 Rose Blush Ln, Crosby, TX 77532

Ramsey
Synova: Watermill
$222,990
- 4 bd
- 2 ba
- 1,720 sqft
1511 Rose Blush Ln, Crosby, TX 77532
- Home at address 1507 Wisteria Peaks Ct, Crosby, TX 77532

Oxford
Synova: Watermill
$223,990
- 4 bd
- 2 ba
- 1,760 sqft
1507 Wisteria Peaks Ct, Crosby, TX 77532
- Home at address 1543 Gardenia Blossom Ln, Crosby, TX 77532

Whitetail
Synova: Cottage
$224,990
- 4 bd
- 2.5 ba
- 2,039 sqft
1543 Gardenia Blossom Ln, Crosby, TX 77532
- Home at address 1651 Golden Iris Dr, Crosby, TX 77532

Whitetail
Synova: Cottage
$226,990
- 4 bd
- 2.5 ba
- 2,039 sqft
1651 Golden Iris Dr, Crosby, TX 77532
Floor plans in Synova
About the builder - Lennar

- 1,772communities on Jome
- 6,452homes on Jome
Neighborhood
Home address
Schools in Crosby Independent School District
GreatSchools’ Summary Rating calculation is based on 4 of the school’s themed ratings, including test scores, student/academic progress, college readiness, and equity. This information should only be used as a reference. Jome is not affiliated with GreatSchools and does not endorse or guarantee this information. Please reach out to schools directly to verify all information and enrollment eligibility. Data provided by GreatSchools.org © 2025
Places of interest
Getting around
Air quality
Noise level
A Soundscore™ rating is a number between 50 (very loud) and 100 (very quiet) that tells you how loud a location is due to environmental noise.

Considering this home?
Our expert will guide your tour, in-person or virtual
Need more information?
Text or call (888) 488-9243
Financials
Estimated monthly payment
Let us help you find your dream home
How many bedrooms are you looking for?
Similar homes nearby
Recently added communities in this area
Nearby communities in Crosby
New homes in nearby cities
More New Homes in Crosby, TX
Lennar Homes Village Builders, LLC, MLS 7036679
Copyright © 2025, Houston Realtors Information Service, Inc. The information provided is exclusively for consumers’ personal, non-commercial use, and may not be used for any purpose other than to identify prospective properties consumers may be interested in purchasing. Information is deemed reliable but not guaranteed. All information provided should be independently verified.
Read moreLast checked Mar 7, 8:50 am
- Jome
- New homes search
- Texas
- Greater Houston Area
- Harris County
- Crosby
- Synova
- Synova: Eventide
- 1630 Marigold Bend Dr, Crosby, TX 77532































