

Book your tour. Save an average of $18,473. We'll handle the rest.
- Confirmed tours
- Get matched & compare top deals
- Expert help, no pressure
- No added fees
Estimated value based on Jome data, T&C apply
- 3 bd
- 2 ba
- 1,685 sqft
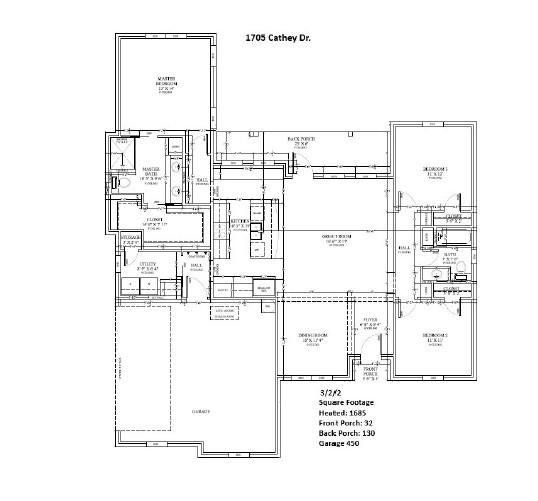
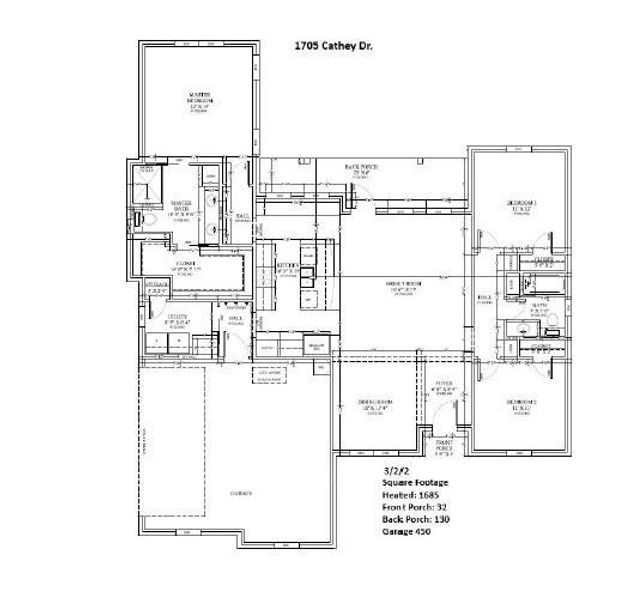
1705 Cathey Dr, Denison, TX 75020
Why tour with Jome?
- No pressure toursTour at your own pace with no sales pressure
- Expert guidanceGet insights from our home buying experts
- Exclusive accessSee homes and deals not available elsewhere
Jome is featured in
- Single-Family
- Under construction
- $207.72/sqft
- 0.23-acre lot
Home description
Discover endless possibilities with this build-to-suit opportunity on a quiet street within city limits. Buyer may purchase the land separately or work with JRP Homes, a trusted local builder known for quality craftsmanship, upgraded finishes, and 5-star customer service.
A variety of thoughtfully designed floor plans are available to suit your lifestyle—the home pictured is just one example offered at the current price point. Whether you’re envisioning a cozy modern farmhouse, a spacious two-story, or a custom design, JRP Homes can bring your dream to life.
Enjoy the perfect blend of peace and convenience with city utilities, nearby amenities, and a serene setting. Don’t miss this chance to create the home you’ve always wanted—built with quality, style, and care.
Endless possibilities await—contact us today for details, floor plan options, and pricing information! Land is listed separately on MLS 21110658.
TruHome Real Estate, MLS 21110727
Information last verified by Jome: Today at 1:27 AM (December 6, 2025)
Home highlights
Book your tour. Save an average of $18,473. We'll handle the rest.
We collect exclusive builder offers, book your tours, and support you from start to housewarming.
- Confirmed tours
- Get matched & compare top deals
- Expert help, no pressure
- No added fees
Estimated value based on Jome data, T&C apply
Home details
- Property status:
- Under construction
- Lot size (acres):
- 0.23
- Size:
- 1,685 sqft
- Stories:
- 1
- Beds:
- 3
- Baths:
- 2
- Garage spaces:
- 2
Construction details
- Year Built:
- 2025
- Roof:
- Composition Roofing
Home features & finishes
- Construction Materials:
- Brick
- Cooling:
- Ceiling Fan(s)
- Foundation Details:
- Slab
- Garage/Parking:
- Door OpenerGarageSide Entry Garage/ParkingAttached Garage
- Kitchen:
- DishwasherMicrowave OvenDisposalKitchen Range
- Property amenities:
- Electric Fireplace
- Rooms:
- Primary Bedroom On MainOpen Concept FloorplanPrimary Bedroom Downstairs
Utility information
- Heating:
- Heat Pump
- Utilities:
- City Water System
Neighborhood
Home address
Schools in Denison Independent School District
GreatSchools’ Summary Rating calculation is based on 4 of the school’s themed ratings, including test scores, student/academic progress, college readiness, and equity. This information should only be used as a reference. Jome is not affiliated with GreatSchools and does not endorse or guarantee this information. Please reach out to schools directly to verify all information and enrollment eligibility. Data provided by GreatSchools.org © 2025
Getting around
Natural hazards risk
Climate hazards can impact homes and communities, with risks varying by location. These scores reflect the potential impact of natural disasters and climate-related risks on Grayson County
Provided by FEMA

Considering this home?
Our expert will guide your tour, in-person or virtual
Need more information?
Text or call (888) 486-2818
Financials
Similar homes nearby
Recently added communities in this area
Nearby communities in Denison
New homes in nearby cities
More New Homes in Denison, TX
TruHome Real Estate, MLS 21110727
IDX information is provided exclusively for personal, non-commercial use, and may not be used for any purpose other than to identify prospective properties consumers may be interested in purchasing. You may not reproduce or redistribute this data, it is for viewing purposes only. This data is deemed reliable, but is not guaranteed accurate by the MLS or NTREIS.
Read moreLast checked Dec 6, 4:00 pm
- Home
- New homes
- Texas
- Dallas-Fort Worth Area
- Grayson County
- Denison
- 1705 Cathey Dr, Denison, TX 75020























