



Book your tour. Save an average of $18,473. We'll handle the rest.
- Confirmed tours
- Get matched & compare top deals
- Expert help, no pressure
- No added fees
Estimated value based on Jome data, T&C apply
- 3 bd
- 2 ba
- 1,525 sqft
141 Zaragosa Dr, Lipan, TX 76462
Why tour with Jome?
- No pressure toursTour at your own pace with no sales pressure
- Expert guidanceGet insights from our home buying experts
- Exclusive accessSee homes and deals not available elsewhere
Jome is featured in
- Single-Family
- Quick move-in
- $225/sqft
- 0.54-acre lot
Home description
Welcome to one of Wilson Bend's newest builds, 141 Zaragosa! This unfinished 3 Bedroom, 2 Bathroom Home Offers an Open Floor plan situated on a 0.54 Acre Lot. This Home has an estimated completion date of Mid January. All Wilson Bend Homes were built with Aesthetics, Comfort, Longevity, Quality, Energy Efficiency, and Location in Mind. This Home offers Spray Foam insulation, is energy efficient throughout, energy star certified, and a 10 year structural warranty!
While Under Construction, The Buyer has the ability to choose- they're tile and granite from approved packages.
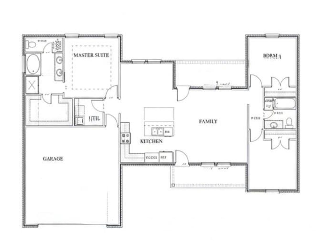
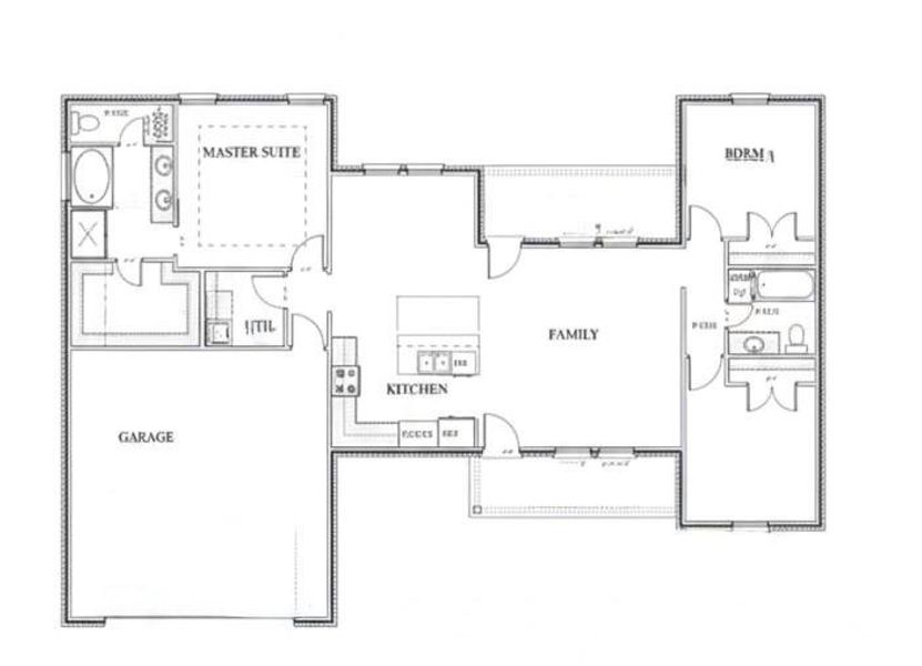
This home has the same floor plan as 256 Yawney DR., that is pictured for reference.
Ask About a 4.99% Builder Rate,With Approved Credit and Qualifications.
Clark Real Estate Group, MLS 21099497
Information last verified by Jome: Today at 1:25 AM (December 6, 2025)
Home highlights
Book your tour. Save an average of $18,473. We'll handle the rest.
We collect exclusive builder offers, book your tours, and support you from start to housewarming.
- Confirmed tours
- Get matched & compare top deals
- Expert help, no pressure
- No added fees
Estimated value based on Jome data, T&C apply
Home details
- Property status:
- Move-in ready
- Lot size (acres):
- 0.54
- Size:
- 1,525 sqft
- Stories:
- 1
- Beds:
- 3
- Baths:
- 2
- Garage spaces:
- 1
Construction details
- Year Built:
- 2024
Home features & finishes
- Garage/Parking:
- Door OpenerGarageAttached Garage
- Interior Features:
- Walk-In ClosetPantry
- Kitchen:
- Microwave OvenGranite countertopKitchen IslandElectric Oven
- Lighting:
- Decorative/Designer Lighting
- Rooms:
- Primary Bedroom On MainKitchenOpen Concept FloorplanPrimary Bedroom Downstairs
Utility information
- Utilities:
- City Water System
Neighborhood
Home address
Schools in Lipan Independent School District
GreatSchools’ Summary Rating calculation is based on 4 of the school’s themed ratings, including test scores, student/academic progress, college readiness, and equity. This information should only be used as a reference. Jome is not affiliated with GreatSchools and does not endorse or guarantee this information. Please reach out to schools directly to verify all information and enrollment eligibility. Data provided by GreatSchools.org © 2025
Places of interest
Getting around
Air quality
Natural hazards risk
Climate hazards can impact homes and communities, with risks varying by location. These scores reflect the potential impact of natural disasters and climate-related risks on Hood County
Provided by FEMA

Considering this home?
Our expert will guide your tour, in-person or virtual
Need more information?
Text or call (888) 486-2818
Financials
Similar homes nearby
Recently added communities in this area
Nearby communities in Lipan
New homes in nearby cities
More New Homes in Lipan, TX
Clark Real Estate Group, MLS 21099497
IDX information is provided exclusively for personal, non-commercial use, and may not be used for any purpose other than to identify prospective properties consumers may be interested in purchasing. You may not reproduce or redistribute this data, it is for viewing purposes only. This data is deemed reliable, but is not guaranteed accurate by the MLS or NTREIS.
Read moreLast checked Dec 6, 10:00 pm
- Home
- New homes
- Texas
- Hood County
- Lipan
- 141 Zaragosa Dr, Lipan, TX 76462




















