










































- 3 bd
- 2 ba
- 1,668 sqft
483 Sonoma St, Fredericksburg, TX 78624
- Single-Family
- $262.58/sqft
- $75/quarterly HOA
- 52 days on Jome
New Homes for Sale Near 483 Sonoma St, Fredericksburg, TX 78624
About this Home
About this home
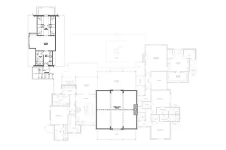
The Coleman is one of our one-story floorplans featured in our Sonoma Oaks community in Fredericksburg, Texas. 483 Sonoma Street is a home that includes 3 bedrooms and 2 bathrooms across 1,668 square feet. Our homes in Sonoma Oaks feature our modern farmhouse exterior, and the Coleman is available in 2 exterior options and a 3-car garage option.
Enter the home from the front porch, and cross through the foyer to the open living area. The family room, dining and kitchen space are designed as an open concept, allowing conservations to flow easily across the living area. The kitchen includes quartz countertops, decorative tile backsplash, a large island with undermount sink, a corner pantry closet, stainless-steel appliances and 36’’ upper cabinets. The utility room is off the kitchen and built with an extra closet for linens and other kitchen items. Natural light beams in through three rear windows along the family room wall.
The primary bedroom is off the family room and includes an attached bathroom. Enjoy the 5’ walk in shower, quartz countertop vanity with double sinks, private toilet area with a door, and walk-in closet in this relaxing bathroom space.
The secondary bedrooms are located at the front of the house, off the foyer. There is a hall bathroom that includes a shower/tub combination as well as extra shelving for storage or décor.
The Coleman includes vinyl flooring throughout the common areas of the home and the primary bedroom, and carpet in the secondary bedrooms. All our new homes at Sonoma Oaks feature a covered back patio, full yard landscaping, and irrigation system. This home includes our America’s Smart Home base package, which includes a Video Doorbell, Front Door Deadbolt Lock, Home Hub, Thermostat, and Deako®
May also be listed on the D.R. Horton website
Information last verified by Jome: Monday at 2:40 AM (November 3, 2025)
Home details
- Property status:
- Sold
- Size:
- 1,668 sqft
- Stories:
- 1
- Beds:
- 3
- Baths:
- 2
- Garage spaces:
- 3
Construction details
- Builder Name:
- D.R. Horton
Home features & finishes
- Garage/Parking:
- GarageAttached Garage
- Interior Features:
- Walk-In ClosetFoyerPantry
- Kitchen:
- Stainless Steel AppliancesQuartz countertopBacksplashKitchen Island
- Laundry facilities:
- Utility/Laundry Room
- Property amenities:
- PatioSmart Home SystemPorch
- Rooms:
- Primary Bedroom On MainKitchenDining RoomFamily RoomPrimary Bedroom Downstairs
Utility information
- Heating:
- Thermostat

Community details
Sonoma Oaks
by D.R. Horton, Fredericksburg, TX
- 7 homes
- 8 plans
- 1,668 - 2,594 sqft
View Sonoma Oaks details
More homes in Sonoma Oaks
Floor plans in Sonoma Oaks
About the builder - D.R. Horton
Neighborhood
Home address
- City:
- Fredericksburg
- County:
- Gillespie
- Zip Code:
- 78624
Schools in Fredericksburg Independent School District
GreatSchools’ Summary Rating calculation is based on 4 of the school’s themed ratings, including test scores, student/academic progress, college readiness, and equity. This information should only be used as a reference. Jome is not affiliated with GreatSchools and does not endorse or guarantee this information. Please reach out to schools directly to verify all information and enrollment eligibility. Data provided by GreatSchools.org © 2025
Places of interest
Getting around
Natural hazards risk
Climate hazards can impact homes and communities, with risks varying by location. These scores reflect the potential impact of natural disasters and climate-related risks on Gillespie County
Provided by FEMA
Financials
Nearby communities in Fredericksburg
Homes in Fredericksburg by D.R. Horton
Recently added communities in this area
Other Builders in Fredericksburg, TX
Nearby sold homes
New homes in nearby cities
More New Homes in Fredericksburg, TX
- Jome
- New homes search
- Texas
- Gillespie County
- Fredericksburg
- Sonoma Oaks
- 483 Sonoma St, Fredericksburg, TX 78624

























































