




Book your tour. Save an average of $18,473. We'll handle the rest.
We collect exclusive builder offers, book your tours, and support you from start to housewarming.
- Confirmed tours
- Get matched & compare top deals
- Expert help, no pressure
- No added fees
Estimated value based on Jome data, T&C apply
- 3 bd
- 2.5 ba
- 1,704 sqft
19855 Emerald Bend Wy, Atascocita, TX 77346
Why tour with Jome?
- No pressure toursTour at your own pace with no sales pressure
- Expert guidanceGet insights from our home buying experts
- Exclusive accessSee homes and deals not available elsewhere
Jome is featured in
- Single-Family
- Quick move-in
- $170.36/sqft
- $1,700/annual HOA
Home description
Brand new, energy-efficient home available by Feb 2026! Nestled in this gated boutique community, Pinewood Trails offers a lock and leave experience to enjoy the future lakes, trails and parks. Just minutes away from Lake Houston, premier shopping, dining, and entertainment, you won’t have to travel far. Each energy-efficient home also comes standard with features that go beyond helping you save on utility bills—they allow your whole family to live better and breathe easier too.
Meritage Homes Realty, MLS 76443910
May also be listed on the Meritage Homes website
Information last verified by Jome: Today at 2:34 AM (March 9, 2026)
Book your tour. Save an average of $18,473. We'll handle the rest.
We collect exclusive builder offers, book your tours, and support you from start to housewarming.
- Confirmed tours
- Get matched & compare top deals
- Expert help, no pressure
- No added fees
Estimated value based on Jome data, T&C apply
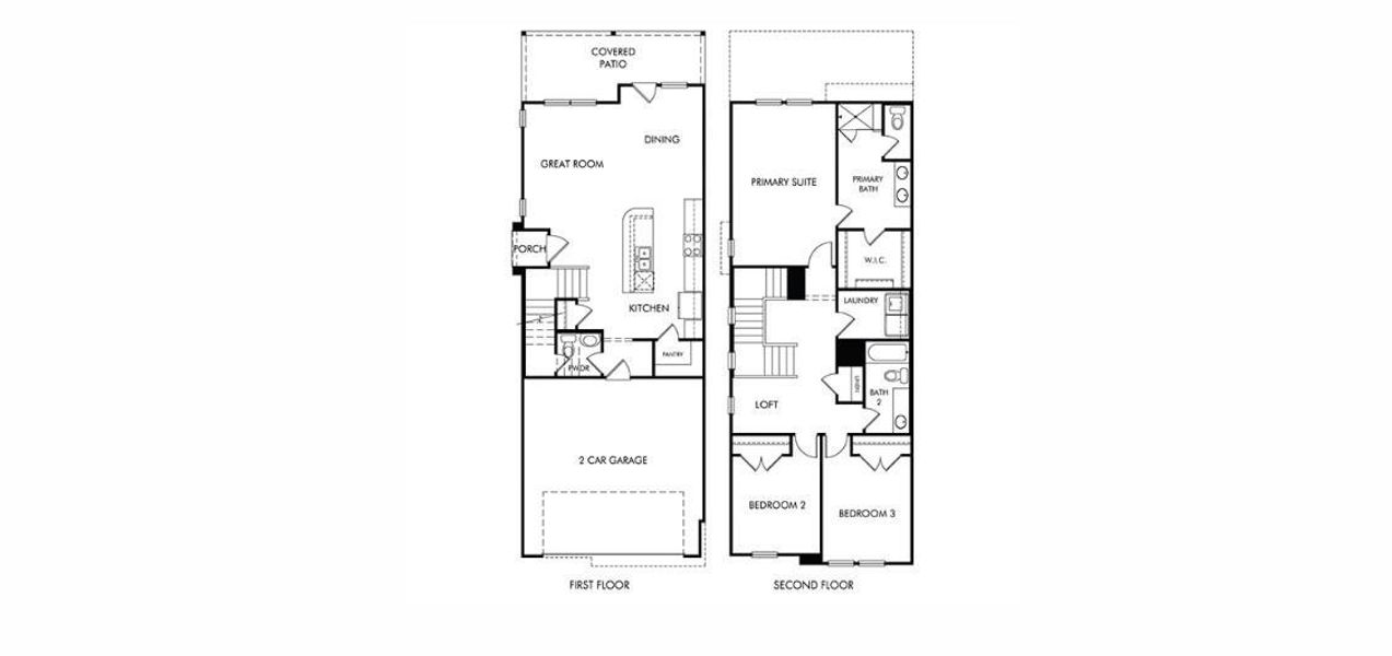
Home details
- Property status:
- Move-in ready
- Neighborhood:
- Spring Branch North
- Size:
- 1,704 sqft
- Stories:
- 2
- Beds:
- 3
- Baths:
- 2
- Half baths:
- 1
- Garage spaces:
- 2
Construction details
- Builder Name:
- Meritage Homes
- Year Built:
- 2025
- Roof:
- Composition Roofing
Home features & finishes
- Appliances:
- Exhaust FanSprinkler System
- Construction Materials:
- CementBrickStone
- Flooring:
- Stone FlooringVinyl FlooringCarpet Flooring
- Foundation Details:
- Slab
- Garage/Parking:
- ParkingDoor OpenerGarageAttached Garage
- Home amenities:
- Green Construction
- Interior Features:
- PantryWalk-In PantryWindow Coverings
- Kitchen:
- DishwasherMicrowave OvenOvenRefrigeratorDisposalGas CooktopGas OvenKitchen Range
- Laundry facilities:
- DryerWasher
- Lighting:
- Lighting
- Property amenities:
- BackyardPorch
- Rooms:
- Kitchen

Get a consultation with our New Homes Expert
- See how your home builds wealth
- Plan your home-buying roadmap
- Discover hidden gems
Utility information
- Heating:
- Heat Pump, Water Heater
- Utilities:
- HVAC
About the builder - Meritage Homes

- 323communities on Jome
- 2,786homes on Jome
Neighborhood
Home address
- Neighborhood:
- Spring Branch North
- City:
- Atascocita
Schools in Humble Independent School District
GreatSchools’ Summary Rating calculation is based on 4 of the school’s themed ratings, including test scores, student/academic progress, college readiness, and equity. This information should only be used as a reference. Jome is not affiliated with GreatSchools and does not endorse or guarantee this information. Please reach out to schools directly to verify all information and enrollment eligibility. Data provided by GreatSchools.org © 2025
Places of interest
Getting around
Air quality
Noise level
A Soundscore™ rating is a number between 50 (very loud) and 100 (very quiet) that tells you how loud a location is due to environmental noise.
Natural hazards risk
Provided by FEMA

Considering this home?
Our expert will guide your tour, in-person or virtual
Need more information?
Text or call (888) 488-9243
Financials
Estimated monthly payment
Let us help you find your dream home
How many bedrooms are you looking for?
Similar homes nearby
Recently added communities in this area
Nearby communities in Atascocita
New homes in nearby cities
More New Homes in Atascocita, TX
Meritage Homes Realty, MLS 76443910
Copyright © 2025, Houston Realtors Information Service, Inc. The information provided is exclusively for consumers’ personal, non-commercial use, and may not be used for any purpose other than to identify prospective properties consumers may be interested in purchasing. Information is deemed reliable but not guaranteed. All information provided should be independently verified.
Read moreLast checked Mar 9, 8:50 am
- Jome
- New homes search
- Texas
- Greater Houston Area
- Harris County
- Atascocita
- 19855 Emerald Bend Wy, Atascocita, TX 77346


























