




Book your tour. Save an average of $18,473. We'll handle the rest.
- Confirmed tours
- Get matched & compare top deals
- Expert help, no pressure
- No added fees
Estimated value based on Jome data, T&C apply
Why tour with Jome?
- No pressure toursTour at your own pace with no sales pressure
- Expert guidanceGet insights from our home buying experts
- Exclusive accessSee homes and deals not available elsewhere
Jome is featured in
- Single-Family
- Quick move-in
- $202.67/sqft
- $160/quarterly HOA
Home description
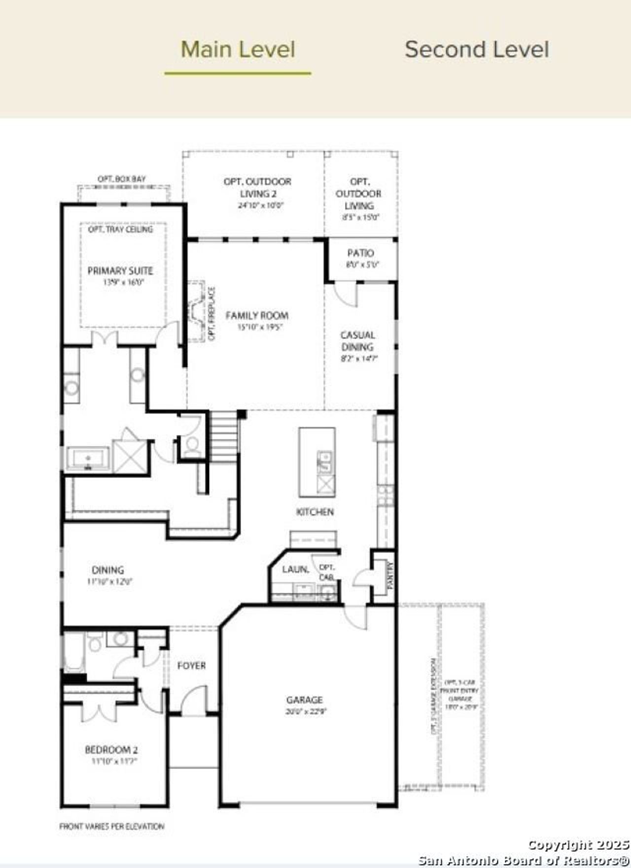
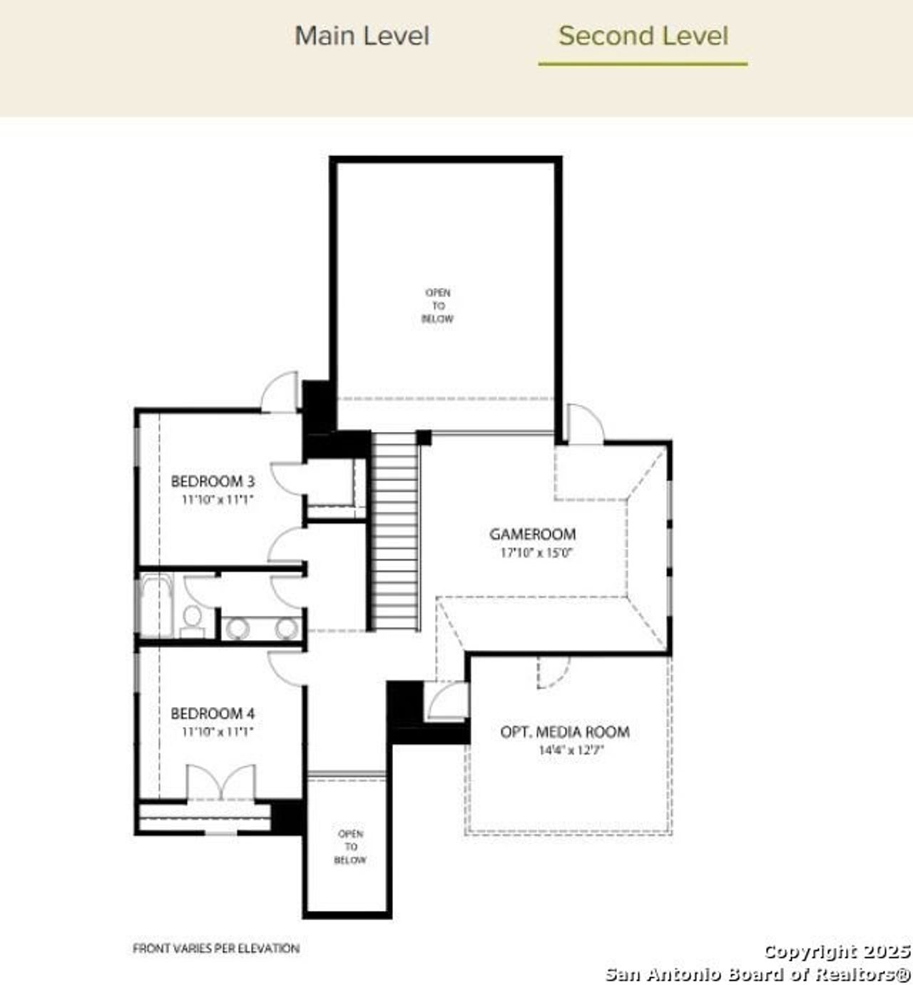
MLS# 1918111 - Built by Drees Custom Homes - Mar 2026 completion! ~ With 2976 square feet of living space and covered patio, this home is designed with your family in mind. The TODD floorplan is a 4 Bedroom and 3 bath home with a great room that opens to the outside patio. The modern kitchen overlooks the great room and is steps away from the formal dining room. The kitchen with its inviting island also offers plenty of cabinets that offer great storage options. The Lewis' primary suite features dual vanities, a freestanding tub, a large shower and a huge walk-in closet that'll make your neighbors envious. The spacious Gameroom greets you on upon entry to the second level of this home, along with two additional bedrooms. Visit us at Haby Hill today and view this new construction home by Drees Custom Homes.
HomesUSA.com, MLS 1918111
May also be listed on the Drees Custom Homes website
Information last verified by Jome: Yesterday at 2:07 AM (December 21, 2025)
Home highlights
Historic San Antonio park with trails, gardens, museums, and the zoo nestled along the scenic San Antonio River.
Book your tour. Save an average of $18,473. We'll handle the rest.
We collect exclusive builder offers, book your tours, and support you from start to housewarming.
- Confirmed tours
- Get matched & compare top deals
- Expert help, no pressure
- No added fees
Estimated value based on Jome data, T&C apply
Home details
- Property status:
- Move-in ready
- Lot size (acres):
- 0.14
- Size:
- 2,960 sqft
- Beds:
- 4
- Baths:
- 3
- Garage spaces:
- 2
- Fence:
- Privacy Fence
- Facing direction:
- South
Construction details
- Builder Name:
- Drees Custom Homes
- Year Built:
- 2025
- Roof:
- Composition Roofing
Home features & finishes
- Appliances:
- Sprinkler System
- Cooling:
- Central Air
- Flooring:
- Ceramic FlooringWood FlooringStone FlooringCarpet FlooringTile Flooring
- Foundation Details:
- Slab
- Garage/Parking:
- Garage
- Property amenities:
- Patio
- Rooms:
- Office/Study

Get a consultation with our New Homes Expert
- See how your home builds wealth
- Plan your home-buying roadmap
- Discover hidden gems
Utility information
- Heating:
- Central Heating, Gas Heating
- Utilities:
- City Water System

Community details
Haby Hill 50s
by Drees Custom Homes, San Antonio, TX
- 6 homes
- 9 plans
- 2,135 - 3,678 sqft
View Haby Hill 50s details
More homes in Haby Hill 50s
Floor plans in Haby Hill 50s
About the builder - Drees Custom Homes
Neighborhood
Home address
- City:
- San Antonio
- County:
- Medina
- Zip Code:
- 78253
Schools in North East Independent School District
GreatSchools’ Summary Rating calculation is based on 4 of the school’s themed ratings, including test scores, student/academic progress, college readiness, and equity. This information should only be used as a reference. Jome is not affiliated with GreatSchools and does not endorse or guarantee this information. Please reach out to schools directly to verify all information and enrollment eligibility. Data provided by GreatSchools.org © 2025
Places of interest
Getting around
Air quality
Natural hazards risk
Climate hazards can impact homes and communities, with risks varying by location. These scores reflect the potential impact of natural disasters and climate-related risks on Medina County
Provided by FEMA

Considering this home?
Our expert will guide your tour, in-person or virtual
Need more information?
Text or call (888) 486-2818
Financials
Estimated monthly payment
Let us help you find your dream home
How many bedrooms are you looking for?
Similar homes nearby
Recently added communities in this area
Nearby communities in San Antonio
New homes in nearby cities
More New Homes in San Antonio, TX
HomesUSA.com, MLS 1918111
IDX information is provided exclusively for personal, non-commercial use, and may not be used for any purpose other than to identify prospective properties consumers may be interested in purchasing. Information is deemed reliable but not guaranteed.
Read moreLast checked Dec 21, 7:00 pm
- Jome
- New homes search
- Texas
- Greater San Antonio
- Medina County
- San Antonio
- Haby Hill 50s
- 240 Haby, San Antonio, TX 78253





































