














Book your tour. Save an average of $18,473. We'll handle the rest.
- Confirmed tours
- Get matched & compare top deals
- Expert help, no pressure
- No added fees
Estimated value based on Jome data, T&C apply











Why tour with Jome?
- No pressure toursTour at your own pace with no sales pressure
- Expert guidanceGet insights from our home buying experts
- Exclusive accessSee homes and deals not available elsewhere
Jome is featured in
- Single-Family
- Quick move-in
- $169.4/sqft
- $750/annual HOA
Home description
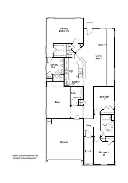
KB HOME NEW CONSTRUCTION – Welcome home to 1930 Livadero Lane, nestled in the community of Olympia Falls and zoned to Fort Bend ISD! This elegant single-story residence showcases a sophisticated brick and stone elevation accented with stucco detailing and offers 3 bedrooms, 2 full baths, and an attached 2-car garage. As you walk up to the home, you are greeted by a generous size porch and gorgeous 8' dark walnut entry door with a decorative Texas Star glass insert. Inside, the chef-inspired kitchen is the heart of the home, featuring stainless steel Whirlpool appliances, rich Woodmont cabinetry, and a granite-topped island—perfect for both meal prep and casual dining. Retreat to the primary suite, complete with a dual-sink vanity and a spacious walk-in shower with built-in seat. The secondary bath includes an extended vanity with knee space, combining style and functionality. This home truly has it all—style, comfort, and craftsmanship. Call today to schedule your private showing!
KB Home Houston, MLS 95565142
May also be listed on the KB Home website
Information last verified by Jome: Today at 8:50 AM (December 21, 2025)
Home highlights
World’s largest medical complex offering top-tier care, research, and health careers in the heart of Houston.
Book your tour. Save an average of $18,473. We'll handle the rest.
We collect exclusive builder offers, book your tours, and support you from start to housewarming.
- Confirmed tours
- Get matched & compare top deals
- Expert help, no pressure
- No added fees
Estimated value based on Jome data, T&C apply
Home details
- Property status:
- Move-in ready
- Size:
- 1,889 sqft
- Stories:
- 1
- Beds:
- 3
- Baths:
- 2
- Garage spaces:
- 2
Construction details
- Builder Name:
- KB Home
- Year Built:
- 2025
- Roof:
- Composition Roofing
Home features & finishes
- Construction Materials:
- CementBrickStone
- Flooring:
- Carpet FlooringTile Flooring
- Foundation Details:
- Slab
- Garage/Parking:
- GarageAttached Garage
- Home amenities:
- Green Construction
- Interior Features:
- Pantry
- Kitchen:
- Range-Free StandingDishwasherMicrowave OvenOvenDisposalGas CooktopGas OvenKitchen Range
- Laundry facilities:
- DryerWasher
- Lighting:
- Lighting
- Property amenities:
- Backyard
- Rooms:
- Primary Bedroom On MainKitchenPrimary Bedroom Downstairs

Get a consultation with our New Homes Expert
- See how your home builds wealth
- Plan your home-buying roadmap
- Discover hidden gems
Utility information
- Heating:
- Water Heater, Gas Heating

Community details
Olympia Falls
by KB Home, Fresno, TX
- 8 homes
- 12 plans
- 1,042 - 2,844 sqft
View Olympia Falls details
More homes in Olympia Falls
Floor plans in Olympia Falls
About the builder - KB Home
Neighborhood
Home address
Schools in Fort Bend Independent School District
GreatSchools’ Summary Rating calculation is based on 4 of the school’s themed ratings, including test scores, student/academic progress, college readiness, and equity. This information should only be used as a reference. Jome is not affiliated with GreatSchools and does not endorse or guarantee this information. Please reach out to schools directly to verify all information and enrollment eligibility. Data provided by GreatSchools.org © 2025
Places of interest
Getting around
Air quality
Noise level
A Soundscore™ rating is a number between 50 (very loud) and 100 (very quiet) that tells you how loud a location is due to environmental noise.
Natural hazards risk
Climate hazards can impact homes and communities, with risks varying by location. These scores reflect the potential impact of natural disasters and climate-related risks on Fort Bend County
Provided by FEMA

Considering this home?
Our expert will guide your tour, in-person or virtual
Need more information?
Text or call (888) 486-2818
Financials
Estimated monthly payment
Let us help you find your dream home
How many bedrooms are you looking for?
Similar homes nearby
Recently added communities in this area
Nearby communities in Fresno
New homes in nearby cities
More New Homes in Fresno, TX
KB Home Houston, MLS 95565142
Copyright © 2025, Houston Realtors Information Service, Inc. The information provided is exclusively for consumers’ personal, non-commercial use, and may not be used for any purpose other than to identify prospective properties consumers may be interested in purchasing. Information is deemed reliable but not guaranteed. All information provided should be independently verified.
Read moreLast checked Dec 21, 8:50 am
- Jome
- New homes search
- Texas
- Greater Houston Area
- Fort Bend County
- Fresno
- Olympia Falls
- 1930 Livadero Ln, Fresno, TX 77545





































