









Book your tour. Save an average of $18,473. We'll handle the rest.
We collect exclusive builder offers, book your tours, and support you from start to housewarming.
- Confirmed tours
- Get matched & compare top deals
- Expert help, no pressure
- No added fees
Estimated value based on Jome data, T&C apply





















- 4 bd
- 4.5 ba
- 3,840 sqft
1201 Arbor Creek Dr, Lakewood Village, TX 75068
Why tour with Jome?
- No pressure toursTour at your own pace with no sales pressure
- Expert guidanceGet insights from our home buying experts
- Exclusive accessSee homes and deals not available elsewhere
Jome is featured in
- Single-Family
- Quick move-in
- $286.46/sqft
- 0.50-acre lot
Home description
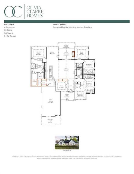
Walk to the lake from this stunning new one-story home by Olivia Clarke Homes, offering 3,840 sq ft of luxury living on a rare half-acre lot in The Arbors at Lakewood Village. This expansive 80-ft-wide floor plan is thoughtfully designed with 4 generously sized bedrooms, each featuring a private en-suite bathroom, plus a dedicated study and a spacious game room. The open-concept living area is ideal for entertaining and everyday living, anchored by a chef’s kitchen with a 48-inch built-in refrigerator and freezer, a functional morning kitchen with its own pantry, a separate pull-out pantry for additional storage, and a dedicated wine bar. Oversized windows flood the home with natural light and frame peaceful views of the private lot. The primary suite is a true retreat, featuring a spa-inspired bath with freestanding soaking tub and separate his-and-her walk-in closets. Additional highlights include abundant storage, a 3-car garage, and an oversized covered patio with outdoor fireplace—perfect for year-round enjoyment. Enjoy luxury living with NO HOA, NO MUD, and NO PID taxes.
Ryan Griffin, MLS 21089005
May also be listed on the Olivia Clarke Homes website
Information last verified by Jome: Yesterday at 1:23 AM (May 4, 2026)
Home highlights
Popular Dallas trail connecting urban neighborhoods with tree-lined paths, fitness spots, and skyline views.
Book your tour. Save an average of $18,473. We'll handle the rest.
We collect exclusive builder offers, book your tours, and support you from start to housewarming.
- Confirmed tours
- Get matched & compare top deals
- Expert help, no pressure
- No added fees
Estimated value based on Jome data, T&C apply
Home details
- Property status:
- Move-in ready
- Lot size (acres):
- 0.50
- Size:
- 3,840 sqft
- Stories:
- 1
- Beds:
- 4
- Baths:
- 4
- Half baths:
- 1
- Garage spaces:
- 3
- Fence:
- Privacy Fence, Metal Fence
Construction details
- Builder Name:
- Olivia Clarke Homes
- Year Built:
- 2025
- Roof:
- Roof Gutter, Composition Roofing
Home features & finishes
- Appliances:
- Sprinkler System
- Construction Materials:
- Brick
- Cooling:
- Ceiling Fan(s)Central Air
- Flooring:
- Ceramic FlooringWood FlooringCarpet FlooringTile FlooringEpoxy Flooring
- Foundation Details:
- Slab
- Garage/Parking:
- Door OpenerGarageSide Entry Garage/ParkingMulti-Door GarageAttached Garage
- Home amenities:
- ENERGY STAR CertifiedGreen Construction
- Interior Features:
- Walk-In ClosetPantryFlat Screen WiringSound System WiringDouble Vanity
- Kitchen:
- DishwasherMicrowave OvenOvenRefrigeratorDisposalGas CooktopConvection OvenGranite countertopKitchen IslandDouble OvenElectric Oven
- Laundry facilities:
- DryerWasherUtility/Laundry Room
- Lighting:
- LightingChandelierDecorative/Designer Lighting
- Property amenities:
- Cul-de-sacBarOutdoor FireplaceBackyardPatioFireplacePorch
- Rooms:
- Primary Bedroom On MainFamily RoomOpen Concept FloorplanPrimary Bedroom Downstairs
- Security system:
- Fire Alarm SystemSmoke DetectorCarbon Monoxide Detector

Get a consultation with our New Homes Expert
- See how your home builds wealth
- Plan your home-buying roadmap
- Discover hidden gems
Utility information
- Heating:
- Zoned Heating, Water Heater, Central Heating, Tankless water heater
- Utilities:
- Underground Utilities, HVAC, City Water System, Cable Available, Individual Water Meter, Individual Gas Meter, High Speed Internet Access

Community details
The Arbors at Lakewood Village
by Olivia Clarke Homes, Providence Village, TX
- 1 home
- 4 plans
- 3,730 - 4,690 sqft
View The Arbors at Lakewood Village details
Community amenities
- Lake Access
- Fishing Pond
- Greenbelt View
- Walking, Jogging, Hike Or Bike Trails
Floor plans in The Arbors at Lakewood Village
About the builder - Olivia Clarke Homes
Neighborhood
Home address
- City:
- Lakewood Village
- County:
- Denton
- Zip Code:
- 75068
Schools in Little Elm Independent School District
- Grades PK-03Privatecreekwood school2.0 mi800 w eldorado pkwy ste 106na
- Grades M-MPubliclakeside middle2.0 mi400 lobo lnna
- Grades M-MPublicnew elementary north2.0 mi400 lobo lnna
- Grades PK-PKPublicnew early childhood center2.1 mi300 lobo lnna
GreatSchools’ Summary Rating calculation is based on 4 of the school’s themed ratings, including test scores, student/academic progress, college readiness, and equity. This information should only be used as a reference. Jome is not affiliated with GreatSchools and does not endorse or guarantee this information. Please reach out to schools directly to verify all information and enrollment eligibility. Data provided by GreatSchools.org © 2025
Places of interest
Getting around
Air quality
Noise level
A Soundscore™ rating is a number between 50 (very loud) and 100 (very quiet) that tells you how loud a location is due to environmental noise.

Considering this home?
Our expert will guide your tour, in-person or virtual
Need more information?
Text or call (888) 545-5198
Financials
Estimated monthly payment
Let us help you find your dream home
How many bedrooms are you looking for?
Similar homes nearby
Recently added communities in this area
Nearby communities in Lakewood Village
New homes in nearby cities
More New Homes in Lakewood Village, TX
Ryan Griffin, MLS 21089005
IDX information is provided exclusively for personal, non-commercial use, and may not be used for any purpose other than to identify prospective properties consumers may be interested in purchasing. You may not reproduce or redistribute this data, it is for viewing purposes only. This data is deemed reliable, but is not guaranteed accurate by the MLS or NTREIS.
Read moreLast checked May 4, 10:00 pm
- Jome
- New homes search
- Texas
- Dallas-Fort Worth Area
- Denton County
- Lakewood Village
- The Arbors at Lakewood Village
- 1201 Arbor Creek Dr, Lakewood Village, TX 75068

























