













Book your tour. Save an average of $18,473. We'll handle the rest.
- Confirmed tours
- Get matched & compare top deals
- Expert help, no pressure
- No added fees
Estimated value based on Jome data, T&C apply
- 4 bd
- 2.5 ba
- 1,617 sqft
5915 Shale Cv, San Antonio, TX 78222
Why tour with Jome?
- No pressure toursTour at your own pace with no sales pressure
- Expert guidanceGet insights from our home buying experts
- Exclusive accessSee homes and deals not available elsewhere
Jome is featured in
- Single-Family
- $161.72/sqft
- $96.25/quarterly HOA
- 0.13-acre lot
Home description
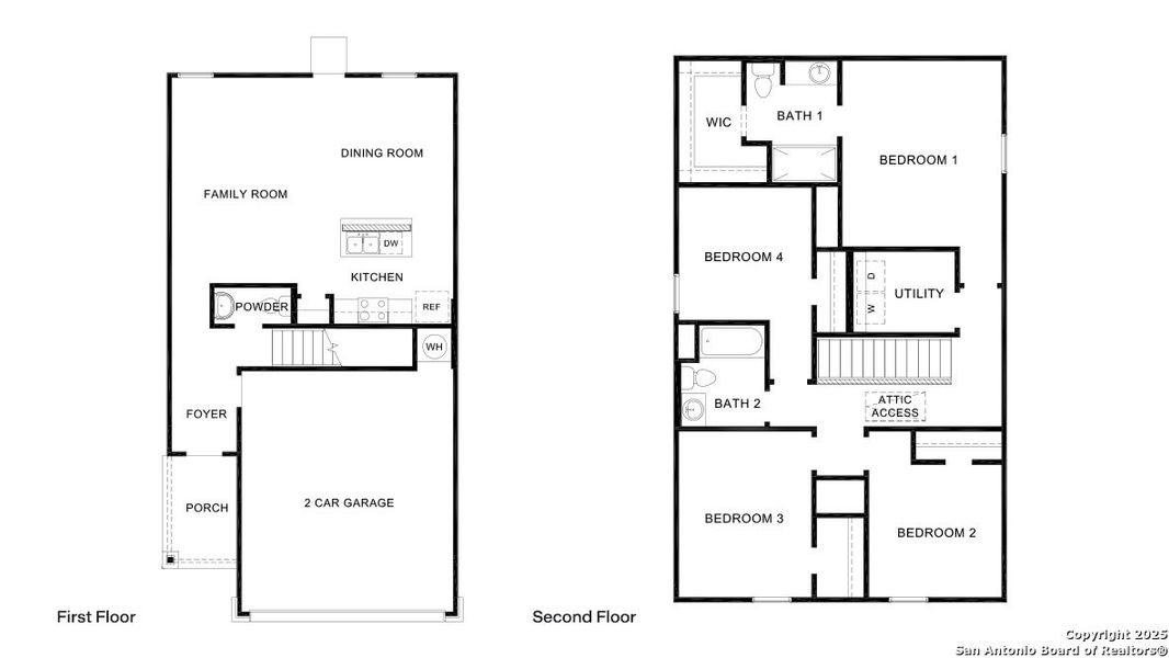
Welcome to The Clyde, a two-story home located at Blue Ridge Ranch in San Antonio, TX. This floor plan offers 2 classic exteriors and 2-car garage. Inside this 4 bedroom, 2.5 bathroom home, you'll find 1617 square feet of living space. The entry opens to a spacious family room before flowing into the dining room and kitchen with an open floorplan concept. The kitchen includes quartz counter tops, quality cabinetry, stainless steel appliances, large breakfast island, and pantry. Head up the stairs to find the main bedroom suite, all secondary bedrooms, the laundry room, and a full bath. The Clyde layout is perfect if you love entertaining downstairs and relaxing upstairs. The private main bedroom features an attractive ensuite with quality cabinetry. A spacious tiled walk-in shower and large walk-in closet provide all the space and convenience you need. Additional features of The Clyde floor plan include sheet vinyl flooring in entry, living room, and all wet areas, quartz counter tops in all bathrooms and HOME IS CONNECTED base package. Using one central hub that talks to all the devices in your home, you can control the lights, thermostat and locks, all from your cellular device.
Keller Williams Heritage, MLS 1915423
May also be listed on the D.R. Horton website
Information last verified by Jome: Today at 2:03 AM (December 29, 2025)
Home highlights
Iconic urban riverfront lined with dining, art, festivals and scenic walkable neighborhoods.
Book your tour. Save an average of $18,473. We'll handle the rest.
We collect exclusive builder offers, book your tours, and support you from start to housewarming.
- Confirmed tours
- Get matched & compare top deals
- Expert help, no pressure
- No added fees
Estimated value based on Jome data, T&C apply
Home details
- Property status:
- Pending/Under contract
- Neighborhood:
- Alamo Ranch
- Lot size (acres):
- 0.13
- Size:
- 1,617 sqft
- Stories:
- 2
- Beds:
- 4
- Baths:
- 2
- Half baths:
- 1
- Garage spaces:
- 2
- Fence:
- Privacy Fence
Construction details
- Builder Name:
- D.R. Horton
- Year Built:
- 2025
- Roof:
- Composition Roofing
Home features & finishes
- Appliances:
- Sprinkler System
- Cooling:
- Central Air
- Flooring:
- Vinyl FlooringCarpet Flooring
- Foundation Details:
- Slab
- Garage/Parking:
- Garage
- Property amenities:
- Patio
Room details
Master Bedroom
Kitchen
Dining Room

Get a consultation with our New Homes Expert
- See how your home builds wealth
- Plan your home-buying roadmap
- Discover hidden gems
Utility information
- Heating:
- Electric Heating, Central Heating

Community details
Blue Ridge Ranch
by D.R. Horton, San Antonio, TX
- 7 homes
- 8 plans
- 1,130 - 1,971 sqft
View Blue Ridge Ranch details
More homes in Blue Ridge Ranch
Floor plans in Blue Ridge Ranch
About the builder - D.R. Horton
Neighborhood
Home address
- Neighborhood:
- Alamo Ranch
- City:
- San Antonio
Schools in East Central Independent School District
GreatSchools’ Summary Rating calculation is based on 4 of the school’s themed ratings, including test scores, student/academic progress, college readiness, and equity. This information should only be used as a reference. Jome is not affiliated with GreatSchools and does not endorse or guarantee this information. Please reach out to schools directly to verify all information and enrollment eligibility. Data provided by GreatSchools.org © 2025
Places of interest
Getting around
1 nearby routes: 1 bus, 0 rail, 0 otherAir quality
Noise level
A Soundscore™ rating is a number between 50 (very loud) and 100 (very quiet) that tells you how loud a location is due to environmental noise.
Natural hazards risk
Climate hazards can impact homes and communities, with risks varying by location. These scores reflect the potential impact of natural disasters and climate-related risks on Bexar County
Provided by FEMA

Considering this home?
Our expert will guide your tour, in-person or virtual
Need more information?
Text or call (888) 486-2818
Financials
Estimated monthly payment
Let us help you find your dream home
How many bedrooms are you looking for?
Similar homes nearby
Recently added communities in this area
Nearby communities in San Antonio
New homes in nearby cities
More New Homes in San Antonio, TX
Keller Williams Heritage, MLS 1915423
IDX information is provided exclusively for personal, non-commercial use, and may not be used for any purpose other than to identify prospective properties consumers may be interested in purchasing. Information is deemed reliable but not guaranteed.
Read moreLast checked Dec 29, 7:00 am
- Jome
- New homes search
- Texas
- Greater San Antonio
- Bexar County
- San Antonio
- Blue Ridge Ranch
- 5915 Shale Cv, San Antonio, TX 78222

































