














Book your tour. Save an average of $18,473. We'll handle the rest.
- Confirmed tours
- Get matched & compare top deals
- Expert help, no pressure
- No added fees
Estimated value based on Jome data, T&C apply









Why tour with Jome?
- No pressure toursTour at your own pace with no sales pressure
- Expert guidanceGet insights from our home buying experts
- Exclusive accessSee homes and deals not available elsewhere
Jome is featured in
- Single-Family
- Quick move-in
- $156.16/sqft
- $1,160/annual HOA
Home description
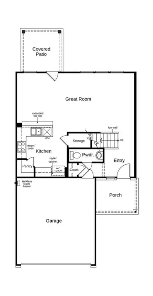
KB HOME NEW CONSTRUCTION - Welcome to 4884 Sun Falls Drive, a move-in ready home in the community of Sunterra, zoned to Royal ISD. This home has NO BACK NEIGHBORS and offers 3 bedrooms, 2.5 baths, and an attached 2-car garage. Step inside to discover a beautiful kitchen featuring stainless steel Whirlpool appliances, Woodmont cabinetry in a rich Black Fox finish, and Silestone countertops with breakfast bar. The primary suite boasts a raised dual-sink vanity, separate soaking tub and walk-in shower. The secondary bathroom also includes a raised extended dual-sink vanity, offering convenience for family or guests. Additional highlights include 2" faux wood blinds, 8' Modern Entry door with SmartKey hardware, black exterior coach lights, full gutters, automatic sprinkler system in the front and back yards, and a covered rear patio — perfect for enjoying the outdoors year-round. Don’t miss the opportunity to make this home your new address — schedule your private tour today!
KB Home Houston, MLS 20117171
May also be listed on the KB Home website
Information last verified by Jome: Today at 8:51 PM (December 31, 2025)
Home highlights
Major Houston business hub home to energy giants, top jobs, and master-planned communities with greenbelt access.
Book your tour. Save an average of $18,473. We'll handle the rest.
We collect exclusive builder offers, book your tours, and support you from start to housewarming.
- Confirmed tours
- Get matched & compare top deals
- Expert help, no pressure
- No added fees
Estimated value based on Jome data, T&C apply
Home details
- Property status:
- Move-in ready
- Size:
- 1,729 sqft
- Stories:
- 2
- Beds:
- 3
- Baths:
- 2
- Half baths:
- 1
- Garage spaces:
- 2
Construction details
- Builder Name:
- KB Home
- Year Built:
- 2025
- Roof:
- Composition Roofing
Home features & finishes
- Appliances:
- Sprinkler System
- Construction Materials:
- Brick
- Flooring:
- Carpet FlooringTile Flooring
- Foundation Details:
- Slab
- Garage/Parking:
- GarageAttached Garage
- Home amenities:
- Green Construction
- Interior Features:
- Window Coverings
- Kitchen:
- Range-Free StandingDishwasherMicrowave OvenOvenDisposalGas CooktopGas OvenKitchen Range
- Laundry facilities:
- DryerWasher
- Lighting:
- Lighting
- Property amenities:
- Backyard
Utility information
- Heating:
- Water Heater, Gas Heating

Community details
Sunterra at Sunterra
by KB Home, Katy, TX
- 10 homes
- 1,416 - 2,298 sqft
View Sunterra details
More homes in Sunterra
About the builder - KB Home
Neighborhood
Home address
Schools in Royal Independent School District
- Grades PK-01Privateredeemers learning center4.9 mi5371 e 5th stna
- Grades PK-KGPrivatesafari kids learning center5.9 mi24936 katy ranch rdna
GreatSchools’ Summary Rating calculation is based on 4 of the school’s themed ratings, including test scores, student/academic progress, college readiness, and equity. This information should only be used as a reference. Jome is not affiliated with GreatSchools and does not endorse or guarantee this information. Please reach out to schools directly to verify all information and enrollment eligibility. Data provided by GreatSchools.org © 2025
Places of interest
Getting around
Air quality
Natural hazards risk
Climate hazards can impact homes and communities, with risks varying by location. These scores reflect the potential impact of natural disasters and climate-related risks on Waller County
Provided by FEMA

Considering this home?
Our expert will guide your tour, in-person or virtual
Need more information?
Text or call (888) 486-2818
Financials
Estimated monthly payment
Similar homes nearby
Recently added communities in this area
Nearby communities in Katy
New homes in nearby cities
More New Homes in Katy, TX
KB Home Houston, MLS 20117171
Copyright © 2025, Houston Realtors Information Service, Inc. The information provided is exclusively for consumers’ personal, non-commercial use, and may not be used for any purpose other than to identify prospective properties consumers may be interested in purchasing. Information is deemed reliable but not guaranteed. All information provided should be independently verified.
Read moreLast checked Dec 31, 2:50 pm
- Jome
- New homes search
- Texas
- Greater Houston Area
- Waller County
- Katy
- Sunterra
- 4884 Sun Falls Dr, Katy, TX 77493
































