














Book your tour. Save an average of $18,473. We'll handle the rest.
- Confirmed tours
- Get matched & compare top deals
- Expert help, no pressure
- No added fees
Estimated value based on Jome data, T&C apply






















- 4 bd
- 2.5 ba
- 2,268 sqft
1636 Hossler Trl, Fort Worth, TX 76052
Why tour with Jome?
- No pressure toursTour at your own pace with no sales pressure
- Expert guidanceGet insights from our home buying experts
- Exclusive accessSee homes and deals not available elsewhere
Jome is featured in
- Single-Family
- Quick move-in
- $165.34/sqft
- $300/semi-annual HOA
Home description
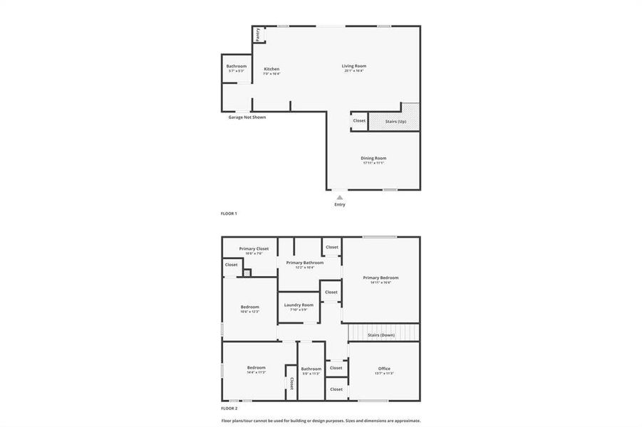
!! This house comes with a REDUCED RATE as low as 5% (APR 5.441%) as of 11.21.2025 through List & Lock™. This is a seller paid rate-buydown that reduces the buyer’s interest rate and monthly payment !! Built in 2023, this 4-bedroom, 3-bath home offers modern comfort and an inviting open-concept layout perfect for entertaining. The bright living area flows seamlessly into the kitchen and dining spaces, while a bonus room on the first floor adds flexibility for a home office, playroom, or guest space. Cove lighting sets a cozy ambiance for relaxing or movie nights. All bedrooms and the laundry area are upstairs, providing privacy and convenience. Outside, a large fenced-in backyard offers plenty of space for play, pets, or outdoor gatherings. Thoughtful finishes and a functional floor plan make this home truly move-in ready! Located minutes from Hwy 287, shopping and dining
United Real Estate, MLS 21072413
Information last verified by Jome: Today at 12:50 AM (January 2, 2026)
Home highlights
Book your tour. Save an average of $18,473. We'll handle the rest.
We collect exclusive builder offers, book your tours, and support you from start to housewarming.
- Confirmed tours
- Get matched & compare top deals
- Expert help, no pressure
- No added fees
Estimated value based on Jome data, T&C apply
Home details
- Property status:
- Move-in ready
- Lot size (acres):
- 0.13
- Size:
- 2,268 sqft
- Stories:
- 2
- Beds:
- 4
- Baths:
- 2
- Half baths:
- 1
- Garage spaces:
- 2
- Fence:
- Wood Fence
Construction details
- Roof:
- Composition Roofing
Home features & finishes
- Appliances:
- Water SoftenerSprinkler System
- Cooling:
- Central Air
- Flooring:
- Laminate FlooringCarpet Flooring
- Foundation Details:
- Slab
- Garage/Parking:
- GarageFront Entry Garage/ParkingAttached Garage
- Interior Features:
- PantryWindow Coverings
- Kitchen:
- DishwasherMicrowave OvenKitchen IslandKitchen Range
- Laundry facilities:
- Laundry Facilities In HallDryerStackable Washer/Dryer
- Lighting:
- Decorative/Designer Lighting
- Property amenities:
- BackyardPatioPorch
- Rooms:
- KitchenOpen Concept Floorplan
Utility information
- Heating:
- Electric Heating, Central Heating
- Utilities:
- City Water System, High Speed Internet Access, Cable TV
Community amenities
- Playground
- Sidewalks Available
Neighborhood
Home address
- City:
- Fort Worth
- County:
- Tarrant
- Zip Code:
- 76052
Schools in Northwest Independent School District
- Grades PK-05Publicmolly livengood carter elementary1.0 mi14117 borealis drna
GreatSchools’ Summary Rating calculation is based on 4 of the school’s themed ratings, including test scores, student/academic progress, college readiness, and equity. This information should only be used as a reference. Jome is not affiliated with GreatSchools and does not endorse or guarantee this information. Please reach out to schools directly to verify all information and enrollment eligibility. Data provided by GreatSchools.org © 2025
Places of interest
Getting around
Air quality
Natural hazards risk
Climate hazards can impact homes and communities, with risks varying by location. These scores reflect the potential impact of natural disasters and climate-related risks on Tarrant County
Provided by FEMA

Considering this home?
Our expert will guide your tour, in-person or virtual
Need more information?
Text or call (888) 486-2818
Financials
Estimated monthly payment
Similar homes nearby
Recently added communities in this area
Nearby communities in Fort Worth
New homes in nearby cities
More New Homes in Fort Worth, TX
United Real Estate, MLS 21072413
IDX information is provided exclusively for personal, non-commercial use, and may not be used for any purpose other than to identify prospective properties consumers may be interested in purchasing. You may not reproduce or redistribute this data, it is for viewing purposes only. This data is deemed reliable, but is not guaranteed accurate by the MLS or NTREIS.
Read moreLast checked Jan 1, 10:00 pm
- Jome
- New homes search
- Texas
- Dallas-Fort Worth Area
- Tarrant County
- Fort Worth
- 1636 Hossler Trl, Fort Worth, TX 76052





















