














Book your tour. Save an average of $18,473. We'll handle the rest.
- Confirmed tours
- Get matched & compare top deals
- Expert help, no pressure
- No added fees
Estimated value based on Jome data, T&C apply












Why tour with Jome?
- No pressure toursTour at your own pace with no sales pressure
- Expert guidanceGet insights from our home buying experts
- Exclusive accessSee homes and deals not available elsewhere
Jome is featured in
- Single-Family
- Quick move-in
- $192.76/sqft
- $650/annual HOA
Home description
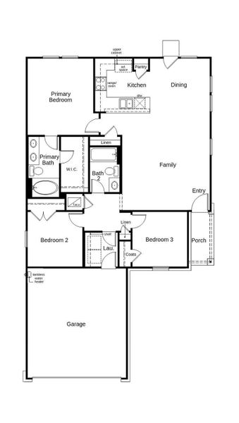
KB HOME NEW CONSTRUCTION – Welcome home to 5515 Blackbird Lane, located in the lovely community of Sunset Grove and zoned to Hitchcock ISD! This charming single-story home offers 3 bedrooms, 2 full baths, and an attached 2-car garage. The kitchen is beautifully appointed with stainless steel Whirlpool appliances, including a microwave, 42" Woodmont Cody cabinets in a rich Toffee stain, elegant Silestone countertops, and a Moen pull-out spout faucet. The primary suite features a dual-sink vanity and an oversized tub/shower combination for added relaxation. Additional highlights include black exterior coach lights, 2" smooth faux wood blinds, an 8' entry door with SmartKey/SmartCode hardware, front gutters, and a rear patio slab perfect for outdoor enjoyment. Don’t miss your chance to make this gorgeous new home yours—call today to schedule your private showing!
KB Home Houston, MLS 66903476
May also be listed on the KB Home website
Information last verified by Jome: Today at 8:50 PM (December 7, 2025)
Home highlights
NASA’s mission control hub supporting human spaceflight, STEM careers, and tech innovation in the Houston area.
Book your tour. Save an average of $18,473. We'll handle the rest.
We collect exclusive builder offers, book your tours, and support you from start to housewarming.
- Confirmed tours
- Get matched & compare top deals
- Expert help, no pressure
- No added fees
Estimated value based on Jome data, T&C apply
Home details
- Property status:
- Move-in ready
- Size:
- 1,271 sqft
- Stories:
- 1
- Beds:
- 3
- Baths:
- 2
- Garage spaces:
- 2
Construction details
- Builder Name:
- KB Home
- Year Built:
- 2025
- Roof:
- Composition Roofing
Home features & finishes
- Construction Materials:
- CementBrick
- Flooring:
- Vinyl FlooringCarpet FlooringTile Flooring
- Foundation Details:
- Slab
- Garage/Parking:
- GarageAttached Garage
- Home amenities:
- Green Construction
- Interior Features:
- Window Coverings
- Kitchen:
- Range-Free StandingDishwasherMicrowave OvenOvenDisposalGas CooktopGas OvenKitchen Range
- Laundry facilities:
- DryerWasher
- Lighting:
- Lighting
- Property amenities:
- Backyard
- Rooms:
- Primary Bedroom On MainPrimary Bedroom Downstairs
Utility information
- Heating:
- Water Heater, Gas Heating

Community details
Sunset Grove South
by KB Home, Hitchcock, TX
- 5 homes
- 5 plans
- 1,042 - 2,495 sqft
View Sunset Grove South details
More homes in Sunset Grove South
Floor plans in Sunset Grove South
About the builder - KB Home
Neighborhood
Home address
Schools in Hitchcock Independent School District
- Grades PK-PKPublichitchcock headstart4.5 mi5701 f m 2004na
GreatSchools’ Summary Rating calculation is based on 4 of the school’s themed ratings, including test scores, student/academic progress, college readiness, and equity. This information should only be used as a reference. Jome is not affiliated with GreatSchools and does not endorse or guarantee this information. Please reach out to schools directly to verify all information and enrollment eligibility. Data provided by GreatSchools.org © 2025
Places of interest
Getting around
Air quality
Noise level
A Soundscore™ rating is a number between 50 (very loud) and 100 (very quiet) that tells you how loud a location is due to environmental noise.
Natural hazards risk
Climate hazards can impact homes and communities, with risks varying by location. These scores reflect the potential impact of natural disasters and climate-related risks on Galveston County
Provided by FEMA

Considering this home?
Our expert will guide your tour, in-person or virtual
Need more information?
Text or call (888) 486-2818
Financials
Estimated monthly payment
Similar homes nearby
Recently added communities in this area
Nearby communities in Hitchcock
New homes in nearby cities
More New Homes in Hitchcock, TX
KB Home Houston, MLS 66903476
Copyright © 2025, Houston Realtors Information Service, Inc. The information provided is exclusively for consumers’ personal, non-commercial use, and may not be used for any purpose other than to identify prospective properties consumers may be interested in purchasing. Information is deemed reliable but not guaranteed. All information provided should be independently verified.
Read moreLast checked Dec 7, 8:50 pm
- Home
- New homes
- Texas
- Greater Houston Area
- Galveston County
- Hitchcock
- Sunset Grove South
- 5515 Blackbird Ln, Hitchcock, TX 77563
































